Astegiudiziarie.it è parte di Rete Aste Network

Accedi o registrati

Non sei ancora registrato?

Oppure

Accedi

Abitazione di tipo popolare

Via Rocco de Zerbi n. 81, Oppido Mamertina (RC)

€ 13.592,00

Offerta minima € 10.194,00


Codice A4266344

Lotto 1

Data udienza 24/04/2026 ore 09:30

Termine presentazione offerte 23/04/2026 ore 12:00

Abitazione di tipo popolare

Via Rocco de Zerbi n. 81, Oppido Mamertina (RC)

€ 13.592,00

Offerta minima € 10.194,00


Codice A4266344

Lotto 1

Data udienza 24/04/2026 ore 09:30

Termine presentazione offerte 23/04/2026 ore 12:00

Ti interessa questa vendita?

Documentazione

Visualizza su mappa

Mappa geografica del bene

Punti di interesse

Fonte dati

Nel raggio di {{range}}Km

Loading...
  • {{ getIcon(poi.type) }} {{ poi.localized }}: {{poi.count}}
  • {{ getIcon(poi.type) }} {{ poi.localized }}: {{poi.count}}
Dati non disponibili

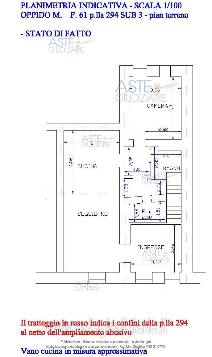
Piena proprietà di un fabbricato a 3 elevazioni fuori terra consistenza vani 6, superficie catastale mq 167 escluse aree scoperte

Indirizzo
Via Rocco de Zerbi n. 81, Oppido Mamertina (RC)


Codice asta
4266344


Lotto
1


Numero beni
1


Genere
Immobili


Categoria
Immobile residenziale


Valore di stima
-


Abitazione di tipo popolare

Piena proprietà di un fabbricato a 3 elevazioni fuori terra consistenza vani 6, superficie catastale mq 167 escluse aree scoperte

Indirizzo
Via Rocco de Zerbi n. 81, Oppido Mamertina (RC)


Piano
-


Disponibilità
-


Vani
6,00


Bagni
-


Metri quadri
167,00


Certificazione energetica
-


Dati catastali

Foglio:61, Particella:294, Subalterno:3


Data udienza
24/04/2026 ore 09:30


Tipo di vendita
Senza incanto


Modalità di vendita
Asincrona telematica


Luogo
N.A. -


Luogo presentazione offerte
-


Termine presentazione offerte
23/04/2026 ore 12:00


Prezzo base
€ 13.592,00


Offerta minima
€ 10.194,00


Rialzo minimo in caso di gara
€ 1.000,00


Deposito cauzionale
-


Deposito in conto spese
-


Tribunale
Palmi

Tipo di procedura
Esecuzione immobiliare post legge 80

Ruolo
61/2015

Giudice
Caineri Marta

Recapiti
-

Email
-

Delegato alla vendita
Conti Giuseppe
(Procede alle operazioni di vendita)

Recapiti
Tel. 3714514206

Email
delegato.conti@gmail.com

Custode giudiziario
Conti Giuseppe
(Gestisce la visita del bene)

Recapiti
Tel. 3714514206

Scheda COD. 4266344 - Pubblicata dal 27/02/2026

La presente scheda di vendita riporta integralmente informazioni e documenti pervenuti ufficialmente dal Ministero e dal professionista incaricato.

Pubblicazione notarizzata su Blockchain


Pubblicazione autorizzata dall’Autorità competente, è vietata ogni ripubblicazione o riproduzione anche parziale


Ti interessa questa vendita?

Documentazione

Visualizza su mappa

Mappa geografica del bene

Storico delle vendite

Data venditaPrezzo base
24/03/2023€ 45.925,00
26/05/2023€ 36.740,00
18/10/2024€ 31.229,00
18/04/2025€ 24.984,00
11/07/2025€ 19.987,20
12/12/2025€ 15.990,00
24/04/2026€ 13.592,00

Punti di interesse

Fonte dati

Nel raggio di {{range}}Km

Loading...
  • {{ getIcon(poi.type) }} {{ poi.localized }}: {{poi.count}}
  • {{ getIcon(poi.type) }} {{ poi.localized }}: {{poi.count}}
Dati non disponibili