Astegiudiziarie.it è parte di Rete Aste Network

Accedi o registrati

Non sei ancora registrato?

Oppure

Accedi

Abitazione di tipo economico

Strada Alzate n. 124, Oleggio (NO)

€ 81.000,00

Offerta minima € 60.750,00


Codice A2800884

Lotto 7

Data udienza 12/12/2025 ore 12:00

Termine presentazione offerte 11/12/2025 ore 12:00

Abitazione di tipo economico

Strada Alzate n. 124, Oleggio (NO)

€ 81.000,00

Offerta minima € 60.750,00


Codice A2800884

Lotto 7

Data udienza 12/12/2025 ore 12:00

Termine presentazione offerte 11/12/2025 ore 12:00

Ti interessa questa vendita?

Documentazione

Visualizza su mappa

Mappa geografica del bene

Punti di interesse

Fonte dati

Nel raggio di {{range}}Km

Loading...
  • {{ getIcon(poi.type) }} {{ poi.localized }}: {{poi.count}}
  • {{ getIcon(poi.type) }} {{ poi.localized }}: {{poi.count}}
Dati non disponibili

COMUNE DI OLEGGIO (NO) - Strada Alzate n.124LOTTO 7Si vende la quota intera Casa colonica di tre piani fuori terra con antistanti due fabbricati rustici e corte comune oltre a terreni agricoli situati nel Comune di Oleggio.

Indirizzo
Strada Alzate n. 124, Oleggio (NO)


Codice asta
2800884


Lotto
7


Numero beni
1


Genere
Immobili


Categoria
Immobile residenziale


Valore di stima
-


Abitazione di tipo economico

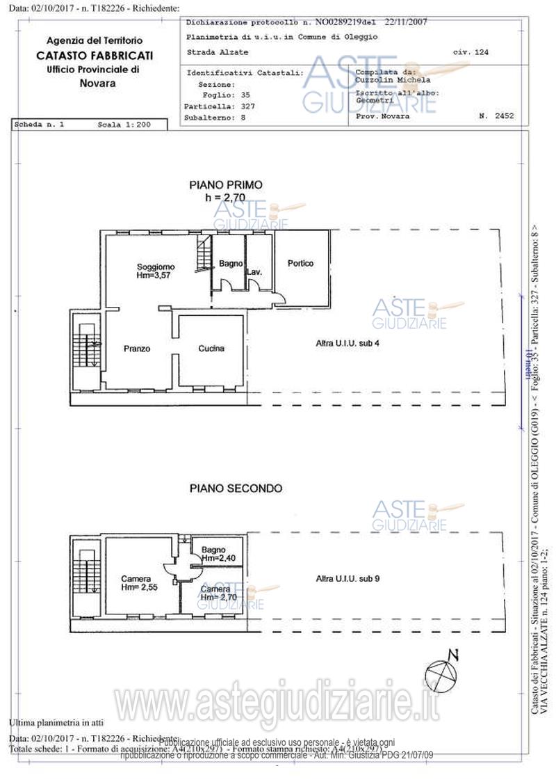
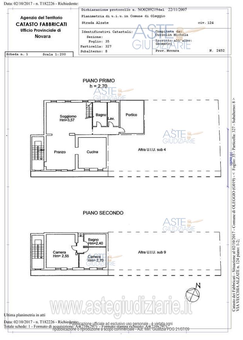
COMUNE DI OLEGGIO (NO) - Strada Alzate n.124 LOTTO 7 Si vende la quota intera Casa colonica di tre piani fuori terra con antistanti due fabbricati rustici e corte comune oltre a terreni agricoli situati nel Comune di Oleggio. L’edificio principale è suddiviso in quattro unità immobiliari distinte: a) Alloggio distribuito su due piani (terreno e primo) costituito al piano terra da due locali ampi (soggiorno e pranzo) separati da una scala interna e un vano minore (cucina). Non direttamente comunicante con l’abitazione si trova un locale deposito. Al piano primo si trovano tre camere da letto e un locale deposito non facilmente accessibile. b) Alloggio distribuito su due piani (primo e secondo) occupante il lato ovest della casa colonica e una sovrastante porzione parzialmente corrispondente. Una scala interna raggiunge il piano primo per proseguire sino al ballatoio del piano secondo. Al piano primo si trovano una sala da pranzo, una grande cucina e un ampio soggiorno, oltre a un servizio igienico, unalavanderia e un terrazzo chiuso su tre lati dal quale si accede a un vano al grezzo non riportato nelle planimetrie catastali. Dal soggiorno tramite una scala in metallo e legno si raggiunge il piano secondo, dove si trovano due camere da letto ed un bagno. c) Sottotetto al rustico raggiungibile attraverso le scale dei due alloggi distinti con i subalterni 4 e 8 che salgono sino al ballatoio prospicente il fronte sud dell’edificio. d) Ristorante-agriturismo situato al piano terreno lato nel ovest dell’edificio, con ingresso principale dal portico prospicente il fronte ovest in un ampio locale sala da pranzo, attiguo locale bar, servizi igienici e locale per il confezionamento degli insaccati. In direzione est lungo un ampio corridoio si trovano la cucina, la dispensa e un secondo servizio igienico con antibagno. Inoltre è presente un fabbricato rustico in mattoni ospitante due locali deposito, tre pollai, una porcilaia ed una latrina al piano terra e un fienile ed un pollaio al piano primo. Infine è presente un porticato chiuso su due lati con addossata una tettoia in legno.

Indirizzo
Strada Alzate n. 124, Oleggio (NO)


Piano
-


Disponibilità
-


Vani
-


Bagni
-


Metri quadri
-


Certificazione energetica
-


Dati catastali

Foglio:35, Particella:327, Subalterno:4
Foglio:35, Particella:327, Subalterno:7
Foglio:35, Particella:327, Subalterno:6
Foglio:35, Particella:327, Subalterno:10
Foglio:35, Particella:327, Subalterno:9
Foglio:35, Particella:327, Subalterno:8


Data udienza
12/12/2025 ore 12:00


Tipo di vendita
Senza incanto


Modalità di vendita
Asincrona telematica


Luogo
N.A. -


Luogo presentazione offerte
-


Termine presentazione offerte
11/12/2025 ore 12:00


Prezzo base
€ 81.000,00


Offerta minima
€ 60.750,00


Rialzo minimo in caso di gara
€ 1.500,00


Deposito cauzionale
10% del prezzo offerto


Deposito in conto spese
-


Tribunale
Novara

Tipo di procedura
Esecuzione immobiliare post legge 80

Ruolo
101/2017

Delegato alla vendita
Pertusi Raimondo
(Procede alle operazioni di vendita)

Recapiti
Tel. 0321640095

Email
novaraprocedureesecutive@gmail...

Delegato alla vendita
Pertusi Raimondo

Recapiti
Tel. 0321640095

Email
novaraprocedureesecutive@gmail...

Custode giudiziario
Ifir piemonte ivg 
(Gestisce la visita del bene)

Recapiti
Tel. 0321628676

Email

Scheda COD. 2800884 - Pubblicata dal 20/10/2025

La presente scheda di vendita riporta integralmente informazioni e documenti pervenuti ufficialmente dal Ministero e dal professionista incaricato.

Pubblicazione notarizzata su Blockchain


Pubblicazione autorizzata dall’Autorità competente, è vietata ogni ripubblicazione o riproduzione anche parziale


Ti interessa questa vendita?

Documentazione

Visualizza su mappa

Mappa geografica del bene

Storico delle vendite

Data venditaPrezzo base
16/07/2019€ 295.440,00
12/12/2019€ 237.000,00
09/12/2024€ 190.000,00
08/04/2025€ 143.000,00
17/07/2025€ 108.000,00
12/12/2025€ 81.000,00

Punti di interesse

Fonte dati

Nel raggio di {{range}}Km

Loading...
  • {{ getIcon(poi.type) }} {{ poi.localized }}: {{poi.count}}
  • {{ getIcon(poi.type) }} {{ poi.localized }}: {{poi.count}}
Dati non disponibili