Astegiudiziarie.it è parte di Rete Aste Network

Accedi o registrati

Non sei ancora registrato?

Oppure

Accedi

Abitazione di tipo economico

VIA TENENTE COSSU , Olbia (SS)

€ 192.000,00

Offerta minima € 144.000,00


Codice A4335205

Lotto Lotto unico

Data udienza 19/05/2026 ore 15:30

Termine presentazione offerte 18/05/2026 ore 23:59

Abitazione di tipo economico

VIA TENENTE COSSU , Olbia (SS)

€ 192.000,00

Offerta minima € 144.000,00


Codice A4335205

Lotto Lotto unico

Data udienza 19/05/2026 ore 15:30

Termine presentazione offerte 18/05/2026 ore 23:59

Ti interessa questa vendita?

Documentazione

Visualizza su mappa

Mappa geografica del bene

Punti di interesse

Fonte dati

Nel raggio di {{range}}Km

Loading...
  • {{ getIcon(poi.type) }} {{ poi.localized }}: {{poi.count}}
  • {{ getIcon(poi.type) }} {{ poi.localized }}: {{poi.count}}
Dati non disponibili

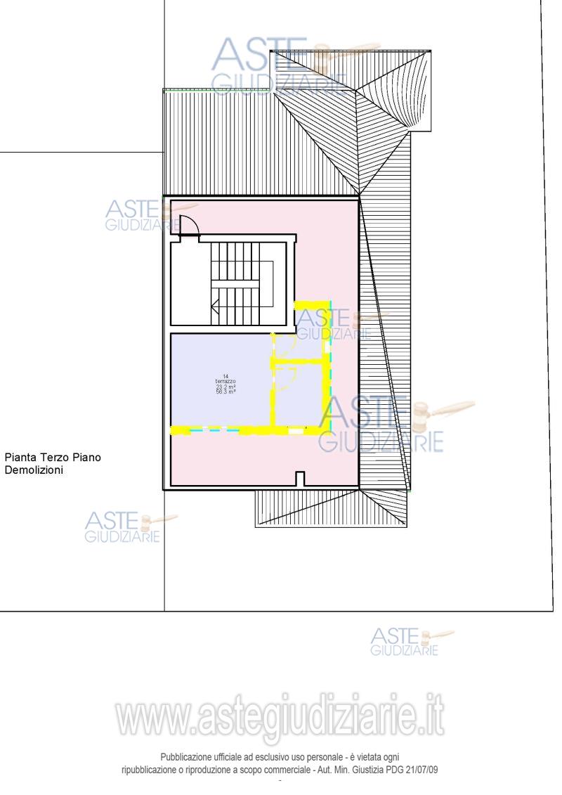
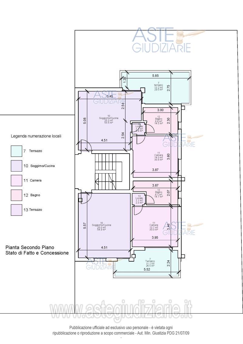
Piena proprietà degli Immobili - TERRENO DI SUPERFICIE di mq 208,FABBRICATO RESIDENZIALE mc 803,65 stato di fatto - ATTENZIONE VERIFICARE E PRENDERE NOTA DEL CONTENUTO DELLA PERIZIA DI STIMA Il lotto unico in Catasto Fabbricati:foglio 30, mappale 2693, sub 15 - a/2 - foglio 30, mappale 2693 sub 16 - A/2 -foglio 30, mappale 2693sub 17 - A/2 -foglio 30, mappale 2693sub 18 - A/2 -foglio 30, mappale 2693sub 19 - A/2 -foglio 30, mappale 2693sub 20 - C/6 -foglio 30, mappale 2693 sub 21- C/6

Indirizzo
VIA TENENTE COSSU , Olbia (SS)


Codice asta
4335205


Lotto
Lotto unico


Numero beni
1


Genere
Immobili


Categoria
Immobile residenziale


Valore di stima
-


Abitazione di tipo economico

Piena proprietà degli Immobili siti nel Comune di Olbia, in via Tenente Cossu n°12, zona ParcoNoce,COMPOSTO DA:TERRENO DI SUPERFICIE foglio 30 mappale 2693 sub 5 di mq 208,FABBRICATO RESIDENZIALE mc 803,65 stato di fatto.Il lotto unico si compone dei seguenti immobili, distinto in Catasto Fabbricati:foglio 30, mappale 2693, sub 15 - categoria catastale A/2 - rendita 433,82foglio 30, mappale 2693 sub 16 - categoria catastale A/2 - rendita 433,82foglio 30, mappale 2693sub 17 - categoria catastale A/2 - rendita 433,82foglio 30, mappale 2693sub 18 - categoria catastale A/2 - rendita 650,74foglio 30, mappale 2693sub 19 - categoria catastale A/2 - rendita 433,82foglio 30, mappale 2693sub 20 - categoria catastale C/6 - rendita 85,11foglio 30, mappale 2693 sub 21- categoria catastale C/6 - rendita 111,55PUC zona B e specificatamente in zona Br1Confini catastalifoglio 30, mappale 2693 sub 26, via Tenente Cossu e foglio 30, mappale 968.

Indirizzo
VIA TENENTE COSSU , Olbia (OT)


Piano
-


Disponibilità
-


Vani
-


Bagni
-


Metri quadri
-


Certificazione energetica
-


Dati catastali

Foglio:30, Particella:2693, Sub particella:15
Foglio:30, Particella:2693, Sub particella:16
Foglio:30, Particella:2693, Sub particella:17
Foglio:30, Particella:2693, Sub particella:18
Foglio:30, Particella:2693, Sub particella:19
Foglio:30, Particella:2693, Sub particella:20
Foglio:30, Particella:2693, Sub particella:21


Data udienza
19/05/2026 ore 15:30


Tipo di vendita
Senza incanto


Modalità di vendita
Asincrona telematica


Luogo
N.A. -


Luogo presentazione offerte
-


Termine presentazione offerte
18/05/2026 ore 23:59


Prezzo base
€ 192.000,00


Offerta minima
€ 144.000,00


Rialzo minimo in caso di gara
€ 2.000,00


Deposito cauzionale
10% del prezzo offerto


Deposito in conto spese
-


Tribunale
Tempio Pausania

Tipo di procedura
Esecuzione immobiliare post legge 80

Ruolo
61/2020

Giudice
Di giacomo  Alessandro

Recapiti
-

Email
-

Delegato alla vendita
Cocco Alessandra paola
(Procede alle operazioni di vendita)

Recapiti
Cell. 3484989850

Email
avvalessandracocco@gmail.com

Custode giudiziario
Ivg tempio pausania  
(Gestisce la visita del bene)

Recapiti
Tel. 079630505

Scheda COD. 4335205 - Pubblicata dal 20/03/2026

La presente scheda di vendita riporta integralmente informazioni e documenti pervenuti ufficialmente dal Ministero e dal professionista incaricato.

Pubblicazione notarizzata su Blockchain


Pubblicazione autorizzata dall’Autorità competente, è vietata ogni ripubblicazione o riproduzione anche parziale


Ti interessa questa vendita?

Documentazione

Visualizza su mappa

Mappa geografica del bene

Storico delle vendite

Data venditaPrezzo base
25/11/2025€ 320.000,00
25/02/2026€ 256.000,00
19/05/2026€ 192.000,00

Punti di interesse

Fonte dati

Nel raggio di {{range}}Km

Loading...
  • {{ getIcon(poi.type) }} {{ poi.localized }}: {{poi.count}}
  • {{ getIcon(poi.type) }} {{ poi.localized }}: {{poi.count}}
Dati non disponibili