Astegiudiziarie.it è parte di Rete Aste Network

Accedi o registrati

Non sei ancora registrato?

Oppure

Accedi

Abitazione di tipo civile, posto auto

loc. Sa Minda Noa via Parigi n. 36-38, Olbia (SS)

€ 342.800,00

Offerta minima € 257.100,00


Codice A4339944

Lotto Lotto unico

Data udienza 15/04/2026 ore 10:30

Termine presentazione offerte 14/04/2026 ore 23:59

Abitazione di tipo civile, posto auto

loc. Sa Minda Noa via Parigi n. 36-38, Olbia (SS)

€ 342.800,00

Offerta minima € 257.100,00


Codice A4339944

Lotto Lotto unico

Data udienza 15/04/2026 ore 10:30

Termine presentazione offerte 14/04/2026 ore 23:59

Ti interessa questa vendita?

Documentazione

Visualizza su mappa

Mappa geografica del bene

Punti di interesse

Fonte dati

Nel raggio di {{range}}Km

Loading...
  • {{ getIcon(poi.type) }} {{ poi.localized }}: {{poi.count}}
  • {{ getIcon(poi.type) }} {{ poi.localized }}: {{poi.count}}
Dati non disponibili

appartamento di civile abitazione

Indirizzo
loc. Sa Minda Noa via Parigi n. 36-38, Olbia (SS)


Codice asta
4339944


Lotto
Lotto unico


Numero beni
2


Genere
Immobili


Categoria
Immobile residenziale


Valore di stima
-


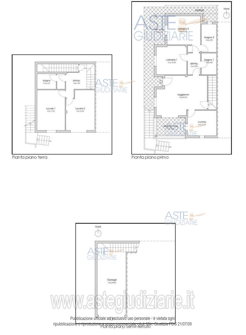
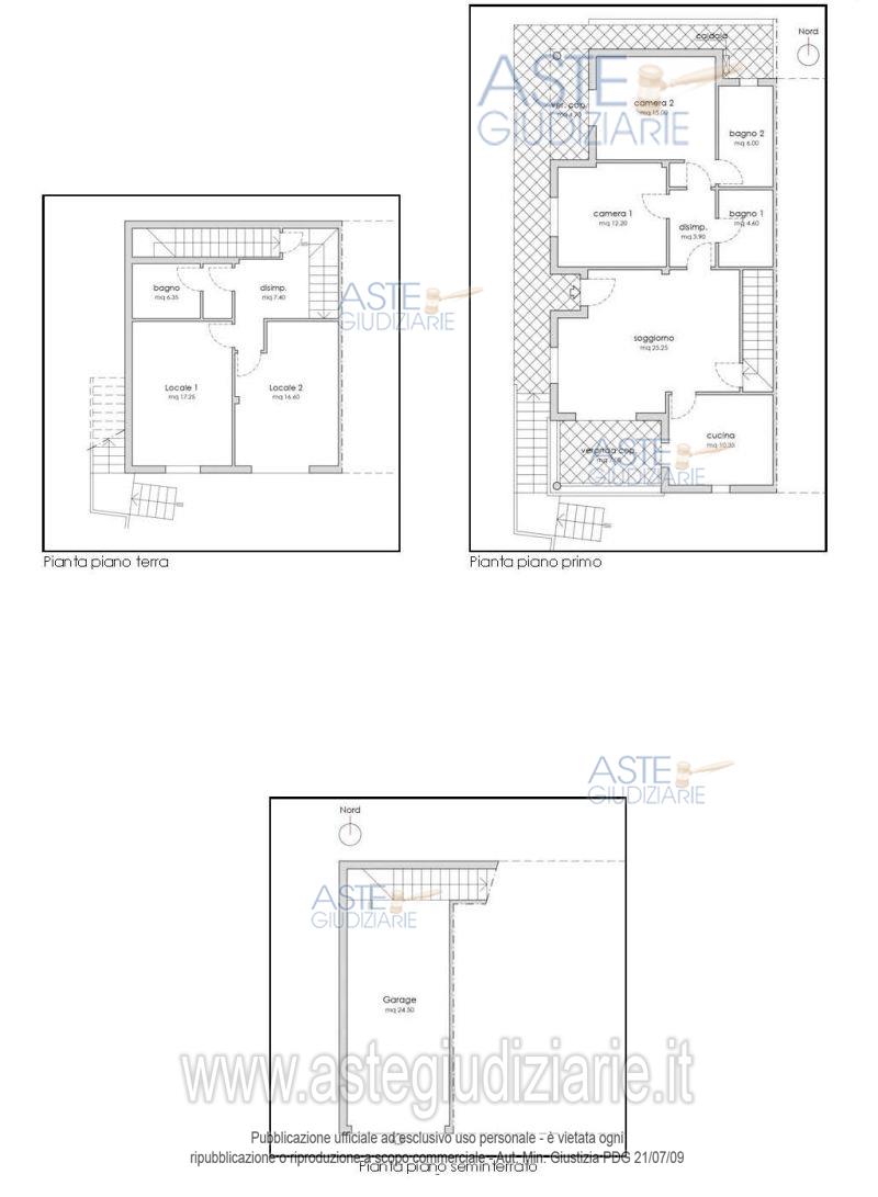
Abitazione di tipo civile

appartamento civile abitazione

Indirizzo
Loc. Sa Minda Noa via Parigi 36-38, Olbia (OT)


Piano
T1


Disponibilità
LIBERO


Vani
6,00


Bagni
-


Metri quadri
140,00


Certificazione energetica
-


Dati catastali

Foglio:23, Sezione:U, Particella:1552, Subalterno:4


Posto auto

box auto

Indirizzo
loc Sa Minda Noa via Parigi n. 36-38, Olbia (OT)


Piano
T


Disponibilità
LIBERO


Vani
-


Bagni
-


Metri quadri
27,00


Certificazione energetica
-


Dati catastali

Foglio:23, Sezione:U, Particella:1552, Subalterno:13


Data udienza
15/04/2026 ore 10:30


Tipo di vendita
Senza incanto


Modalità di vendita
Asincrona telematica


Luogo
N.A. -


Luogo presentazione offerte
-


Termine presentazione offerte
14/04/2026 ore 23:59


Prezzo base
€ 342.800,00


Offerta minima
€ 257.100,00


Rialzo minimo in caso di gara
€ 4.000,00


Deposito cauzionale
10% del prezzo offerto


Deposito in conto spese
-


Tribunale
Tempio Pausania

Tipo di procedura
Esecuzione immobiliare post legge 80

Ruolo
279/2016

Giudice
Palombella Antonia

Recapiti
-

Email
-

Delegato alla vendita
Giagheddu Nicolina anna
(Procede alle operazioni di vendita)

Recapiti
Tel. 079670282

Email
linagiag@tiscali.it

Custode giudiziario
Ivg tempio pausania 
(Gestisce la visita del bene)

Recapiti
Tel. 079630505

Scheda COD. 4339944 - Pubblicata dal 25/02/2026

La presente scheda di vendita riporta integralmente informazioni e documenti pervenuti ufficialmente dal Ministero e dal professionista incaricato.

Pubblicazione notarizzata su Blockchain


Pubblicazione autorizzata dall’Autorità competente, è vietata ogni ripubblicazione o riproduzione anche parziale


Ti interessa questa vendita?

Documentazione

Visualizza su mappa

Mappa geografica del bene

Storico delle vendite

Data venditaPrezzo base
10/02/2026€ 428.500,00
15/04/2026€ 342.800,00

Punti di interesse

Fonte dati

Nel raggio di {{range}}Km

Loading...
  • {{ getIcon(poi.type) }} {{ poi.localized }}: {{poi.count}}
  • {{ getIcon(poi.type) }} {{ poi.localized }}: {{poi.count}}
Dati non disponibili