Astegiudiziarie.it è parte di Rete Aste Network

Accedi o registrati

Non sei ancora registrato?

Oppure

Accedi

Appartamento

Via Passo del Bracco n. 28, Nettuno (RM)

€ 92.000,00

Offerta minima € 69.000,00


Codice A4274037

Lotto Lotto unico

Data udienza 26/03/2026 ore 10:00

Termine presentazione offerte 25/03/2026 ore 23:59

Appartamento

Via Passo del Bracco n. 28, Nettuno (RM)

€ 92.000,00

Offerta minima € 69.000,00


Codice A4274037

Lotto Lotto unico

Data udienza 26/03/2026 ore 10:00

Termine presentazione offerte 25/03/2026 ore 23:59

Ti interessa questa vendita?

Documentazione

Visualizza su mappa

Mappa geografica del bene

Punti di interesse

Fonte dati

Nel raggio di {{range}}Km

Loading...
  • {{ getIcon(poi.type) }} {{ poi.localized }}: {{poi.count}}
  • {{ getIcon(poi.type) }} {{ poi.localized }}: {{poi.count}}
Dati non disponibili

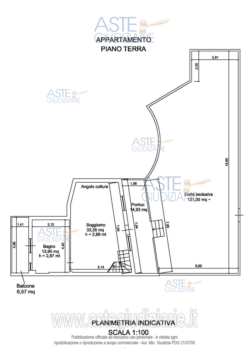
Appartamento ai piani terra-primo, con annessa corte esclusiva, composto da un soggiorno con angolo cottura, un bagno, un portico e un balcone al piano terra, e da tre camere da letto, un bagno, disimpegno e due balconi al piano primo.

Indirizzo
Via Passo del Bracco n. 28, Nettuno (RM)


Codice asta
4274037


Lotto
Lotto unico


Numero beni
1


Genere
Immobili


Categoria
Immobile residenziale


Valore di stima
-


Appartamento

Appartamento ai piani terra-primo, con annessa corte esclusiva, composto da un soggiorno con angolo cottura, un bagno, un portico e un balcone al piano terra, e da tre camere da letto, un bagno, disimpegno e due balconi al piano primo.

Indirizzo
Via Passo del Bracco n. 28, Nettuno (RM)


Piano
-


Disponibilità
-


Vani
4,00


Bagni
2


Metri quadri
121,00


Certificazione energetica
-


Data udienza
26/03/2026 ore 10:00


Tipo di vendita
Senza incanto


Modalità di vendita
Asincrona telematica


Luogo
-


Luogo presentazione offerte
-


Termine presentazione offerte
25/03/2026 ore 23:59


Prezzo base
€ 92.000,00


Offerta minima
€ 69.000,00


Rialzo minimo in caso di gara
€ 5.000,00


Deposito cauzionale
10% del prezzo offerto


Deposito in conto spese
-


Tribunale
Velletri

Tipo di procedura
Esecuzione immobiliare post legge 80

Ruolo
212/2022

Giudice
Di serafino Anna luisa

Recapiti
-

Email
-

Delegato alla vendita
Lattanzio Consuelo
(Procede alle operazioni di vendita)

Recapiti
Cell. 3387082399
Tel. 06-9640243

Email
avvconsuelolattanzio@gmail.com

Custode giudiziario
Istituto vendite giudiziarie di roma 
(Gestisce la visita del bene)

Recapiti
Tel. 0689164325

Scheda COD. 4274037 - Pubblicata dal 19/01/2026

La presente scheda di vendita riporta integralmente informazioni e documenti pervenuti ufficialmente dal Ministero e dal professionista incaricato.

Pubblicazione notarizzata su Blockchain


Pubblicazione autorizzata dall’Autorità competente, è vietata ogni ripubblicazione o riproduzione anche parziale


Ti interessa questa vendita?

Documentazione

Visualizza su mappa

Mappa geografica del bene

Storico delle vendite

Data venditaPrezzo base
06/07/2023€ 139.000,00
24/01/2024€ 112.000,00
26/09/2024€ 92.000,00
26/03/2026€ 92.000,00

Punti di interesse

Fonte dati

Nel raggio di {{range}}Km

Loading...
  • {{ getIcon(poi.type) }} {{ poi.localized }}: {{poi.count}}
  • {{ getIcon(poi.type) }} {{ poi.localized }}: {{poi.count}}
Dati non disponibili