Astegiudiziarie.it è parte di Rete Aste Network

Accedi o registrati

Non sei ancora registrato?

Oppure

Accedi

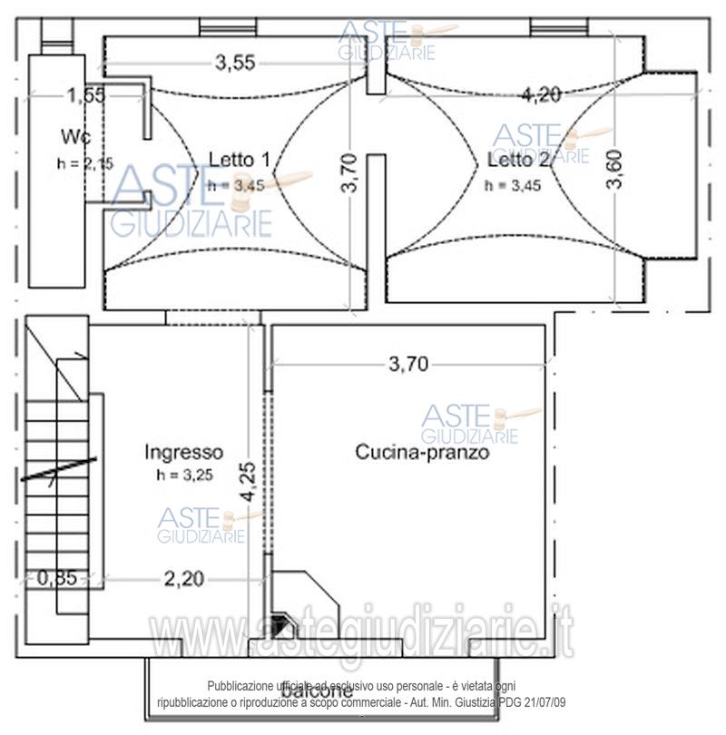
Abitazione di tipo civile

VIA ENRICO CIALDINI 25, Nardò (LE)

€ 58.950,00

Offerta minima € 44.213,00


Codice A4344205

Lotto Lotto unico

Data udienza 27/04/2026 ore 10:00

Termine presentazione offerte 20/04/2026 ore 12:00

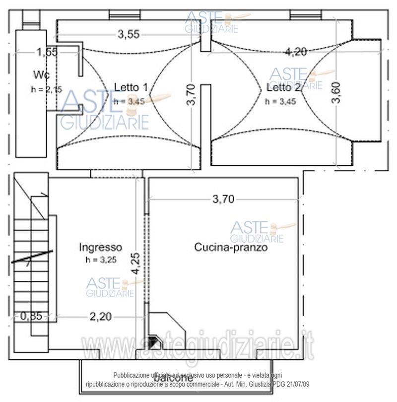
Abitazione di tipo civile

VIA ENRICO CIALDINI 25, Nardò (LE)

€ 58.950,00

Offerta minima € 44.213,00


Codice A4344205

Lotto Lotto unico

Data udienza 27/04/2026 ore 10:00

Termine presentazione offerte 20/04/2026 ore 12:00

Ti interessa questa vendita?

Documentazione

Visualizza su mappa

Mappa geografica del bene

Punti di interesse

Fonte dati

Nel raggio di {{range}}Km

Loading...
  • {{ getIcon(poi.type) }} {{ poi.localized }}: {{poi.count}}
  • {{ getIcon(poi.type) }} {{ poi.localized }}: {{poi.count}}
Dati non disponibili

APPARTAMENTO AL PRIMO PIANO

Indirizzo
VIA ENRICO CIALDINI 25, Nardò (LE)


Codice asta
4344205


Lotto
Lotto unico


Numero beni
1


Genere
Immobili


Categoria
Immobile residenziale


Valore di stima
-


Abitazione di tipo civile

ABITAZIONE AL PRIMO PIANO

Indirizzo
VIA ENRICO CIALDINI 25, Nardò (LE)


Piano
-


Disponibilità
-


Vani
4,50


Bagni
-


Metri quadri
71,00


Certificazione energetica
-


Data udienza
27/04/2026 ore 10:00


Tipo di vendita
Senza incanto


Modalità di vendita
Asincrona telematica


Luogo
N.A. -


Luogo presentazione offerte
-


Termine presentazione offerte
20/04/2026 ore 12:00


Prezzo base
€ 58.950,00


Offerta minima
€ 44.213,00


Rialzo minimo in caso di gara
€ 1.000,00


Deposito cauzionale
10% del prezzo offerto


Deposito in conto spese
-


Tribunale
Lecce

Tipo di procedura
Espropriazione immobiliare (cartabia)

Ruolo
248/2024

Giudice
Capone Anna francesca

Recapiti
-

Email
-

Delegato alla vendita
Maggio Caterina
(Procede alle operazioni di vendita)
(Gestisce la visita del bene)

Recapiti
Cell. 3206819399
Tel. 3206819399

Scheda COD. 4344205 - Pubblicata dal 04/02/2026

La presente scheda di vendita riporta integralmente informazioni e documenti pervenuti ufficialmente dal Ministero e dal professionista incaricato.


Pubblicazione autorizzata dall’Autorità competente, è vietata ogni ripubblicazione o riproduzione anche parziale


Ti interessa questa vendita?

Documentazione

Visualizza su mappa

Mappa geografica del bene

Punti di interesse

Fonte dati

Nel raggio di {{range}}Km

Loading...
  • {{ getIcon(poi.type) }} {{ poi.localized }}: {{poi.count}}
  • {{ getIcon(poi.type) }} {{ poi.localized }}: {{poi.count}}
Dati non disponibili