Astegiudiziarie.it è parte di Rete Aste Network

Accedi o registrati

Non sei ancora registrato?

Oppure

Accedi

Abitazione di tipo civile

Via Roma Verso Scampia, 8, 80144 Napoli NA, Italia, Napoli (NA)

€ 99.140,63

Offerta minima € 74.355,47


Codice A4321767

Lotto Lotto unico

Data udienza 09/06/2026 ore 16:30

Termine presentazione offerte 08/06/2026 ore 23:59

Abitazione di tipo civile

Via Roma Verso Scampia, 8, 80144 Napoli NA, Italia, Napoli (NA)

€ 99.140,63

Offerta minima € 74.355,47


Codice A4321767

Lotto Lotto unico

Data udienza 09/06/2026 ore 16:30

Termine presentazione offerte 08/06/2026 ore 23:59

Ti interessa questa vendita?

Documentazione

Visualizza su mappa

Mappa geografica del bene

Punti di interesse

Fonte dati

Nel raggio di {{range}}Km

Loading...
  • {{ getIcon(poi.type) }} {{ poi.localized }}: {{poi.count}}
  • {{ getIcon(poi.type) }} {{ poi.localized }}: {{poi.count}}
Dati non disponibili

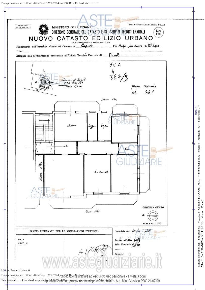
Appartamento sito in Napoli (NA) alla Traversa 1 Roma Verso Scampia (catastalmente via Cupa Aeranova dell'Arco), piano secondo, della superficie commerciale di circa 185 mq, composto da ingresso, salone, corridoio, cucina, tre camere con annessi balconi, due bagni ed un ripostiglio.

Indirizzo
Via Roma Verso Scampia, 8, 80144 Napoli NA, Italia, Napoli (NA)


Codice asta
4321767


Lotto
Lotto unico


Numero beni
1


Genere
Immobili


Categoria
Immobile residenziale


Valore di stima
-


Abitazione di tipo civile

Appartamento sito in Napoli (NA) alla Traversa 1 Roma Verso Scampia (catastalmente via Cupa Aeranova dell'Arco), piano secondo, della superficie commerciale di circa 185 mq, composto da ingresso, salone, corridoio, cucina, tre camere con annessi balconi, due bagni ed un ripostiglio

Indirizzo
Via Roma Verso Scampia, 8, 80144 Napoli NA, Italia, Napoli (NA)


Piano
2


Disponibilità
LIBERO


Vani
7,50


Bagni
-


Metri quadri
185,00


Certificazione energetica
-


Dati catastali

Foglio:4, Sezione:SCA, Particella:327, Subalterno:9


Data udienza
09/06/2026 ore 16:30


Tipo di vendita
Senza incanto


Modalità di vendita
Asincrona telematica


Luogo
N.A. -


Luogo presentazione offerte
-


Termine presentazione offerte
08/06/2026 ore 23:59


Prezzo base
€ 99.140,63


Offerta minima
€ 74.355,47


Rialzo minimo in caso di gara
€ 5.000,00


Deposito cauzionale
10% del prezzo offerto


Deposito in conto spese
-


Tribunale
Napoli

Tipo di procedura
Espropriazione immobiliare (cartabia)

Ruolo
570/2023

Delegato alla vendita
Vitale Stefano
(Procede alle operazioni di vendita)

Recapiti
Cell. 3389878810
Tel. 08118088520

Email
stefanovitale@studiolegalevita...

Custode giudiziario
Vitale Stefano
(Gestisce la visita del bene)

Recapiti
Cell. 3389878810
Tel. 08118088520

Scheda COD. 4321767 - Pubblicata dal 07/04/2026

La presente scheda di vendita riporta integralmente informazioni e documenti pervenuti ufficialmente dal Ministero e dal professionista incaricato.


Pubblicazione autorizzata dall’Autorità competente, è vietata ogni ripubblicazione o riproduzione anche parziale


Ti interessa questa vendita?

Documentazione

Visualizza su mappa

Mappa geografica del bene

Storico delle vendite

Data venditaPrezzo base
27/05/2025€ 235.000,00
07/10/2025€ 176.250,00
10/02/2026€ 132.187,50
09/06/2026€ 99.140,63

Punti di interesse

Fonte dati

Nel raggio di {{range}}Km

Loading...
  • {{ getIcon(poi.type) }} {{ poi.localized }}: {{poi.count}}
  • {{ getIcon(poi.type) }} {{ poi.localized }}: {{poi.count}}
Dati non disponibili