Astegiudiziarie.it è parte di Rete Aste Network

Accedi o registrati

Non sei ancora registrato?

Oppure

Accedi

Abitazione di tipo popolare

Corso Sirena n. 165, Napoli (NA)

€ 49.359,38

Offerta minima € 37.019,54


Codice A4285227

Lotto Lotto unico

Data udienza 05/05/2026 ore 15:30

Termine presentazione offerte 04/05/2026 ore 23:59

Abitazione di tipo popolare

Corso Sirena n. 165, Napoli (NA)

€ 49.359,38

Offerta minima € 37.019,54


Codice A4285227

Lotto Lotto unico

Data udienza 05/05/2026 ore 15:30

Termine presentazione offerte 04/05/2026 ore 23:59

Ti interessa questa vendita?

Documentazione

Visualizza su mappa

Mappa geografica del bene

Punti di interesse

Fonte dati

Nel raggio di {{range}}Km

Loading...
  • {{ getIcon(poi.type) }} {{ poi.localized }}: {{poi.count}}
  • {{ getIcon(poi.type) }} {{ poi.localized }}: {{poi.count}}
Dati non disponibili

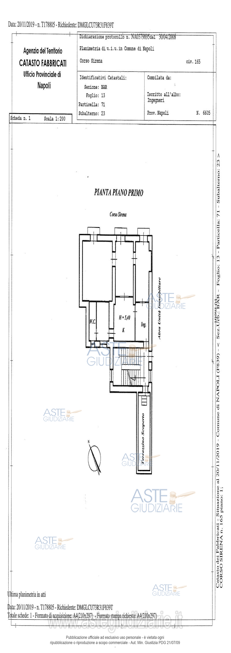
appartamento posto al primo piano di un fabbricato di antichissima costruzione di epoca preottocentesca

Indirizzo
Corso Sirena n. 165, Napoli (NA)


Codice asta
4285227


Lotto
Lotto unico


Numero beni
1


Genere
Immobili


Categoria
Immobile residenziale


Valore di stima
-


Abitazione di tipo popolare

appartamento posto al primo piano di un fabbricato di antichissima costruzione di epoca preottocentesca

Indirizzo
Corso Sirena n. 165, Napoli (NA)


Piano
-


Disponibilità
OCCUPATO


Vani
5,00


Bagni
-


Metri quadri
142,00


Certificazione energetica
-


Dati catastali

Foglio:13, Sezione:bar, Particella:71, Subalterno:23


Data udienza
05/05/2026 ore 15:30


Tipo di vendita
Senza incanto


Modalità di vendita
Asincrona telematica


Luogo
N.A. -


Luogo presentazione offerte
-


Termine presentazione offerte
04/05/2026 ore 23:59


Prezzo base
€ 49.359,38


Offerta minima
€ 37.019,54


Rialzo minimo in caso di gara
€ 1.000,00


Deposito cauzionale
10% del prezzo offerto


Deposito in conto spese
-


Tribunale
Napoli

Tipo di procedura
Esecuzione immobiliare post legge 80

Ruolo
477/2016

Giudice
Manera Guglielmo

Recapiti
-

Email
-

Delegato alla vendita
Petretta Martina
(Procede alle operazioni di vendita)
(Gestisce la visita del bene)

Recapiti
Tel. 0817640332

Scheda COD. 4285227 - Pubblicata dal 02/03/2026

La presente scheda di vendita riporta integralmente informazioni e documenti pervenuti ufficialmente dal Ministero e dal professionista incaricato.

Pubblicazione notarizzata su Blockchain


Pubblicazione autorizzata dall’Autorità competente, è vietata ogni ripubblicazione o riproduzione anche parziale


Ti interessa questa vendita?

Documentazione

Visualizza su mappa

Mappa geografica del bene

Storico delle vendite

Data venditaPrezzo base
19/12/2023€ 117.000,00
05/06/2024€ 87.750,00
14/01/2025€ 65.812,50
05/05/2026€ 49.359,38

Punti di interesse

Fonte dati

Nel raggio di {{range}}Km

Loading...
  • {{ getIcon(poi.type) }} {{ poi.localized }}: {{poi.count}}
  • {{ getIcon(poi.type) }} {{ poi.localized }}: {{poi.count}}
Dati non disponibili