Astegiudiziarie.it è parte di Rete Aste Network

Accedi o registrati

Non sei ancora registrato?

Oppure

Accedi

Abitazione di tipo civile

Via Tintoretto, 17, 84096 Macchia SA, Italia, Montecorvino Rovella (SA)

€ 121.500,00

Offerta minima € 91.125,00


Codice A4215119

Lotto 3

Data udienza 20/01/2026 ore 17:00

Termine presentazione offerte 19/01/2026 ore 12:30

Abitazione di tipo civile

Via Tintoretto, 17, 84096 Macchia SA, Italia, Montecorvino Rovella (SA)

€ 121.500,00

Offerta minima € 91.125,00


Codice A4215119

Lotto 3

Data udienza 20/01/2026 ore 17:00

Termine presentazione offerte 19/01/2026 ore 12:30

Ti interessa questa vendita?

Documentazione

Visualizza su mappa

Mappa geografica del bene

Punti di interesse

Fonte dati

Nel raggio di {{range}}Km

Loading...
  • {{ getIcon(poi.type) }} {{ poi.localized }}: {{poi.count}}
  • {{ getIcon(poi.type) }} {{ poi.localized }}: {{poi.count}}
Dati non disponibili

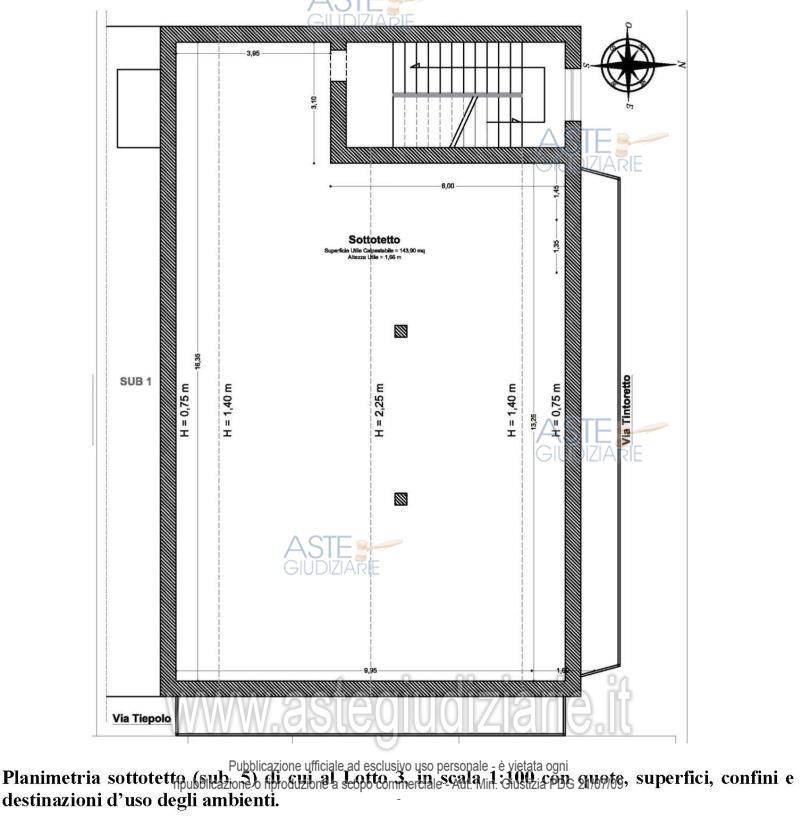
Piena proprietà di appartamento per civile abitazione e sottotetto con ulteriori pertinenze.

Indirizzo
Via Tintoretto, 17, 84096 Macchia SA, Italia, Montecorvino Rovella (SA)


Codice asta
4215119


Lotto
3


Numero beni
1


Genere
Immobili


Categoria
Immobile residenziale


Valore di stima
-


Abitazione di tipo civile

Piena proprietà di appartamento per civile abitazione e sottotetto con ulteriori pertinenze.

Indirizzo
Via Tintoretto, 17, 84096 Macchia SA, Italia, Montecorvino Rovella (SA)


Piano
-


Disponibilità
-


Vani
7,00


Bagni
-


Metri quadri
143,90


Certificazione energetica
-


Data udienza
20/01/2026 ore 17:00


Tipo di vendita
Senza incanto


Modalità di vendita
Asincrona telematica


Luogo
-


Luogo presentazione offerte
-


Termine presentazione offerte
19/01/2026 ore 12:30


Prezzo base
€ 121.500,00


Offerta minima
€ 91.125,00


Rialzo minimo in caso di gara
-


Deposito cauzionale
10% del prezzo offerto


Deposito in conto spese
-


Tribunale
Salerno

Tipo di procedura
Esecuzione immobiliare post legge 80

Ruolo
262/2018

Giudice
Valiante Giuseppina

Recapiti
-

Email
-

Delegato alla vendita
Liguori Stefania
(Procede alle operazioni di vendita)

Recapiti
Cell. 3382438944

Email
-

Custode giudiziario
Angrisani Rosanna
(Gestisce la visita del bene)

Recapiti
Cell. 3929874345

Scheda COD. 4215119 - Pubblicata dal 10/11/2025

La presente scheda di vendita riporta integralmente informazioni e documenti pervenuti ufficialmente dal Ministero e dal professionista incaricato.

Pubblicazione notarizzata su Blockchain


Pubblicazione autorizzata dall’Autorità competente, è vietata ogni ripubblicazione o riproduzione anche parziale


Ti interessa questa vendita?

Documentazione

Visualizza su mappa

Mappa geografica del bene

Storico delle vendite

Data venditaPrezzo base
13/10/2021€ 200.000,00
30/11/2022€ 200.000,00
17/05/2023€ 150.000,00
21/12/2023€ 135.000,00
18/06/2024€ 121.500,00
20/01/2026€ 121.500,00

Punti di interesse

Fonte dati

Nel raggio di {{range}}Km

Loading...
  • {{ getIcon(poi.type) }} {{ poi.localized }}: {{poi.count}}
  • {{ getIcon(poi.type) }} {{ poi.localized }}: {{poi.count}}
Dati non disponibili