Astegiudiziarie.it è parte di Rete Aste Network

Accedi o registrati

Non sei ancora registrato?

Oppure

Accedi

Appartamento

Via Martiri della Resistenza n. 11, Monte San Vito (AN)

€ 81.990,00

Offerta minima € 81.990,00


Codice A4332129

Lotto 1

Data udienza 24/03/2026 ore 11:00

Termine presentazione offerte 23/03/2026 ore 12:00

Appartamento

Via Martiri della Resistenza n. 11, Monte San Vito (AN)

€ 81.990,00

Offerta minima € 81.990,00


Codice A4332129

Lotto 1

Data udienza 24/03/2026 ore 11:00

Termine presentazione offerte 23/03/2026 ore 12:00

Ti interessa questa vendita?

Documentazione

Visualizza su mappa

Mappa geografica del bene

Punti di interesse

Fonte dati

Nel raggio di {{range}}Km

Loading...
  • {{ getIcon(poi.type) }} {{ poi.localized }}: {{poi.count}}
  • {{ getIcon(poi.type) }} {{ poi.localized }}: {{poi.count}}
Dati non disponibili

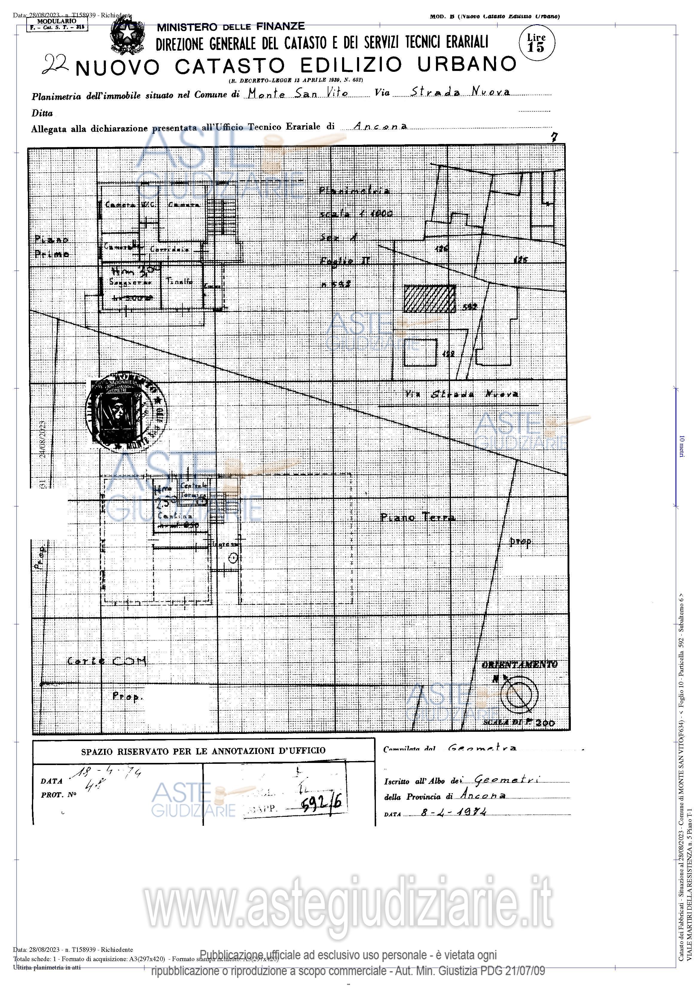
Per la piena ed intera proprietà oltre a una cantina al piano terra, Appartamento di circa 95 mq netti, posto al primo piano di una palazzina di tre piani fuori terra e soffitta, sita in Via Martiri della Resistenza n. 11 oltre ad una cantina al piano terra. La palazzina è stata edificata agli inizi degli anni “70” ed è costituita da un totale di cinque appartamenti, più garage e cantine. L’appartamento è così distribuito: zona giorno, composta da tinello, cucinino e soggiorno, esposta a sud-ovest con accesso al balcone sia dal soggiorno che dal tinello, zona notte composta da due camere da letto, studio e bagno. Impianto di riscaldamento autonomo. Alla cantina, di circa 14 mq netti e con un altezza di circa 2,50 m si accede dall’ingresso condominiale al piano terra, tramite un corridoio comune ad altre unità ed è dotata di impianto elettrico e idrico (lavabo e relativo scarico).

Indirizzo
Via Martiri della Resistenza n. 11, Monte San Vito (AN)


Codice asta
4332129


Lotto
1


Numero beni
1


Genere
Immobili


Categoria
Immobile residenziale


Valore di stima
-


Appartamento

Per la piena ed intera proprietà oltre a una cantina al piano terra, Appartamento di circa 95 mq netti, posto al primo piano di una palazzina di tre piani fuori terra e soffitta, sita in Via Martiri della Resistenza n. 11 oltre ad una cantina al piano terra. La palazzina è stata edificata agli inizi degli anni “70” ed è costituita da un totale di cinque appartamenti, più garage e cantine. L’appartamento è così distribuito: zona giorno, composta da tinello, cucinino e soggiorno, esposta a sud-ovest con accesso al balcone sia dal soggiorno che dal tinello, zona notte composta da due camere da letto, studio e bagno. Impianto di riscaldamento autonomo. Alla cantina, di circa 14 mq netti e con un altezza di circa 2,50 m si accede dall’ingresso condominiale al piano terra, tramite un corridoio comune ad altre unità ed è dotata di impianto elettrico e idrico (lavabo e relativo scarico).

Indirizzo
Via Martiri della Resistenza n. 11, Monte San Vito (AN)


Piano
-


Disponibilità
-


Vani
6,00


Bagni
-


Metri quadri
115,00


Certificazione energetica
-


Data udienza
24/03/2026 ore 11:00


Tipo di vendita
Senza incanto


Modalità di vendita
Asincrona telematica


Luogo
-


Luogo presentazione offerte
-


Termine presentazione offerte
23/03/2026 ore 12:00


Prezzo base
€ 81.990,00


Offerta minima
€ 81.990,00


Rialzo minimo in caso di gara
€ 2.000,00


Deposito cauzionale
10% del prezzo offerto


Deposito in conto spese
-


Tribunale
Ancona

Tipo di procedura
Crisi da sovraindebitamento

Ruolo
147/2019

Giudice
Filippello Giuliana

Recapiti
-

Email
-

Soggetto specializzato alla vendita
Aste giudiziarie inlinea s.p.a. 
(Procede alle operazioni di vendita)

Recapiti
Tel. 0586 20141

Email
vendite@astegiudiziarie.it

Liquidatore
Candelori Valeria

Recapiti
-

Email
-

Scheda COD. 4332129 - Pubblicata dal 22/01/2026

La presente scheda di vendita riporta integralmente informazioni e documenti pervenuti ufficialmente dal Ministero e dal professionista incaricato.


Pubblicazione autorizzata dall’Autorità competente, è vietata ogni ripubblicazione o riproduzione anche parziale


Ti interessa questa vendita?

Documentazione

Visualizza su mappa

Mappa geografica del bene

Storico delle vendite

Data venditaPrezzo base
23/09/2025€ 91.100,00
04/12/2025€ 91.100,00
24/03/2026€ 81.990,00

Punti di interesse

Fonte dati

Nel raggio di {{range}}Km

Loading...
  • {{ getIcon(poi.type) }} {{ poi.localized }}: {{poi.count}}
  • {{ getIcon(poi.type) }} {{ poi.localized }}: {{poi.count}}
Dati non disponibili