Astegiudiziarie.it è parte di Rete Aste Network

Accedi o registrati

Non sei ancora registrato?

Oppure

Accedi

Abitazione di tipo civile

Via Giovanni Malagodi, 18, Montalto Uffugo (CS)

€ 87.637,50

Offerta minima € 65.728,12


Codice A4316113

Lotto Unico

Data udienza 21/01/2026 ore 10:00

Termine presentazione offerte 20/01/2026 ore 12:00

Abitazione di tipo civile

Via Giovanni Malagodi, 18, Montalto Uffugo (CS)

€ 87.637,50

Offerta minima € 65.728,12


Codice A4316113

Lotto Unico

Data udienza 21/01/2026 ore 10:00

Termine presentazione offerte 20/01/2026 ore 12:00

Ti interessa questa vendita?

Documentazione

Visualizza su mappa

Mappa geografica del bene

Punti di interesse

Fonte dati

Nel raggio di {{range}}Km

Loading...
  • {{ getIcon(poi.type) }} {{ poi.localized }}: {{poi.count}}
  • {{ getIcon(poi.type) }} {{ poi.localized }}: {{poi.count}}
Dati non disponibili

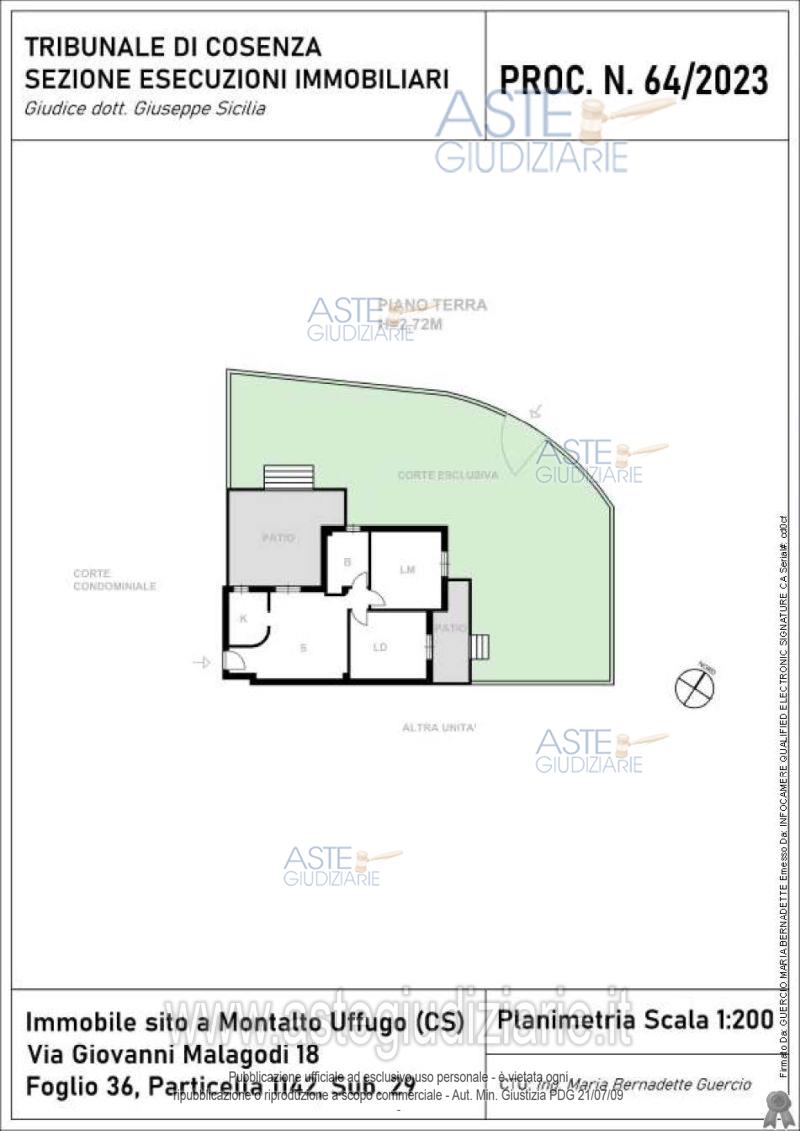
Appartamento di 80 mq (escluse aree esterne), al piano terra con due accessi: uno condominiale ed uno indipendente, area esterna privata con giardino (180 mq) e due patii (36 mq). Dal patio principale si accede al salone mentre il secondo patio è pertinenza di una delle 2 camere da letto. I vani presenti all'interno sono: una cucina, un bagno, 2 camere da letto doppie, un salotto ed un ingresso/corridoio. Possiede inoltre un posto auto interno all'area condominiale.

Indirizzo
Via Giovanni Malagodi, 18, Montalto Uffugo (CS)


Codice asta
4316113


Lotto
Unico


Numero beni
1


Genere
Immobili


Categoria
Immobile residenziale


Valore di stima
-


Abitazione di tipo civile

Appartamento di 80 mq (escluse aree esterne), al piano terra con due accessi: uno condominiale ed uno indipendente, area esterna privata con giardino (180 mq) e due patii (36 mq). Dal patio principale si accede al salone mentre il secondo patio è pertinenza di una delle 2 camere da letto. I vani presenti all'interno sono: una cucina, un bagno, 2 camere da letto doppie, un salotto ed un ingresso/corridoio. Possiede inoltre un posto auto interno all'area condominiale.

Indirizzo
Via Giovanni Malagodi, 18, Montalto Uffugo (CS)


Piano
T


Disponibilità
OCCUPATO


Vani
-


Bagni
-


Metri quadri
-


Certificazione energetica
-


Dati catastali

Foglio:36, Particella:1142, Subalterno:29


Data udienza
21/01/2026 ore 10:00


Tipo di vendita
Senza incanto


Modalità di vendita
Sincrona mista


Luogo
Sala Aste Telematiche - Stanza n. 2 - Uffici del Giudice di Pace, in Cosenza, Via Antonio Guarasci, piano VI - Cosenza 87100


Luogo presentazione offerte
-


Termine presentazione offerte
20/01/2026 ore 12:00


Prezzo base
€ 87.637,50


Offerta minima
€ 65.728,12


Rialzo minimo in caso di gara
€ 2.050,00


Deposito cauzionale
10% del prezzo offerto


Deposito in conto spese
-


Tribunale
Cosenza

Tipo di procedura
Espropriazione immobiliare (cartabia)

Ruolo
64/2023

Giudice
Sicilia Giuseppe

Recapiti
-

Email
-

Delegato alla vendita
Ricchiuti Marilena
(Procede alle operazioni di vendita)

Recapiti
Tel. 0984457838

Email
avvmarilenaricchiuti@gmail.com

Custode giudiziario
Ricchiuti Marilena
(Gestisce la visita del bene)

Recapiti
Tel. 0984457838

Scheda COD. 4316113 - Pubblicata dal 08/10/2025

La presente scheda di vendita riporta integralmente informazioni e documenti pervenuti ufficialmente dal Ministero e dal professionista incaricato.


Pubblicazione autorizzata dall’Autorità competente, è vietata ogni ripubblicazione o riproduzione anche parziale


Ti interessa questa vendita?

Documentazione

Visualizza su mappa

Mappa geografica del bene

Storico delle vendite

Data venditaPrezzo base
21/03/2025€ 102.500,00
24/07/2025€ 92.250,00
21/01/2026€ 87.637,50

Punti di interesse

Fonte dati

Nel raggio di {{range}}Km

Loading...
  • {{ getIcon(poi.type) }} {{ poi.localized }}: {{poi.count}}
  • {{ getIcon(poi.type) }} {{ poi.localized }}: {{poi.count}}
Dati non disponibili