Astegiudiziarie.it è parte di Rete Aste Network

Accedi o registrati

Non sei ancora registrato?

Oppure

Accedi

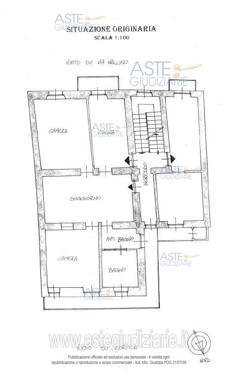
giudiziariagiudiziariaTribunale di CUNEOPROCEDURE CONCORSUALILIQUIDAZIONE CONTROLLATA (CCI)142025Soggetto specializzato alla venditaAste giudiziarie inlinea spaMNTGLC63E08E625HVENDITE@ASTEGIUDIZIARIE.ITtruetrueGiudicePaola ElefantefalsefalseLiquidatore giudizialeMonicaDe marchiDMRMNC73L44I470Tmonica@demarchistudio.it3358197084falsefalse2410242LOTTO UNICOIMMOBILIIMMOBILE RESIDENZIALEVia Pietro Nallino, 12084 Mondovì CN, Italia12038MondovìCuneoPiemonteItaliaPiena e perfetta proprietà per una quota pari all’intero dell’appartamento ad uso civile abitazione ubicato al piano primo del maggior fabbricato con accesso dalla Via Nallino n. 17, composto di ingresso, soggiorno, cucina, ripostiglio, due camere, anti bagno e bagno e due balconi; completa la consistenza un locale pertinenziale ubicato al piano quarto.3110012IMMOBILE RESIDENZIALEAPPARTAMENTOVia Pietro Nallino, 12084 Mondovì CN, Italia12038MondovìCuneoPiemonteItaliaAlloggio al piano primo con ingresso, soggiorno, cucina, ripostiglio, due camere, anti bagno e bagno e due balconi. Soffitta pertinenziale al piano quarto, composta da porzione di un unico locale. Pavimenti e rivestimenti in piastrella di ceramica di tipo semplice.Serramenti in alluminio con vetrocamera e persiane in legno.Balcone con affaccio su Via Nallino composto da elementi in pietra naturale di tipo tradizionale, mentre quello prospiciente sul cortile retrostante in latero-cemento.L’impianto di riscaldamento è autonomo alimentato a metano, la caldaia a tenuta stagna è posta nel locale cucina all’interno di apposito scomparto del mobile.L’abitazione risulta collegata all’acquedotto e fognatura pubblici.FABBRICATI92699162026-06-10T11:00:00SENZA INCANTOASINCRONA TELEMATICAN.A.80.262,0080.262,001.000,002026-06-09T12:00:00gestore delle venditehttp://www.astetelematiche.ithttp://www.astetelematiche.itsito pubblicitahttps://www.astegiudiziarie.ithttps://www.astegiudiziarie.it2026-03-18

Appartamento

Via Pietro Nallino, 12084 Mondovì CN, Italia, Mondovì (CN)

€ 80.262,00

Offerta minima € 80.262,00


Appartamento

Via Pietro Nallino, 12084 Mondovì CN, Italia, Mondovì (CN)

€ 80.262,00

Offerta minima € 80.262,00


Codice A4342906

Lotto Unico

Data udienza 10/06/2026 ore 11:00

Termine presentazione offerte 09/06/2026 ore 12:00

Ti interessa questa vendita?

Documentazione

Visualizza su mappa

Mappa geografica del bene

Punti di interesse

Fonte dati

Nel raggio di {{range}}Km

Loading...
  • {{ getIcon(poi.type) }} {{ poi.localized }}: {{poi.count}}
  • {{ getIcon(poi.type) }} {{ poi.localized }}: {{poi.count}}
Dati non disponibili

Piena e perfetta proprietà per una quota pari all’intero dell’appartamento ad uso civile abitazione ubicato al piano primo del maggior fabbricato con accesso dalla Via Nallino n. 17, composto di ingresso, soggiorno, cucina, ripostiglio, due camere, anti bagno e bagno e due balconi; completa la consistenza un locale pertinenziale ubicato al piano quarto.

Indirizzo
Via Pietro Nallino, 12084 Mondovì CN, Italia, Mondovì (CN)


Codice asta
4342906


Lotto
Unico


Numero beni
1


Genere
Immobili


Categoria
Immobile residenziale


Valore di stima
-


Appartamento

Alloggio al piano primo con ingresso, soggiorno, cucina, ripostiglio, due camere, anti bagno e bagno e due balconi. Soffitta pertinenziale al piano quarto, composta da porzione di un unico locale. Pavimenti e rivestimenti in piastrella di ceramica di tipo semplice.Serramenti in alluminio con vetrocamera e persiane in legno.Balcone con affaccio su Via Nallino composto da elementi in pietra naturale di tipo tradizionale, mentre quello prospiciente sul cortile retrostante in latero-cemento.L’impianto di riscaldamento è autonomo alimentato a metano, la caldaia a tenuta stagna è posta nel locale cucina all’interno di apposito scomparto del mobile.L’abitazione risulta collegata all’acquedotto e fognatura pubblici.

Indirizzo
Via Pietro Nallino, 12084 Mondovì CN, Italia, Mondovì (CN)


Piano
-


Disponibilità
-


Vani
-


Bagni
-


Metri quadri
118,00


Certificazione energetica
-


Dati catastali

Foglio:92, Sezione:FABBRICATI, Particella:699, Subalterno:16


Data udienza
10/06/2026 ore 11:00


Tipo di vendita
Senza incanto


Modalità di vendita
Asincrona telematica


Luogo
N.A. -


Luogo presentazione offerte
-


Termine presentazione offerte
09/06/2026 ore 12:00


Prezzo base
€ 80.262,00


Offerta minima
€ 80.262,00


Rialzo minimo in caso di gara
€ 1.000,00


Deposito cauzionale
10% del prezzo offerto


Deposito in conto spese
-


Tribunale
Cuneo

Tipo di procedura
Liquidazione controllata(cci)

Ruolo
14/2025

Giudice
Elefante Paola

Recapiti
-

Email
-

Professionista delegato
De marchi Monica

Recapiti
-

Email
-

Soggetto specializzato alla vendita
Aste giudiziarie inlinea spa 
(Procede alle operazioni di vendita)
(Gestisce la visita del bene)

Recapiti
-

Liquidatore giudiziale
De marchi Monica

Recapiti
Tel. 3358197084

Email
monica@demarchistudio.it

Scheda COD. 4342906 - Pubblicata dal 18/03/2026

La presente scheda di vendita riporta integralmente informazioni e documenti pervenuti ufficialmente dal Ministero e dal professionista incaricato.


Pubblicazione autorizzata dall’Autorità competente, è vietata ogni ripubblicazione o riproduzione anche parziale


Ti interessa questa vendita?

Documentazione

Visualizza su mappa

Mappa geografica del bene

Storico delle vendite

Data venditaPrezzo base
04/03/2026€ 88.200,00
10/06/2026€ 80.262,00

Punti di interesse

Fonte dati

Nel raggio di {{range}}Km

Loading...
  • {{ getIcon(poi.type) }} {{ poi.localized }}: {{poi.count}}
  • {{ getIcon(poi.type) }} {{ poi.localized }}: {{poi.count}}
Dati non disponibili