Astegiudiziarie.it è parte di Rete Aste Network

Accedi o registrati

Non sei ancora registrato?

Oppure

Accedi

Appartamento

Viale Loreto Gallinara 130B, Modica (RG)

€ 118.500,00

Offerta minima € 88.875,00


Codice A4348515

Lotto Lotto unico

Data udienza 28/05/2026 ore 16:00

Termine presentazione offerte 27/05/2026 ore 13:00

Appartamento

Viale Loreto Gallinara 130B, Modica (RG)

€ 118.500,00

Offerta minima € 88.875,00


Codice A4348515

Lotto Lotto unico

Data udienza 28/05/2026 ore 16:00

Termine presentazione offerte 27/05/2026 ore 13:00

Ti interessa questa vendita?

Documentazione

Visualizza su mappa

Mappa geografica del bene

Punti di interesse

Fonte dati

Nel raggio di {{range}}Km

Loading...
  • {{ getIcon(poi.type) }} {{ poi.localized }}: {{poi.count}}
  • {{ getIcon(poi.type) }} {{ poi.localized }}: {{poi.count}}
Dati non disponibili

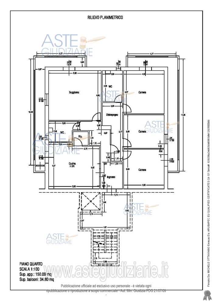
Appartamento al quarto piano di un edificio condominiale, sito a Modica in via Loreto Gallinara n. 130B, composto da un ingresso, una cucina, un ripostiglio, due servizi igienici-sanitari, un soggiorno e tre camere da letto. Box auto di 31 mq.

Indirizzo
Viale Loreto Gallinara 130B, Modica (RG)


Codice asta
4348515


Lotto
Lotto unico


Numero beni
1


Genere
Immobili


Categoria
Immobile residenziale


Valore di stima
-


Appartamento

Appartamento al quarto piano di un edificio condominiale, sito a Modica in via Loreto Gallinara n. 130B, composto da un ingresso, una cucina, un ripostiglio, due servizi igienici-sanitari, un soggiorno e tre camere da letto. Box auto di 31 mq.

Indirizzo
Viale Loreto Gallinara 130B, Modica (RG)


Piano
-


Disponibilità
LIBERO


Vani
7,00


Bagni
-


Metri quadri
150,00


Certificazione energetica
-


Data udienza
28/05/2026 ore 16:00


Tipo di vendita
Senza incanto


Modalità di vendita
Sincrona mista


Luogo
via G. D'Annunzio, 78 - Ragusa 97100


Luogo presentazione offerte
-


Termine presentazione offerte
27/05/2026 ore 13:00


Prezzo base
€ 118.500,00


Offerta minima
€ 88.875,00


Rialzo minimo in caso di gara
€ 2.000,00


Deposito cauzionale
-


Deposito in conto spese
-


Tribunale
Ragusa

Tipo di procedura
Espropriazione immobiliare (cartabia)

Ruolo
138/2024

Giudice
Rio Francesco

Recapiti
-

Email
-

Delegato alla vendita
Gulfi Giovanna
(Procede alle operazioni di vendita)

Recapiti
-

Email
-

Custode giudiziario
Gulfi Giovanna
(Gestisce la visita del bene)

Recapiti
Tel. 3382166591

Scheda COD. 4348515 - Pubblicata dal 03/04/2026

La presente scheda di vendita riporta integralmente informazioni e documenti pervenuti ufficialmente dal Ministero e dal professionista incaricato.


Pubblicazione autorizzata dall’Autorità competente, è vietata ogni ripubblicazione o riproduzione anche parziale


Ti interessa questa vendita?

Documentazione

Visualizza su mappa

Mappa geografica del bene

Punti di interesse

Fonte dati

Nel raggio di {{range}}Km

Loading...
  • {{ getIcon(poi.type) }} {{ poi.localized }}: {{poi.count}}
  • {{ getIcon(poi.type) }} {{ poi.localized }}: {{poi.count}}
Dati non disponibili