Astegiudiziarie.it è parte di Rete Aste Network

Accedi o registrati

Non sei ancora registrato?

Oppure

Accedi

Abitazione di tipo civile, lastrico solare

Via Vanella 139, 63, 97015 Modica RG, Italia, Modica (RG)

€ 84.000,00

Offerta minima € 63.000,00


Codice A4327177

Lotto Lotto unico

Data udienza 02/12/2025 ore 16:00

Termine presentazione offerte 01/12/2025 ore 13:00

Abitazione di tipo civile, lastrico solare

Via Vanella 139, 63, 97015 Modica RG, Italia, Modica (RG)

€ 84.000,00

Offerta minima € 63.000,00


Codice A4327177

Lotto Lotto unico

Data udienza 02/12/2025 ore 16:00

Termine presentazione offerte 01/12/2025 ore 13:00

Ti interessa questa vendita?

Documentazione

Visualizza su mappa

Mappa geografica del bene

Punti di interesse

Fonte dati

Nel raggio di {{range}}Km

Loading...
  • {{ getIcon(poi.type) }} {{ poi.localized }}: {{poi.count}}
  • {{ getIcon(poi.type) }} {{ poi.localized }}: {{poi.count}}
Dati non disponibili

Appartamento per civile abitazione e lastrico solare

Indirizzo
Via Vanella 139, 63, 97015 Modica RG, Italia, Modica (RG)


Codice asta
4327177


Lotto
Lotto unico


Numero beni
2


Genere
Immobili


Categoria
Immobile residenziale


Valore di stima
-


Abitazione di tipo civile

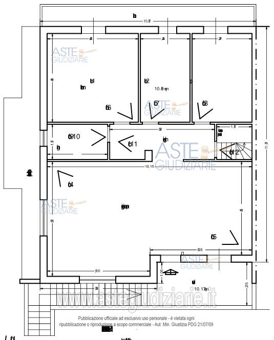
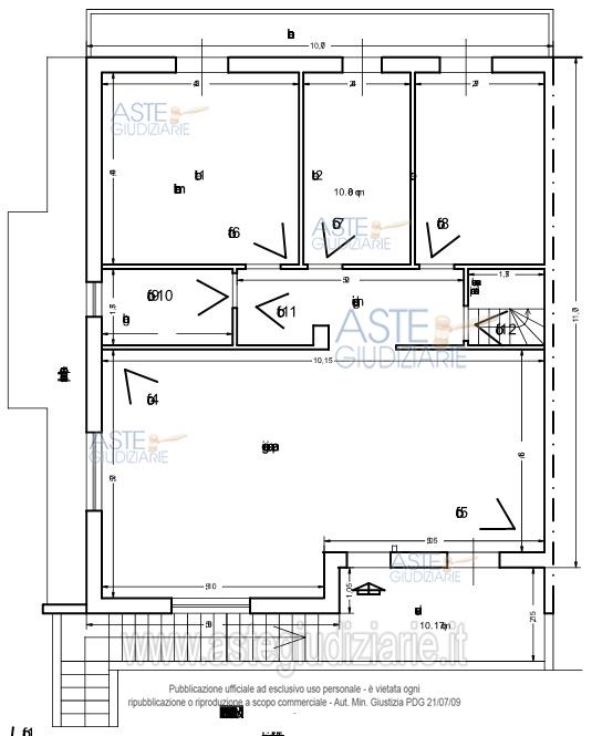
Unità residenziale si compone al piano primo di un ampio vano soggiorno-pranzo-cucina da cui si accede ad un corridoio disimpegno sul quale prospettano tre camere da letto, un bagno e la scala interna di accesso al piano attico dove si trova un vano pluriuso con angolo cottura, una lavanderia e un’ampia terrazza scoperta.

Indirizzo
Via Vanella 139, 63, 97015 Modica RG, Italia, Modica (RG)


Piano
-


Disponibilità
-


Vani
7,50


Bagni
2


Metri quadri
195,00


Certificazione energetica
-


Lastrico solare

Ampia terrazza sita al secondo piano

Indirizzo
Via Vanella 139, 63, 97015 Modica RG, Italia, Modica (RG)


Piano
-


Disponibilità
-


Vani
-


Bagni
-


Metri quadri
92,00


Certificazione energetica
-


Data udienza
02/12/2025 ore 16:00


Tipo di vendita
Senza incanto


Modalità di vendita
Sincrona mista


Luogo
Via Aldo Moro, 19, 97015 Modica RG, Italia - Modica 97015


Luogo presentazione offerte
-


Termine presentazione offerte
01/12/2025 ore 13:00


Prezzo base
€ 84.000,00


Offerta minima
€ 63.000,00


Rialzo minimo in caso di gara
€ 1.500,00


Deposito cauzionale
10% del prezzo offerto


Deposito in conto spese
-


Tribunale
Ragusa

Tipo di procedura
Espropriazione immobiliare (cartabia)

Ruolo
136/2024

Giudice
Di cataldo Carlo

Recapiti
-

Email
-

Delegato alla vendita
Poidomani Patrizia
(Procede alle operazioni di vendita)

Recapiti
-

Email
-

Custode giudiziario
Poidomani Patrizia
(Gestisce la visita del bene)

Recapiti
-

Scheda COD. 4327177 - Pubblicata dal 19/09/2025

La presente scheda di vendita riporta integralmente informazioni e documenti pervenuti ufficialmente dal Ministero e dal professionista incaricato.


Pubblicazione autorizzata dall’Autorità competente, è vietata ogni ripubblicazione o riproduzione anche parziale


Ti interessa questa vendita?

Documentazione

Visualizza su mappa

Mappa geografica del bene

Storico delle vendite

Data venditaPrezzo base
31/07/2025€ 112.000,00
02/12/2025€ 84.000,00

Punti di interesse

Fonte dati

Nel raggio di {{range}}Km

Loading...
  • {{ getIcon(poi.type) }} {{ poi.localized }}: {{poi.count}}
  • {{ getIcon(poi.type) }} {{ poi.localized }}: {{poi.count}}
Dati non disponibili