Astegiudiziarie.it è parte di Rete Aste Network

Accedi o registrati

Non sei ancora registrato?

Oppure

Accedi

Appartamento

Via Settembri/Via Pepe, Mazzarino (CL)

€ 33.564,37

Offerta minima € 25.173,28


Codice A347684

Lotto 1

Data udienza 23/06/2026 ore 15:30

Termine presentazione offerte 22/06/2026 ore 13:00

Appartamento

Via Settembri/Via Pepe, Mazzarino (CL)

€ 33.564,37

Offerta minima € 25.173,28


Codice A347684

Lotto 1

Data udienza 23/06/2026 ore 15:30

Termine presentazione offerte 22/06/2026 ore 13:00

Ti interessa questa vendita?

Documentazione

Visualizza su mappa

Mappa geografica del bene

Punti di interesse

Fonte dati

Nel raggio di {{range}}Km

Loading...
  • {{ getIcon(poi.type) }} {{ poi.localized }}: {{poi.count}}
  • {{ getIcon(poi.type) }} {{ poi.localized }}: {{poi.count}}
Dati non disponibili

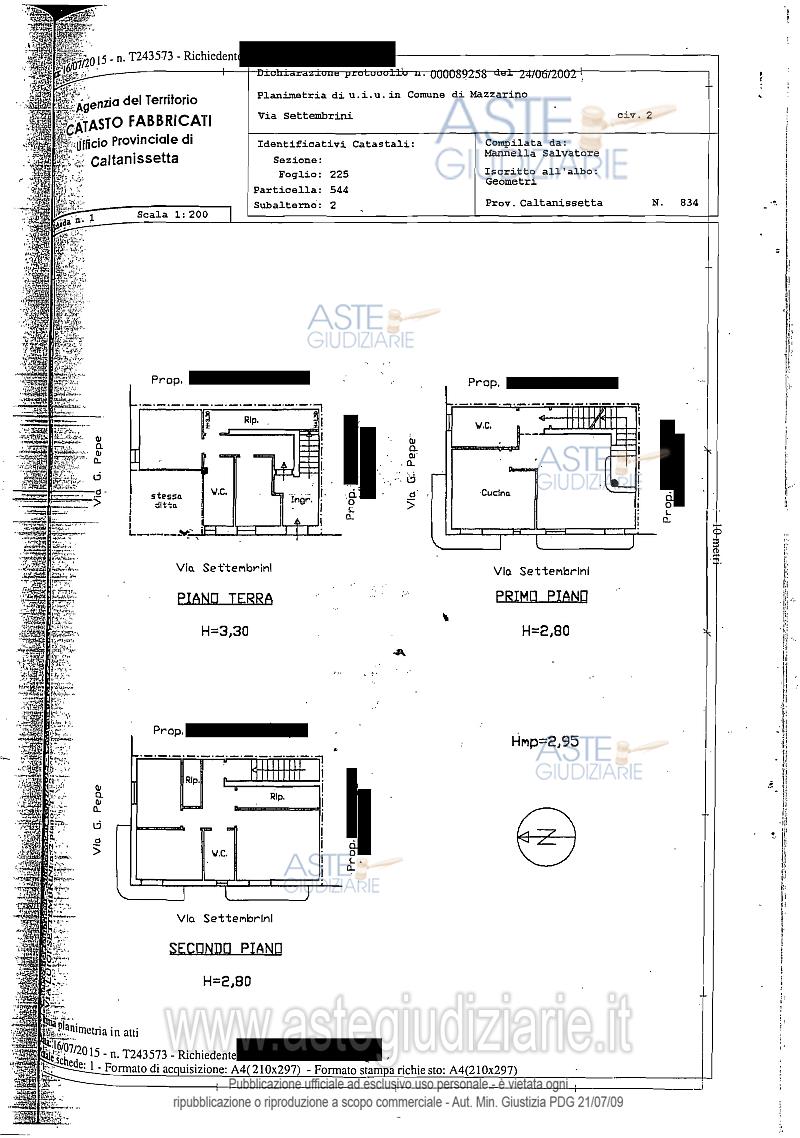
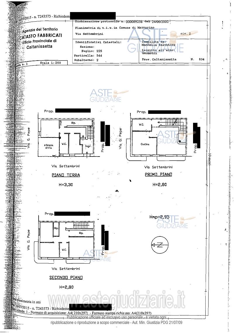
Appartamento costituito da piano terra, primo e secondo piano

Indirizzo
Via Settembri/Via Pepe, Mazzarino (CL)


Codice asta
347684


Lotto
1


Numero beni
1


Genere
Immobili


Categoria
Immobile residenziale


Valore di stima
-


Appartamento

Appartamento costituito da piano terra, primo e secondo piano

Indirizzo
Via Settembrini, n. 2/Via Pepe, n. 21, Mazzarino (CL)


Piano
-


Disponibilità
-


Vani
-


Bagni
-


Metri quadri
236,00


Certificazione energetica
-


Dati catastali

Foglio:225, Particella:554, Subalterno:1
Foglio:225, Particella:554, Subalterno:2


Data udienza
23/06/2026 ore 15:30


Tipo di vendita
Senza incanto


Modalità di vendita
Sincrona mista


Luogo
Piazza Umberto I, angolo via Battesimo - Gela 93012


Luogo presentazione offerte
-


Termine presentazione offerte
22/06/2026 ore 13:00


Prezzo base
€ 33.564,37


Offerta minima
€ 25.173,28


Rialzo minimo in caso di gara
€ 2.500,00


Deposito cauzionale
10% del prezzo offerto


Deposito in conto spese
-


Tribunale
Gela

Tipo di procedura
Esecuzione immobiliare post legge 80

Ruolo
47/2014

Delegato alla vendita
Maganuco Emanuele
(Procede alle operazioni di vendita)
(Gestisce la visita del bene)

Recapiti
Cell. 3478190922
Tel. 0933925892

Scheda COD. 347684 - Pubblicata dal 08/04/2026

La presente scheda di vendita riporta integralmente informazioni e documenti pervenuti ufficialmente dal Ministero e dal professionista incaricato.

Pubblicazione notarizzata su Blockchain


Pubblicazione autorizzata dall’Autorità competente, è vietata ogni ripubblicazione o riproduzione anche parziale


Ti interessa questa vendita?

Documentazione

Visualizza su mappa

Mappa geografica del bene

Storico delle vendite

Data venditaPrezzo base
21/09/2016€ 208.000,00
23/02/2017€ 156.000,00
13/09/2017€ 124.800,00
06/04/2018€ 106.080,00
14/01/2020€ 106.080,00
06/07/2022€ 79.560,00
14/12/2023€ 59.670,00
09/01/2026€ 44.752,50
23/06/2026€ 33.564,37

Punti di interesse

Fonte dati

Nel raggio di {{range}}Km

Loading...
  • {{ getIcon(poi.type) }} {{ poi.localized }}: {{poi.count}}
  • {{ getIcon(poi.type) }} {{ poi.localized }}: {{poi.count}}
Dati non disponibili