Astegiudiziarie.it è parte di Rete Aste Network

Accedi o registrati

Non sei ancora registrato?

Oppure

Accedi

Abitazione di tipo civile

Viale Brescia n. 45., Mazzano (BS)

€ 189.771,00

Offerta minima € 142.328,25


Codice A4341334

Lotto Lotto unico

Data udienza 06/05/2026 ore 12:00

Termine presentazione offerte 05/05/2026 ore 12:00

Abitazione di tipo civile

Viale Brescia n. 45., Mazzano (BS)

€ 189.771,00

Offerta minima € 142.328,25


Codice A4341334

Lotto Lotto unico

Data udienza 06/05/2026 ore 12:00

Termine presentazione offerte 05/05/2026 ore 12:00

Ti interessa questa vendita?

Documentazione

Visualizza su mappa

Mappa geografica del bene

Punti di interesse

Fonte dati

Nel raggio di {{range}}Km

Loading...
  • {{ getIcon(poi.type) }} {{ poi.localized }}: {{poi.count}}
  • {{ getIcon(poi.type) }} {{ poi.localized }}: {{poi.count}}
Dati non disponibili

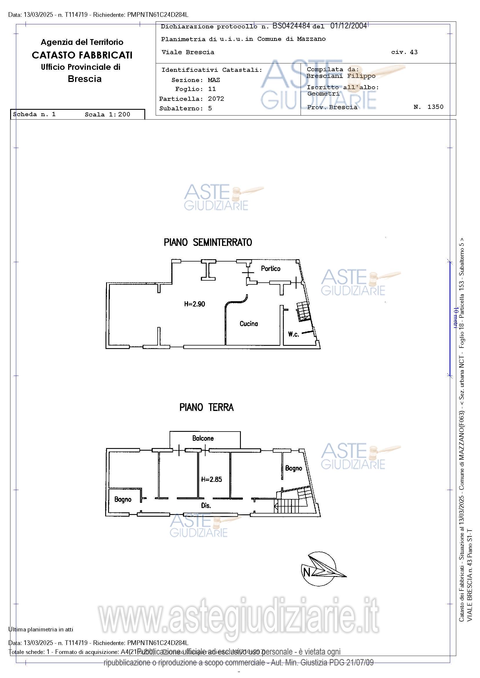
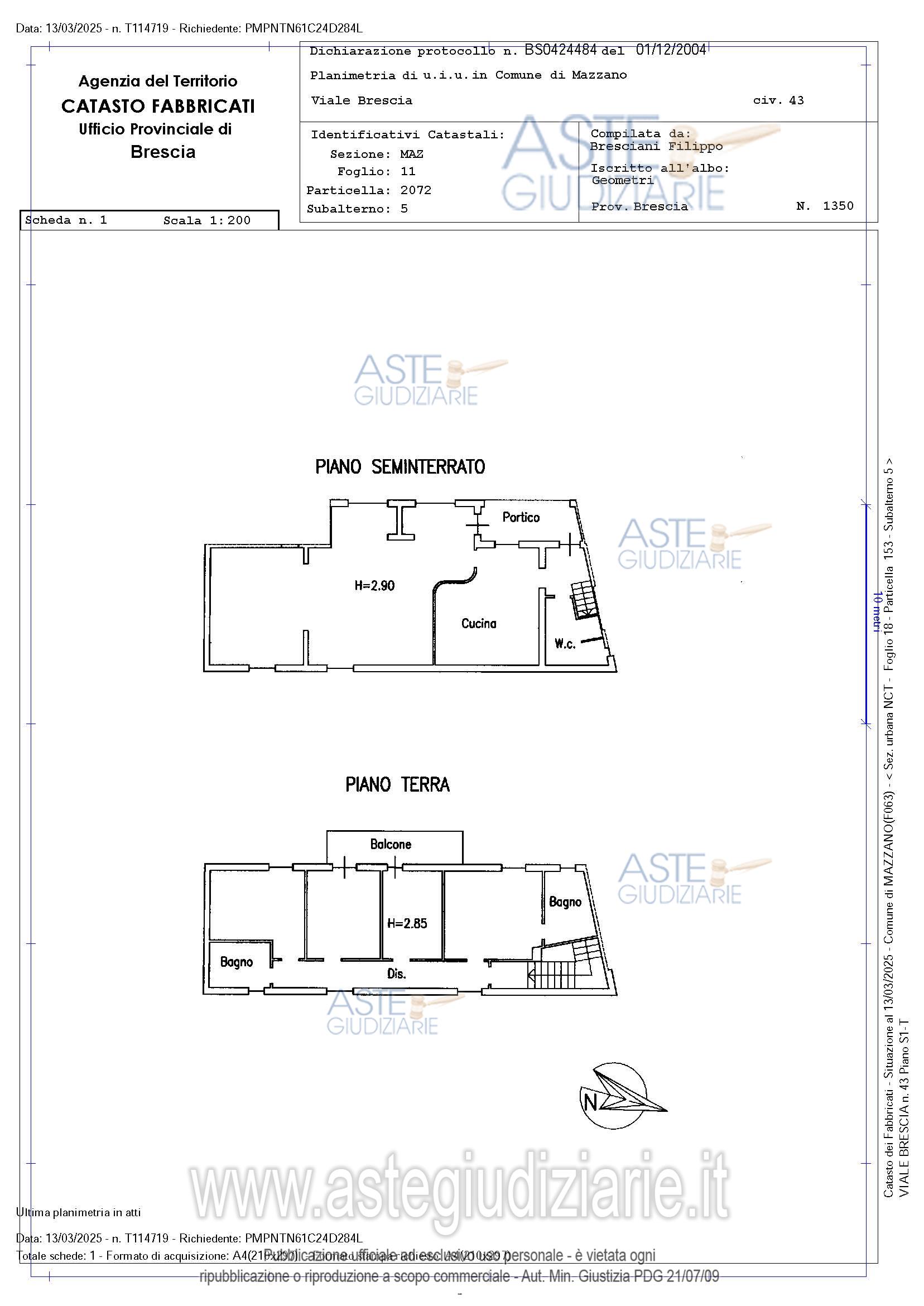
Piena proprietà di appartamento sviluppantesi ai piani terra/rialzato e seminterrato, dove risulta altresì ubicato il deposito staggito.

Indirizzo
Viale Brescia n. 45., Mazzano (BS)


Codice asta
4341334


Lotto
Lotto unico


Numero beni
1


Genere
Immobili


Categoria
Immobile residenziale


Valore di stima
-


Abitazione di tipo civile

Piena proprietà di appartamento sviluppantesi ai piani terra/rialzato e seminterrato, dove risulta altresì ubicato il deposito staggito.

Indirizzo
Viale Brescia n. 45., Mazzano (BS)


Piano
-


Disponibilità
-


Vani
-


Bagni
-


Metri quadri
-


Certificazione energetica
-


Data udienza
06/05/2026 ore 12:00


Tipo di vendita
Senza incanto


Modalità di vendita
Asincrona telematica


Luogo
N.A. -


Luogo presentazione offerte
-


Termine presentazione offerte
05/05/2026 ore 12:00


Prezzo base
€ 189.771,00


Offerta minima
€ 142.328,25


Rialzo minimo in caso di gara
€ 1.898,00


Deposito cauzionale
-


Deposito in conto spese
-


Tribunale
Brescia

Tipo di procedura
Espropriazione immobiliare (cartabia)

Ruolo
43/2025

Delegato alla vendita
Avrella Luciana
(Procede alle operazioni di vendita)

Recapiti
Tel. 030222849

Email
sportellopratiche@turellieavre...

Custode giudiziario
Avrella Luciana
(Gestisce la visita del bene)

Recapiti
-

Scheda COD. 4341334 - Pubblicata dal 23/03/2026

La presente scheda di vendita riporta integralmente informazioni e documenti pervenuti ufficialmente dal Ministero e dal professionista incaricato.


Pubblicazione autorizzata dall’Autorità competente, è vietata ogni ripubblicazione o riproduzione anche parziale


Ti interessa questa vendita?

Documentazione

Visualizza su mappa

Mappa geografica del bene

Storico delle vendite

Data venditaPrezzo base
29/01/2026€ 253.028,00
06/05/2026€ 189.771,00

Punti di interesse

Fonte dati

Nel raggio di {{range}}Km

Loading...
  • {{ getIcon(poi.type) }} {{ poi.localized }}: {{poi.count}}
  • {{ getIcon(poi.type) }} {{ poi.localized }}: {{poi.count}}
Dati non disponibili