Astegiudiziarie.it è parte di Rete Aste Network

Accedi o registrati

Non sei ancora registrato?

Oppure

Accedi

Abitazione di tipo civile

Via Roma n. 391, Martinsicuro (TE)

€ 71.100,00

Offerta minima € 71.100,00


Codice A4350530

Lotto 5

Data udienza 17/06/2026 ore 15:00

Termine presentazione offerte 16/06/2026 ore 23:59

Abitazione di tipo civile

Via Roma n. 391, Martinsicuro (TE)

€ 71.100,00

Offerta minima € 71.100,00


Codice A4350530

Lotto 5

Data udienza 17/06/2026 ore 15:00

Termine presentazione offerte 16/06/2026 ore 23:59

Ti interessa questa vendita?

Documentazione

Visualizza su mappa

Mappa geografica del bene

Punti di interesse

Fonte dati

Nel raggio di {{range}}Km

Loading...
  • {{ getIcon(poi.type) }} {{ poi.localized }}: {{poi.count}}
  • {{ getIcon(poi.type) }} {{ poi.localized }}: {{poi.count}}
Dati non disponibili

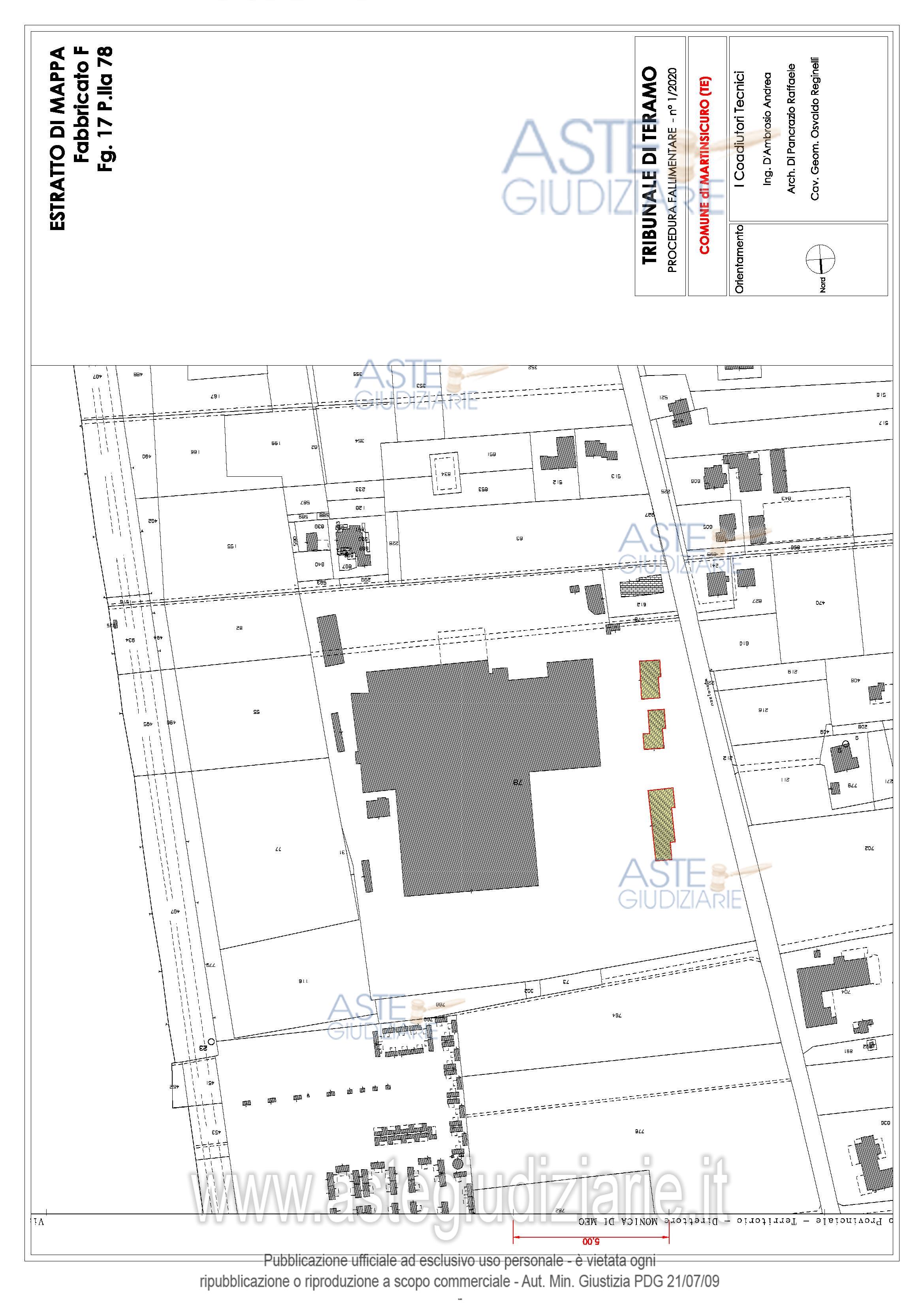
Appartamento posto al piano terra rialzato, oltre al locale uso fondaco posto al piano seminterrato e al garage al piano seminterrato comune anche ai lotti 6, 7 e 8.ubicato a Martinsicuro (TE) - Via Roma n. 391

Indirizzo
Via Roma n. 391, Martinsicuro (TE)


Codice asta
4350530


Lotto
5


Numero beni
1


Genere
Immobili


Categoria
Immobile residenziale


Valore di stima
-


Abitazione di tipo civile

Appartamento posto al piano terra rialzato, oltre al locale uso fondaco posto al piano seminterrato e al garage al piano seminterrato comune anche ai lotti 6, 7 e 8.ubicato a Martinsicuro (TE) - Via Roma n. 391L’unità immobiliare “abitazione” al piano terra rialzato suddivisa in: due ingressi, soggiorno/cucina, quattro camere di cui due con cabina armadio, due corridoi, due ripostigli e due bagni, mentre il locale fondaco al piano seminterrato ha accesso attraverso il garage costituito da unico locale comune anche ai lotti 6-7 e 8.Ai fini catastali i beni di cui al presente lotto fanno parte di un unico complesso distinto al Catasto Fabbricati del comune di Martinsicuro, Foglio 17 P.lla 78 Sub 1-2-3, pertanto da frazionarsi prima dell’emissione del decreto di trasferimento post asta/vendita in base all’”elaborato grafico suddivisione in lotti” (Lotto n. 5)

Indirizzo
Via Roma n. 391, Martinsicuro (TE)


Piano
-


Disponibilità
LIBERO


Vani
13,00


Bagni
2


Metri quadri
199,00


Certificazione energetica
-


Data udienza
17/06/2026 ore 15:00


Tipo di vendita
Senza incanto


Modalità di vendita
Asincrona telematica


Luogo
N.A. -


Luogo presentazione offerte
-


Termine presentazione offerte
16/06/2026 ore 23:59


Prezzo base
€ 71.100,00


Offerta minima
€ 71.100,00


Rialzo minimo in caso di gara
€ 2.000,00


Deposito cauzionale
10% del prezzo base


Deposito in conto spese
-


Tribunale
Teramo

Tipo di procedura
Fallimentare (nuovo rito)

Ruolo
1/2020

Curatore
Mancinelli Massimo
(Procede alle operazioni di vendita)

Recapiti
Cell.

Email
mancinelli@studiomancinelli.ne...

Custode giudiziario
Reginelli Osvaldo
(Gestisce la visita del bene)

Recapiti
Cell. 3398575170

Scheda COD. 4350530 - Pubblicata dal 27/04/2026

La presente scheda di vendita riporta integralmente informazioni e documenti pervenuti ufficialmente dal Ministero e dal professionista incaricato.

Pubblicazione notarizzata su Blockchain


Pubblicazione autorizzata dall’Autorità competente, è vietata ogni ripubblicazione o riproduzione anche parziale


Ti interessa questa vendita?

Documentazione

Visualizza su mappa

Mappa geografica del bene

Punti di interesse

Fonte dati

Nel raggio di {{range}}Km

Loading...
  • {{ getIcon(poi.type) }} {{ poi.localized }}: {{poi.count}}
  • {{ getIcon(poi.type) }} {{ poi.localized }}: {{poi.count}}
Dati non disponibili