Astegiudiziarie.it è parte di Rete Aste Network

Accedi o registrati

Non sei ancora registrato?

Oppure

Accedi

Abitazione di tipo civile

V. Orvietana, 9, 06055 Marsciano PG, Italia, Marsciano (PG)

€ 60.000,00

Offerta minima € 45.000,00


Codice A4341459

Lotto 3

Data udienza 06/03/2026 ore 09:00

Termine presentazione offerte 05/03/2026 ore 12:00

Abitazione di tipo civile

V. Orvietana, 9, 06055 Marsciano PG, Italia, Marsciano (PG)

€ 60.000,00

Offerta minima € 45.000,00


Codice A4341459

Lotto 3

Data udienza 06/03/2026 ore 09:00

Termine presentazione offerte 05/03/2026 ore 12:00

Ti interessa questa vendita?

Documentazione

Visualizza su mappa

Mappa geografica del bene

Punti di interesse

Fonte dati

Nel raggio di {{range}}Km

Loading...
  • {{ getIcon(poi.type) }} {{ poi.localized }}: {{poi.count}}
  • {{ getIcon(poi.type) }} {{ poi.localized }}: {{poi.count}}
Dati non disponibili

MARSCIANO (PG) VIA ORVIETANA N. 9 LOTTO 3

Indirizzo
V. Orvietana, 9, 06055 Marsciano PG, Italia, Marsciano (PG)


Codice asta
4341459


Lotto
3


Numero beni
1


Genere
Immobili


Categoria
Immobile residenziale


Valore di stima
-


Abitazione di tipo civile

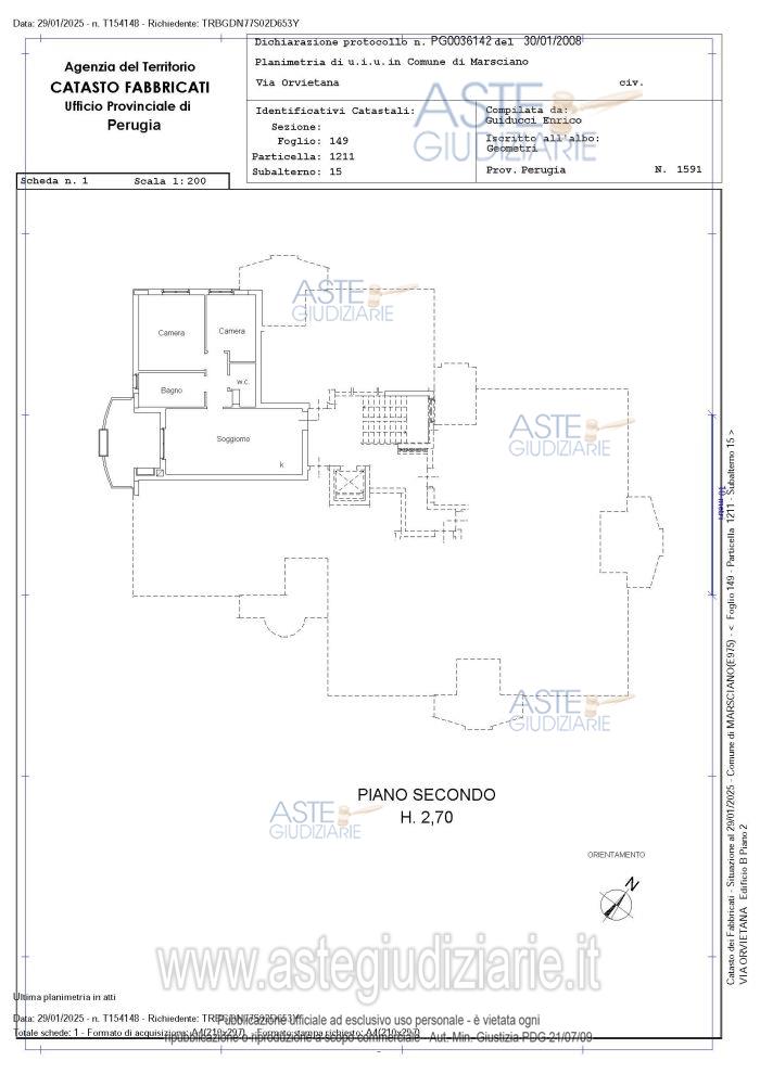
DIRITTI DI PIENA PROPRIETA' 1/1 su appartamento costituito da soggiorno con angolo cottura, 1 camera e 1 bagno oltre terrazzo si trova all’interno della palazzina al piano terzo ed è dotato di un portoncino blindato con pannello bugnato di colore marrone, sul lato esterno (condominio) ed un pannello liscio colore legno posto all’interno. Gli infissi sono in legno con vetro camera completi di cassonetto superiore e tapparella in pvc di colore bianco. Le porte interne sono realizzate in legno tamburato laminato legno a battente. Dall’ingresso si accede direttamente in un unico locale adibito a zona giorno, con angolo cottura e spazio tv. Opposto all’ingresso, una porta finestra, collega la zona giorno ad un terrazzo. Lo spazio esterno presenta un pavimento in grès porcellanato antiscivolo, di forma quadrata e montata in diagonale. Perimetralmente è posto in opera un battiscopa dello stesso materiale. La balaustra del terrazzo è composta da un muretto in cemento armato, sormontato da una ringhiera verniciata in tubolare di ferro. Nello stesso terrazzo vi è presente un piccolo vano in muratura chiuso da una porta bianca in alluminio, dove all’interno trova posto una caldaia a gas per il riscaldamento ed acqua calda sanitaria ed una presa d’acqua con lo scarico per una lavatrice. Il pavimento della zona giorno è realizzato con piastrelle in grès porcellanato e battiscopa abbinato dello stesso materiale mentre la camera da letto e la zona notte (ad esclusione dei bagni), è realizzata con listelli di legno colore scuro e relativo battiscopa abbinato dello stesso materiale. L’angolo cottura presenta un rivestimento delle pareti in mattonelle di piccolo formato di colore bianco, debitamente stuccate. Il bagno presenta un pavimento in mattonelle di grès porcellanato e rivestimenti alle pareti fino a due metri di altezza, realizzato sempre con piastrelle di grès porcellanato e decori lineari a delimitazione di cambi di colore delle mattonelle stesse., ed è composto da un lavabo, vaso e bidet a terra, un piatto doccia ed un termoarredo. Tutto l’appartamento sviluppa un’altezza di circa 2.70 m e si presenta tinteggiato ma in mediocre stato di manutenzione.Il garage ubicato nel piano sottostrada e sviluppa un’altezza di circa 2,50 m. È dotato di una porta basculante in metallo colore bianco con apertura e chiusura a mezzo chiave. All’interno le pareti, costituite da rivestimento in blocchi di cemento alleggerito, non sono intonacate. Il soffitto è lasciato al grezzo ed è costituito da pannelli prefabbricati in cemento. Il pavimento è del tipo industriale in battuto di cemento come il resto delle corsie dei garage. Si presenta in buono stato di conservazione.Stato di occupazione: L’immobile è libero, come da relazione IVG maggio 2025.PROFESSIONISTA DELEGATO ALLA VENDITA: AVV. MASSIMO SABATINI (Tel. 0743 48853).GIUDICE ESECUZIONE: DOTT. ALBERTO CAPPELLINICUSTODE GIUDIZIARIO: ISTITUTO VENDITE GIUDIZIARIE PERUGIA (075 5913525 - 0743 45107).LOTTO 3

Indirizzo
V. Orvietana, 9, 06055 Marsciano PG, Italia, Marsciano (PG)


Piano
-


Disponibilità
-


Vani
3,00


Bagni
-


Metri quadri
60,00


Certificazione energetica
-


Dati catastali

Foglio:149, Sezione:CF, Particella:1211, Subalterno:20
Foglio:149, Sezione:CF, Particella:1211, Subalterno:35


Data udienza
06/03/2026 ore 09:00


Tipo di vendita
Senza incanto


Modalità di vendita
Sincrona mista


Luogo
Via XXV Aprile, 52, 06049 Spoleto PG, Italia - Spoleto 06049


Luogo presentazione offerte
-


Termine presentazione offerte
05/03/2026 ore 12:00


Prezzo base
€ 60.000,00


Offerta minima
€ 45.000,00


Rialzo minimo in caso di gara
€ 600,00


Deposito cauzionale
10% del prezzo offerto


Deposito in conto spese
-


Tribunale
Spoleto

Tipo di procedura
Espropriazione immobiliare (cartabia)

Ruolo
111/2024

Giudice
Cappellini Alberto

Recapiti
-

Email
-

Delegato alla vendita
Sabatini Massimo
(Procede alle operazioni di vendita)

Recapiti
Tel. 074348853

Email
info@avvocatosabatini.it

Custode giudiziario
Perugia Ivg
(Gestisce la visita del bene)

Recapiti
Tel. 0755913525

Scheda COD. 4341459 - Pubblicata dal 17/12/2025

La presente scheda di vendita riporta integralmente informazioni e documenti pervenuti ufficialmente dal Ministero e dal professionista incaricato.


Pubblicazione autorizzata dall’Autorità competente, è vietata ogni ripubblicazione o riproduzione anche parziale


Ti interessa questa vendita?

Documentazione

Visualizza su mappa

Mappa geografica del bene

Punti di interesse

Fonte dati

Nel raggio di {{range}}Km

Loading...
  • {{ getIcon(poi.type) }} {{ poi.localized }}: {{poi.count}}
  • {{ getIcon(poi.type) }} {{ poi.localized }}: {{poi.count}}
Dati non disponibili