Astegiudiziarie.it è parte di Rete Aste Network

Accedi o registrati

Non sei ancora registrato?

Oppure

Accedi

Abitazione di tipo civile

V. Orvietana, 9, 06055 Marsciano PG, Italia, Marsciano (PG)

€ 80.000,00

Offerta minima € 60.000,00


Codice A4341457

Lotto 1

Data udienza 06/03/2026 ore 09:00

Termine presentazione offerte 05/03/2026 ore 12:00

Abitazione di tipo civile

V. Orvietana, 9, 06055 Marsciano PG, Italia, Marsciano (PG)

€ 80.000,00

Offerta minima € 60.000,00


Codice A4341457

Lotto 1

Data udienza 06/03/2026 ore 09:00

Termine presentazione offerte 05/03/2026 ore 12:00

Ti interessa questa vendita?

Documentazione

Visualizza su mappa

Mappa geografica del bene

Punti di interesse

Fonte dati

Nel raggio di {{range}}Km

Loading...
  • {{ getIcon(poi.type) }} {{ poi.localized }}: {{poi.count}}
  • {{ getIcon(poi.type) }} {{ poi.localized }}: {{poi.count}}
Dati non disponibili

MARSCIANO (PG) VIA ORVIETANA N. 9 LOTTO 1

Indirizzo
V. Orvietana, 9, 06055 Marsciano PG, Italia, Marsciano (PG)


Codice asta
4341457


Lotto
1


Numero beni
1


Genere
Immobili


Categoria
Immobile residenziale


Valore di stima
-


Abitazione di tipo civile

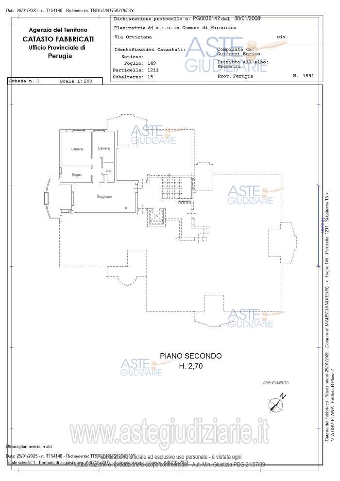
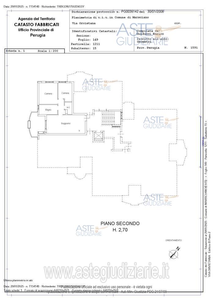
DIRITTI DI PIENA PROPRIETA' 1/1 L’appartamento, attualmente locato, costituito da soggiorno pranzo con angolo cottura, 2 camere, 2 bagni oltre terrazzo è sito al piano secondo ed è dotato di un portoncino blindato con pannello bugnato di colore marrone, sul lato esterno (condominio) ed un pannello liscio “colore finto legno” posto all’interno. Gli infissi sono in legno con vetro camera completi di cassonetto superiore e tapparella in pvc di colore bianco. Le porte interne sono realizzate in legno tamburato laminato a battente, ad esclusione della porta del bagno di servizio che è del tipo scorrevole a scrigno, eventi le stesse caratteristiche costruttive delle altre. Dall’ingresso si accede direttamente in un unico locale adibito a zona giorno, con cucina e divano/tv. Opposto all’ingresso, una porta finestra, collega la zona giorno ad un terrazzo. Lo spazio esterno presenta un pavimento in grès porcellanato antiscivolo, di forma quadrata e montata in diagonale. Perimetralmente è posto in opera un battiscopa dello stesso materiale. La balaustra del terrazzo è composta da un muretto in cemento armato, sormontato da una ringhiera verniciata in tubolare di ferro. Nello stesso terrazzo vi è presente un piccolo vano in muratura chiuso da una porta bianca in alluminio, dove all’interno trova posto una caldaia a gas per il riscaldamento ed acqua calda sanitaria ed una presa d’acqua con lo scarico per una lavatrice. Il pavimento della zona giorno è realizzato con piastrelle quadrate in grès porcellanato montate in diagonale e battiscopa perimetrale dello stesso materiale. La zona cucina presenta la parete di servizio, piastrellata con mattonelle “finto mosaico”, debitamente stuccate. La pavimentazione della zona notte (due camere), è in parquet di rovere a listelli di modeste dimensioni, trattate in superficie. Sul perimetro delle camere vi è un battiscopa in laminato di legno stesso colore del pavimento. I bagni presentano un pavimento in mattonelle di grès porcellanato e rivestimenti alle pareti fino a due metri di altezza, realizzati sempre con piastrelle di grès porcellanato e decori lineari a delimitazione di cambi di colore delle mattonelle stesse. Il bagno principale è composto da mobile lavabo, vaso e bidet a terra, una vasca da bagno ed un termoarredo. Il bagno di servizio, presenta un lavabo, un vaso e bidet del tipo sospeso ed un piatto doccia. Il riscaldamento è garantito da un piccolo termosifone ad elementi di alluminio. Tutto l’appartamento sviluppa un’altezza di circa 2.70 m e si presentava al momento della perizia tinteggiato ed in buono stato di conservazione.Il garage ubicato nel piano sottostrada, sviluppa un’altezza di circa 2,50 m. È dotato di una porta basculante in metallo colore bianco con apertura e chiusura a mezzo chiave e le pareti interne, costituite da rivestimento in blocchi di cemento alleggerito, non sono intonacate. Il soffitto è lasciato al grezzo ed è costituito da pannelli prefabbricati in cemento. Il pavimento è del tipo industriale in battuto di cemento come il resto delle corsie dei garage. Si presenta in buono stato di conservazione.Stato di occupazione: L’immobile è locato con contratto registrato in data 17/12/2024, successivo alla trascrizione del pignoramento del 10/10/2024, non opponibile alla procedura.PROFESSIONISTA DELEGATO ALLA VENDITA: AVV. MASSIMO SABATINI (Tel. 0743 48853).GIUDICE ESECUZIONE: DOTT. ALBERTO CAPPELLINICUSTODE GIUDIZIARIO: ISTITUTO VENDITE GIUDIZIARIE PERUGIA (075 5913525 - 0743 45107).LOTTO 1

Indirizzo
V. Orvietana, 9, 06055 Marsciano PG, Italia, Marsciano (PG)


Piano
-


Disponibilità
-


Vani
4,00


Bagni
-


Metri quadri
80,00


Certificazione energetica
-


Dati catastali

Foglio:149, Sezione:CF, Particella:1211, Subalterno:15
Foglio:149, Sezione:CF, Particella:1211, Subalterno:34


Data udienza
06/03/2026 ore 09:00


Tipo di vendita
Senza incanto


Modalità di vendita
Sincrona mista


Luogo
Via XXV Aprile, 52, 06049 Spoleto PG, Italia - Spoleto 06049


Luogo presentazione offerte
-


Termine presentazione offerte
05/03/2026 ore 12:00


Prezzo base
€ 80.000,00


Offerta minima
€ 60.000,00


Rialzo minimo in caso di gara
€ 800,00


Deposito cauzionale
10% del prezzo offerto


Deposito in conto spese
-


Tribunale
Spoleto

Tipo di procedura
Espropriazione immobiliare (cartabia)

Ruolo
111/2024

Giudice
Cappellini Alberto

Recapiti
-

Email
-

Delegato alla vendita
Sabatini Massimo
(Procede alle operazioni di vendita)

Recapiti
Tel. 074348853

Email
info@avvocatosabatini.it

Custode giudiziario
Perugia Ivg
(Gestisce la visita del bene)

Recapiti
Tel. 0755913525

Scheda COD. 4341457 - Pubblicata dal 17/12/2025

La presente scheda di vendita riporta integralmente informazioni e documenti pervenuti ufficialmente dal Ministero e dal professionista incaricato.


Pubblicazione autorizzata dall’Autorità competente, è vietata ogni ripubblicazione o riproduzione anche parziale


Ti interessa questa vendita?

Documentazione

Visualizza su mappa

Mappa geografica del bene

Punti di interesse

Fonte dati

Nel raggio di {{range}}Km

Loading...
  • {{ getIcon(poi.type) }} {{ poi.localized }}: {{poi.count}}
  • {{ getIcon(poi.type) }} {{ poi.localized }}: {{poi.count}}
Dati non disponibili