Astegiudiziarie.it è parte di Rete Aste Network

Accedi o registrati

Non sei ancora registrato?

Oppure

Accedi

Abitazione di tipo civile

LOC. SAN BIAGIO DELLA VALLE, Marsciano (PG)

€ 51.000,00

Offerta minima € 38.000,00


Codice A4311077

Lotto 2

Data udienza 26/06/2026 ore 10:00

Termine presentazione offerte 25/06/2026 ore 12:00

Abitazione di tipo civile

LOC. SAN BIAGIO DELLA VALLE, Marsciano (PG)

€ 51.000,00

Offerta minima € 38.000,00


Codice A4311077

Lotto 2

Data udienza 26/06/2026 ore 10:00

Termine presentazione offerte 25/06/2026 ore 12:00

Ti interessa questa vendita?

Documentazione

Visualizza su mappa

Mappa geografica del bene

Punti di interesse

Fonte dati

Nel raggio di {{range}}Km

Loading...
  • {{ getIcon(poi.type) }} {{ poi.localized }}: {{poi.count}}
  • {{ getIcon(poi.type) }} {{ poi.localized }}: {{poi.count}}
Dati non disponibili

MARSCIANO (PG) LOC. SAN BIAGIO DELLA VALLE LOTTO 2

Indirizzo
LOC. SAN BIAGIO DELLA VALLE, Marsciano (PG)


Codice asta
4311077


Lotto
2


Numero beni
1


Genere
Immobili


Categoria
Immobile residenziale


Valore di stima
-


Abitazione di tipo civile

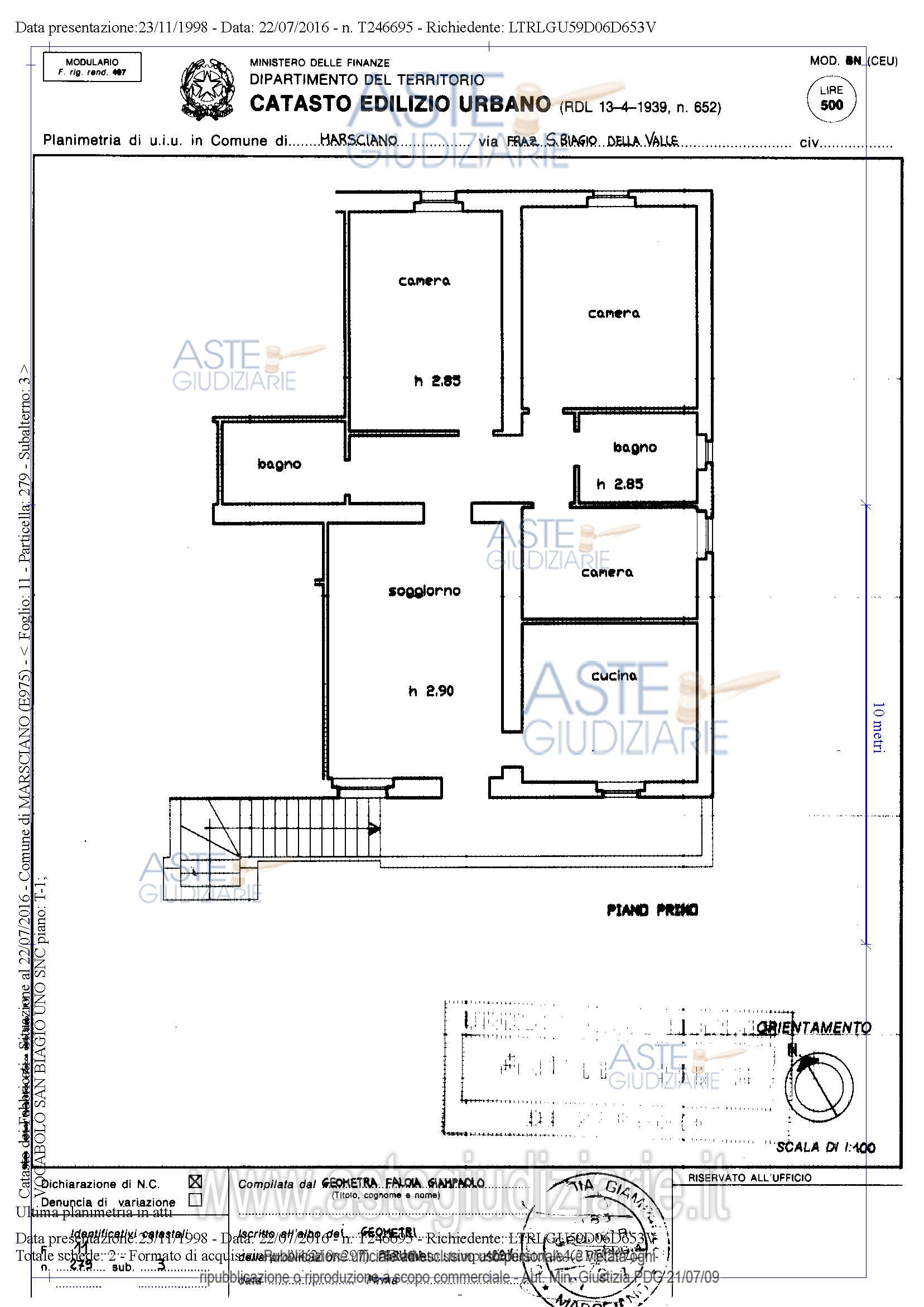
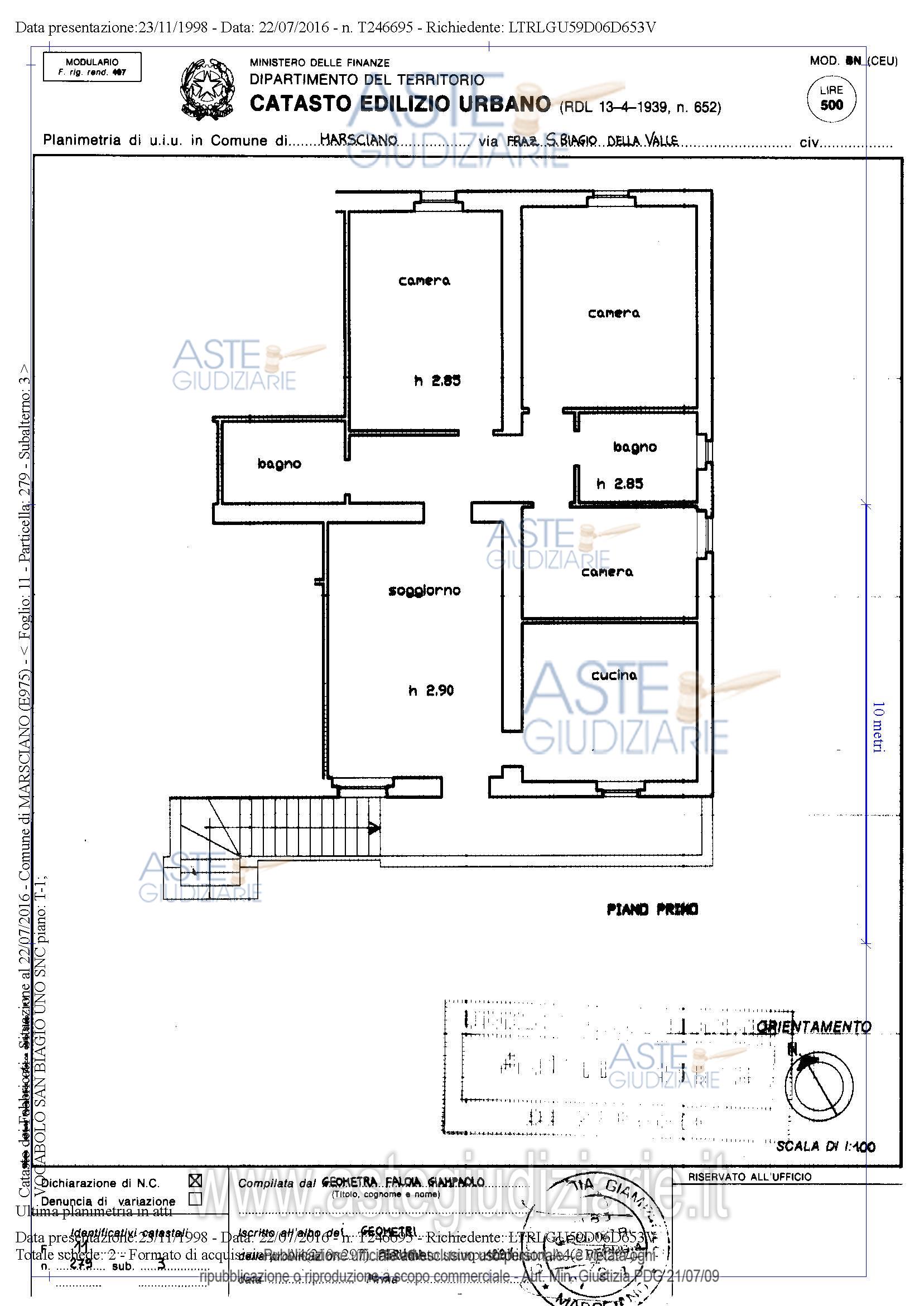
Diritti di piena proprietà su fabbricato costituito da due abitazioni poste al piano terra e primo, ma catastalmente identificate come unica unità immobiliare, distinta al foglio 11 particella n. 279 sub 3 con accesso dall’antistante corte al piano terra identificata al medesimo foglio con la particella 275 sub 1 come bene comune non censibile. L’abitazione al piano terra è costituita da soggiorno, cucina, disimpegno, bagno, due camere da letto, sottoscala e portico; l’abitazione al piano prima è costituita da scala di accesso, cucina, soggiorno, tre camere da letto, due bagni, disimpegno. Il fabbricato si sviluppa in complessivi mq 200 circa (100 mq ogni abitazione). Fabbricato ad uso ex stalla - pollaio con antistante corte (foglio 11 particella n. 275 sub 1) identificato al catasto fabbricati al foglio 11 particella n. 275 sub 2. L’accesso al lotto è costituito dalla particella n. 1026 del foglio 11 derivante dalla particella 933 della superficie di mq 2749, che pertanto dovrà essere considerata come un bene comune al lotto n. 1, n. 2 e n. 3 come meglio precisato in perizia. L’immobile risulta occupato.PROFESSIONISTA DELEGATO ALLA VENDITA: AVV. LUCIA CRETONI (Tel. 0743 260728).GIUDICE ESECUZIONE: DOTT. ALBERTO CAPPELLINICUSTODE GIUDIZIARIO: ISTITUTO VENDITE GIUDIZIARIE PERUGIA (075 5913525 - 0743 45107)LOTTO 2

Indirizzo
LOC. SAN BIAGIO DELLA VALLE, Marsciano (PG)


Piano
-


Disponibilità
-


Vani
10,00


Bagni
-


Metri quadri
200,00


Certificazione energetica
-


Dati catastali

Foglio:11, Sezione:CF, Particella:279, Subalterno:3
Foglio:11, Sezione:CF, Particella:275, Subalterno:1, Subalterno 2:2


Data udienza
26/06/2026 ore 10:00


Tipo di vendita
Senza incanto


Modalità di vendita
Sincrona mista


Luogo
Via XXV Aprile, 52, 06049 Spoleto PG, Italia - Spoleto 06049


Luogo presentazione offerte
-


Termine presentazione offerte
25/06/2026 ore 12:00


Prezzo base
€ 51.000,00


Offerta minima
€ 38.000,00


Rialzo minimo in caso di gara
€ 500,00


Deposito cauzionale
-


Deposito in conto spese
-


Tribunale
Spoleto

Tipo di procedura
Esecuzione immobiliare post legge 80

Ruolo
59/2014

Giudice
Cappellini Alberto

Recapiti
-

Email
-

Delegato alla vendita
Cretoni Lucia
(Procede alle operazioni di vendita)

Recapiti
Tel. 0743260728

Email
lucia.cretoni@gmail.com

Custode giudiziario
Perugia Ivg
(Gestisce la visita del bene)

Recapiti
Tel. 0755913525

Scheda COD. 4311077 - Pubblicata dal 24/04/2026

La presente scheda di vendita riporta integralmente informazioni e documenti pervenuti ufficialmente dal Ministero e dal professionista incaricato.

Pubblicazione notarizzata su Blockchain


Pubblicazione autorizzata dall’Autorità competente, è vietata ogni ripubblicazione o riproduzione anche parziale


Ti interessa questa vendita?

Documentazione

Visualizza su mappa

Mappa geografica del bene

Storico delle vendite

Data venditaPrezzo base
19/11/2024€ 89.000,00
19/06/2025€ 71.000,00
11/12/2025€ 60.000,00
26/06/2026€ 51.000,00

Punti di interesse

Fonte dati

Nel raggio di {{range}}Km

Loading...
  • {{ getIcon(poi.type) }} {{ poi.localized }}: {{poi.count}}
  • {{ getIcon(poi.type) }} {{ poi.localized }}: {{poi.count}}
Dati non disponibili