Astegiudiziarie.it è parte di Rete Aste Network

Accedi o registrati

Non sei ancora registrato?

Oppure

Accedi

Abitazione di tipo civile

C/Da Rakalia 272, Marsala (TP)

€ 81.500,00

Offerta minima € 61.125,00


Codice A4350566

Lotto Lotto unico

Data udienza 15/07/2026 ore 16:30

Termine presentazione offerte 14/07/2026 ore 23:59

Abitazione di tipo civile

C/Da Rakalia 272, Marsala (TP)

€ 81.500,00

Offerta minima € 61.125,00


Codice A4350566

Lotto Lotto unico

Data udienza 15/07/2026 ore 16:30

Termine presentazione offerte 14/07/2026 ore 23:59

Ti interessa questa vendita?

Documentazione

Visualizza su mappa

Mappa geografica del bene

Punti di interesse

Fonte dati

Nel raggio di {{range}}Km

Loading...
  • {{ getIcon(poi.type) }} {{ poi.localized }}: {{poi.count}}
  • {{ getIcon(poi.type) }} {{ poi.localized }}: {{poi.count}}
Dati non disponibili

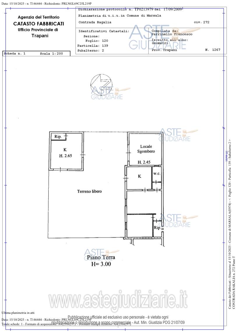
Fabbricato civile abitazione in Marsala (TP) c/da Rakalia n 272, composto da due abitazioni ed un locale sgombero, sviluppato su un unico piano fuori terra (piano terra) insistente su lotto di terreno di complessivi 825 mq circa (superficie catastale), comprensivo dell’area di sedime.L’immobile risulta censito presso il N.C.E.U. del Comune di Marsala al foglio di mappa n.120, particella n.139, subalterni 1 e 2, nonché presso il N.C.T. del medesimo Comune al foglio di mappa n.120, particella n.139.

Indirizzo
C/Da Rakalia 272, Marsala (TP)


Codice asta
4350566


Lotto
Lotto unico


Numero beni
1


Genere
Immobili


Categoria
Immobile residenziale


Valore di stima
-


Abitazione di tipo civile

Proprietà piena (1/1) di un Fabbricato per civile abitazione sito in Marsala (TP) - contrada Rakalia n 272, composto da due abitazioni ed un locale sgombero, sviluppato su un unico piano fuori terra (piano terra) insistente su lotto di terreno di complessivi 825 mq circa (superficie catastale), comprensivo dell’area di sedime.L’immobile risulta censito presso il N.C.E.U. del Comune di Marsala al foglio di mappa n.120, particella n.139, subalterni 1 e 2, nonché presso il N.C.T. del medesimo Comune al foglio di mappa n.120, particella n.139.

Indirizzo
C/Da Rakalia 272, Marsala (TP)


Piano
-


Disponibilità
OCCUPATO


Vani
-


Bagni
-


Metri quadri
825,00


Certificazione energetica
-


Dati catastali

Foglio:120, Particella:139, Subalterno:1, Subalterno 2:2


Data udienza
15/07/2026 ore 16:30


Tipo di vendita
Senza incanto


Modalità di vendita
Asincrona telematica


Luogo
N.A. -


Luogo presentazione offerte
-


Termine presentazione offerte
14/07/2026 ore 23:59


Prezzo base
€ 81.500,00


Offerta minima
€ 61.125,00


Rialzo minimo in caso di gara
€ 2.000,00


Deposito cauzionale
20% del prezzo offerto


Deposito in conto spese
-


Tribunale
Marsala

Tipo di procedura
Espropriazione immobiliare (cartabia)

Ruolo
94/2025

Giudice
Giardina Francesco

Recapiti
-

Email
-

Delegato alla vendita
Carini Francesco
(Procede alle operazioni di vendita)

Recapiti
Cell. 3286192565
Tel. 0923716293

Email
carini.francesco@ymail.com

Custode giudiziario
Carini Francesco
(Gestisce la visita del bene)

Recapiti
Cell. 3286192565
Tel. 0923716293

Scheda COD. 4350566 - Pubblicata dal 29/04/2026

La presente scheda di vendita riporta integralmente informazioni e documenti pervenuti ufficialmente dal Ministero e dal professionista incaricato.


Pubblicazione autorizzata dall’Autorità competente, è vietata ogni ripubblicazione o riproduzione anche parziale


Ti interessa questa vendita?

Documentazione

Visualizza su mappa

Mappa geografica del bene

Punti di interesse

Fonte dati

Nel raggio di {{range}}Km

Loading...
  • {{ getIcon(poi.type) }} {{ poi.localized }}: {{poi.count}}
  • {{ getIcon(poi.type) }} {{ poi.localized }}: {{poi.count}}
Dati non disponibili