Astegiudiziarie.it è parte di Rete Aste Network

Accedi o registrati

Non sei ancora registrato?

Oppure

Accedi

Abitazione di tipo economico, garage o autorimessa

Via Savio, 4, 46045 Marmirolo MN, Italia, Marmirolo (MN)

€ 174.250,00

Offerta minima € 130.688,00


Codice A4348898

Lotto Lotto unico

Data udienza 08/06/2026 ore 16:00

Termine presentazione offerte 03/06/2026 ore 12:00

Abitazione di tipo economico, garage o autorimessa

Via Savio, 4, 46045 Marmirolo MN, Italia, Marmirolo (MN)

€ 174.250,00

Offerta minima € 130.688,00


Codice A4348898

Lotto Lotto unico

Data udienza 08/06/2026 ore 16:00

Termine presentazione offerte 03/06/2026 ore 12:00

Ti interessa questa vendita?

Documentazione

Visualizza su mappa

Mappa geografica del bene

Punti di interesse

Fonte dati

Nel raggio di {{range}}Km

Loading...
  • {{ getIcon(poi.type) }} {{ poi.localized }}: {{poi.count}}
  • {{ getIcon(poi.type) }} {{ poi.localized }}: {{poi.count}}
Dati non disponibili

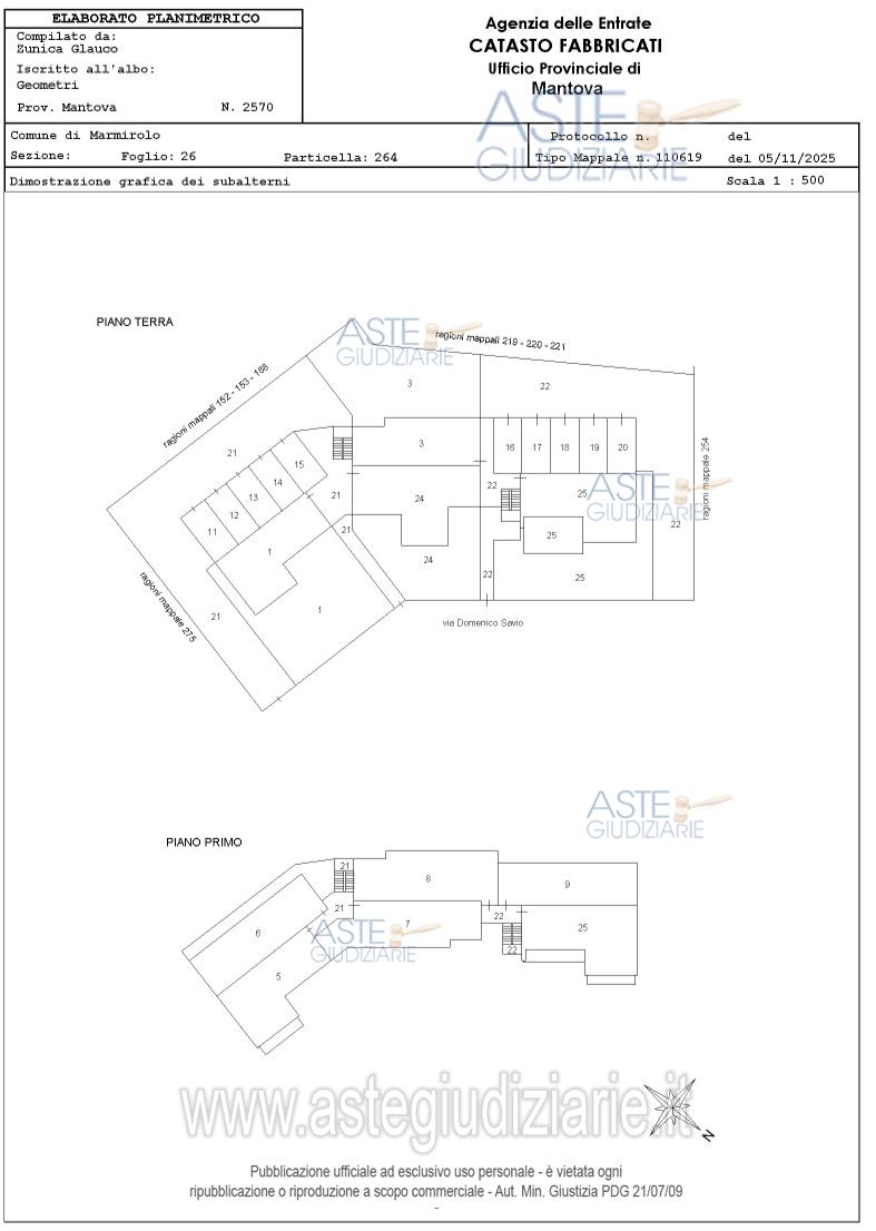
Piena proprietà di unità immobiliare a destinazione residenziale "A/3" che si sviluppa ai piani terra e primo ed è composta al piano terra da soggiorno con angolo cucina, disimpegno, camera, sala lettura, bagno e porticato, al piano primo da disimpegno, due camere, cabina armadio, soggiorno, bagno e due terrazze. I due piani sono collegati da piattaforma elevatrice interna all'unità immobiliare e sono accessibili da scala comune anche ad altre proprietà.completano il lotto due autorimesse

Indirizzo
Via Savio, 4, 46045 Marmirolo MN, Italia, Marmirolo (MN)


Codice asta
4348898


Lotto
Lotto unico


Numero beni
3


Genere
Immobili


Categoria
Immobile residenziale


Valore di stima
-


Abitazione di tipo economico

appartemento che si sviluppa ai piani terra e primo ed è composto al piano terra da soggiorno con angolo cucina, disimpegno, camera, sala lettura, bagno e porticato, al piano primo da disimpegno, due camere, cabina armadio, soggiorno, bagno e due terrazze. I due piani sono collegati da piattaforma elevatrice interna all'unità immobiliare; inoltre i due piani dell'abitazione sono accessibili da scala comune anche ad altre proprietà, attraverso due ingressi uno posto al piano terra e uno posto al primo piano, quest'ultimo attualmente tamponato.La vendita del bene non è soggetta IVA.

Indirizzo
Via Savio, 4, 46045 Marmirolo MN, Italia, Marmirolo (MN)


Piano
T1


Disponibilità
OCCUPATO


Vani
9,00


Bagni
-


Metri quadri
189,00


Certificazione energetica
-


Dati catastali

Foglio:26, Sezione:fabbricati, Particella:264, Subalterno:25


Garage o autorimessa

Piena proprietà di unità immobiliare a destinazione autorimessa "C/6" sita nel Comune di Marmirolo (MN) - via San Domenico Savio c.m., identificata catastalmete al fg. 26 mapp.le 264 sub. 19.L'unità immobiliare si sviluppa al piano terra con accesso da "area di manovra comune" ed è formata da un unico ambiente collegato all'appartamento tramite porta interna.

Indirizzo
Via Savio, 4, 46045 Marmirolo MN, Italia, Marmirolo (MN)


Piano
t


Disponibilità
OCCUPATO


Vani
1,00


Bagni
-


Metri quadri
19,00


Certificazione energetica
-


Dati catastali

Foglio:26, Sezione:fabbricati, Particella:264, Subalterno:19


Garage o autorimessa

Piena proprietà di unità immobiliare a destinazione autorimessa "C/6" sita nel Comune di Marmirolo(MN) - via San Domenico Savio c.m., identificata catastalmete al fg. 26 mapp.le 264 sub. 20. L'unità immobiliare si sviluppa al piano terra con accesso da "area di manovra comune" ed è formata da un unico ambiente.

Indirizzo
Via Savio, 4, 46045 Marmirolo MN, Italia, Marmirolo (MN)


Piano
T


Disponibilità
OCCUPATO


Vani
1,00


Bagni
-


Metri quadri
21,00


Certificazione energetica
-


Dati catastali

Foglio:26, Sezione:FABBRICATI, Particella:264, Subalterno:20


Data udienza
08/06/2026 ore 16:00


Tipo di vendita
Senza incanto


Modalità di vendita
Sincrona mista


Luogo
Via Iº Maggio, 3, 46030 Mottella MN, Italia - San Giorgio Bigarello 46051


Luogo presentazione offerte
-


Termine presentazione offerte
03/06/2026 ore 12:00


Prezzo base
€ 174.250,00


Offerta minima
€ 130.688,00


Rialzo minimo in caso di gara
€ 3.000,00


Deposito cauzionale
10% del prezzo offerto


Deposito in conto spese
-


Tribunale
Mantova

Tipo di procedura
Espropriazione immobiliare (cartabia)

Ruolo
27/2025

Delegato alla vendita
Amadei Elena
(Procede alle operazioni di vendita)

Recapiti
Cell. 3477940144
Tel. 0376220460

Email
AVV.AMADEI@GMAIL.COM

Custode giudiziario
Sovemo Ivg di mantova
(Gestisce la visita del bene)

Recapiti
Tel. 0376220694

Scheda COD. 4348898 - Pubblicata dal 08/04/2026

La presente scheda di vendita riporta integralmente informazioni e documenti pervenuti ufficialmente dal Ministero e dal professionista incaricato.


Pubblicazione autorizzata dall’Autorità competente, è vietata ogni ripubblicazione o riproduzione anche parziale


Ti interessa questa vendita?

Documentazione

Visualizza su mappa

Mappa geografica del bene

Punti di interesse

Fonte dati

Nel raggio di {{range}}Km

Loading...
  • {{ getIcon(poi.type) }} {{ poi.localized }}: {{poi.count}}
  • {{ getIcon(poi.type) }} {{ poi.localized }}: {{poi.count}}
Dati non disponibili