Astegiudiziarie.it è parte di Rete Aste Network

Accedi o registrati

Non sei ancora registrato?

Oppure

Accedi

Abitazione di tipo signorile, abitazione di tipo popolare

via Guglielmo Marconi, Mapello (BG)

€ 2.683.653,00

Offerta minima € 2.012.740,00


Codice A4319521

Lotto Lotto unico

Data udienza 14/01/2026 ore 11:00

Termine presentazione offerte 13/01/2026 ore 12:00

Abitazione di tipo signorile, abitazione di tipo popolare

via Guglielmo Marconi, Mapello (BG)

€ 2.683.653,00

Offerta minima € 2.012.740,00


Codice A4319521

Lotto Lotto unico

Data udienza 14/01/2026 ore 11:00

Termine presentazione offerte 13/01/2026 ore 12:00

Ti interessa questa vendita?

Documentazione

Visualizza su mappa

Mappa geografica del bene

Punti di interesse

Fonte dati

Nel raggio di {{range}}Km

Loading...
  • {{ getIcon(poi.type) }} {{ poi.localized }}: {{poi.count}}
  • {{ getIcon(poi.type) }} {{ poi.localized }}: {{poi.count}}
Dati non disponibili

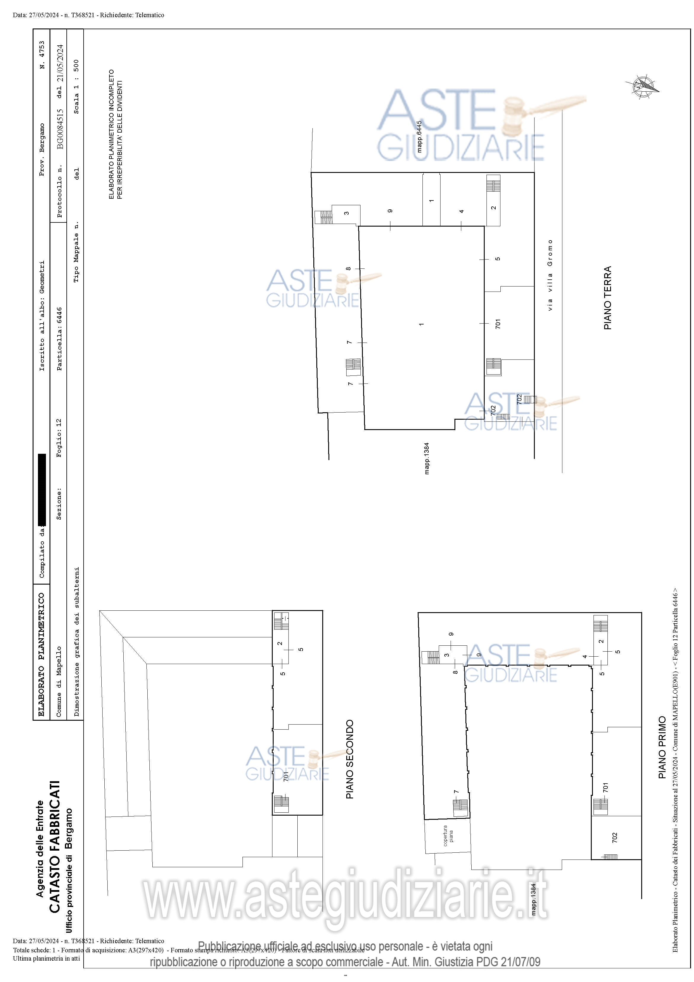
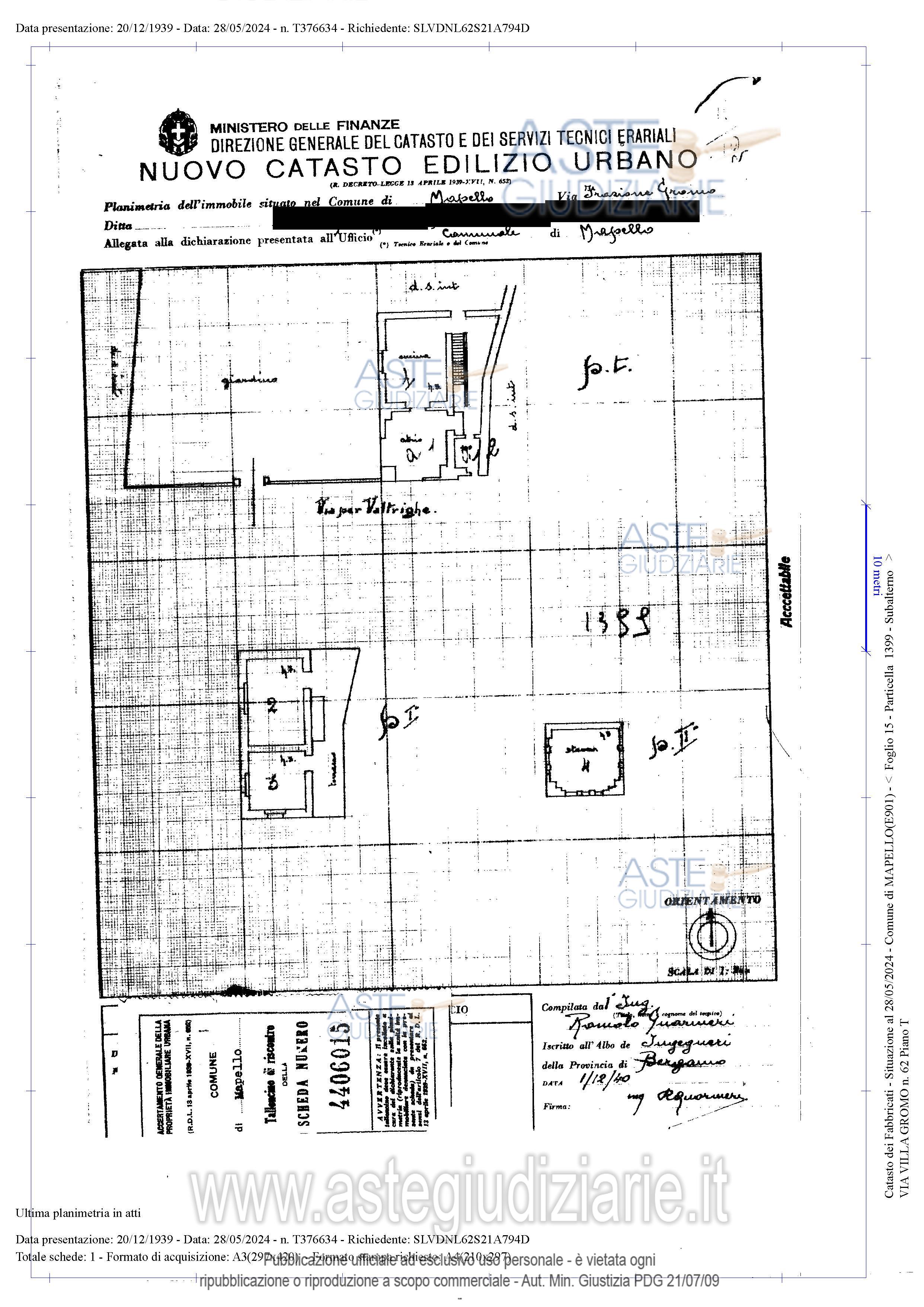
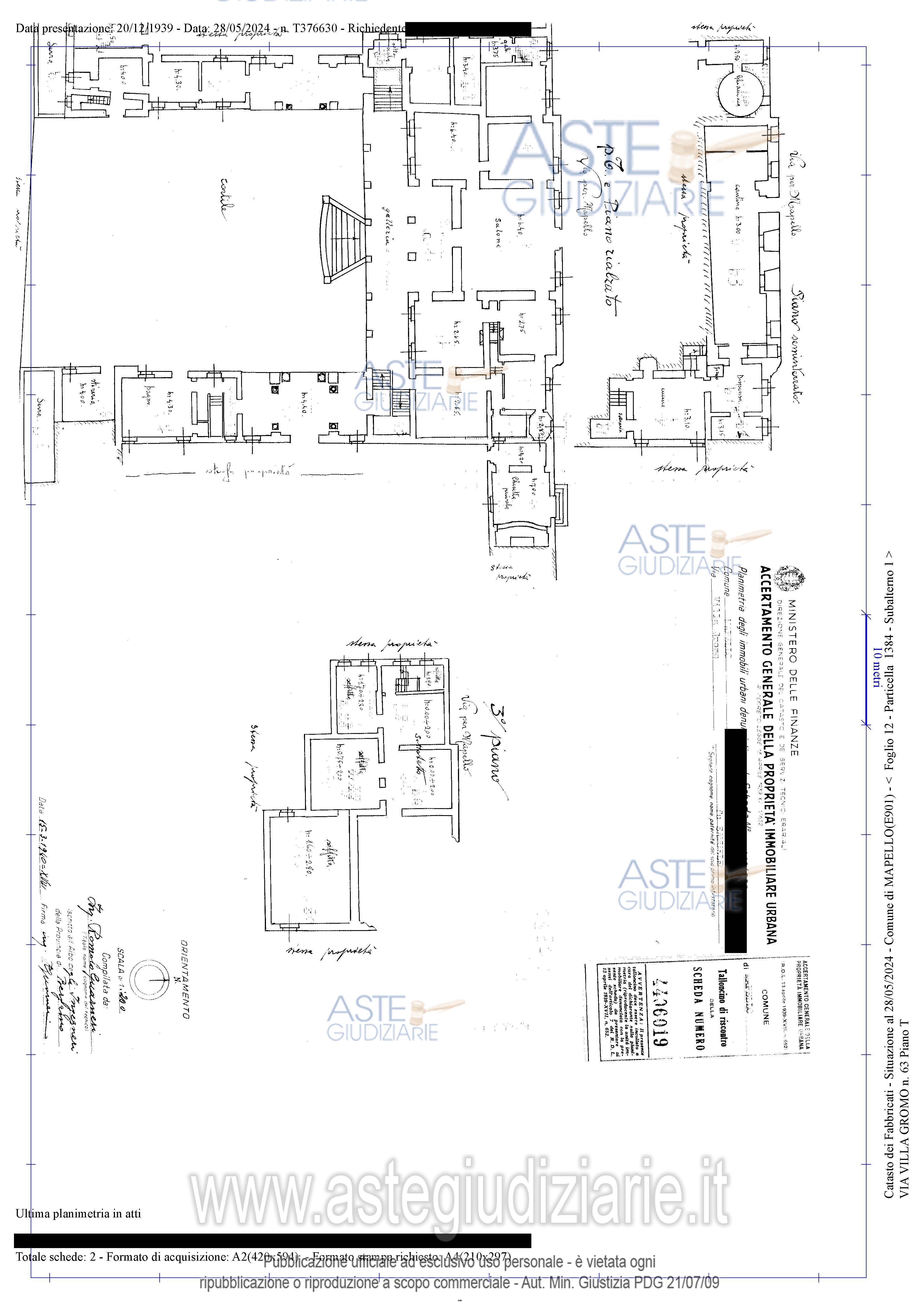
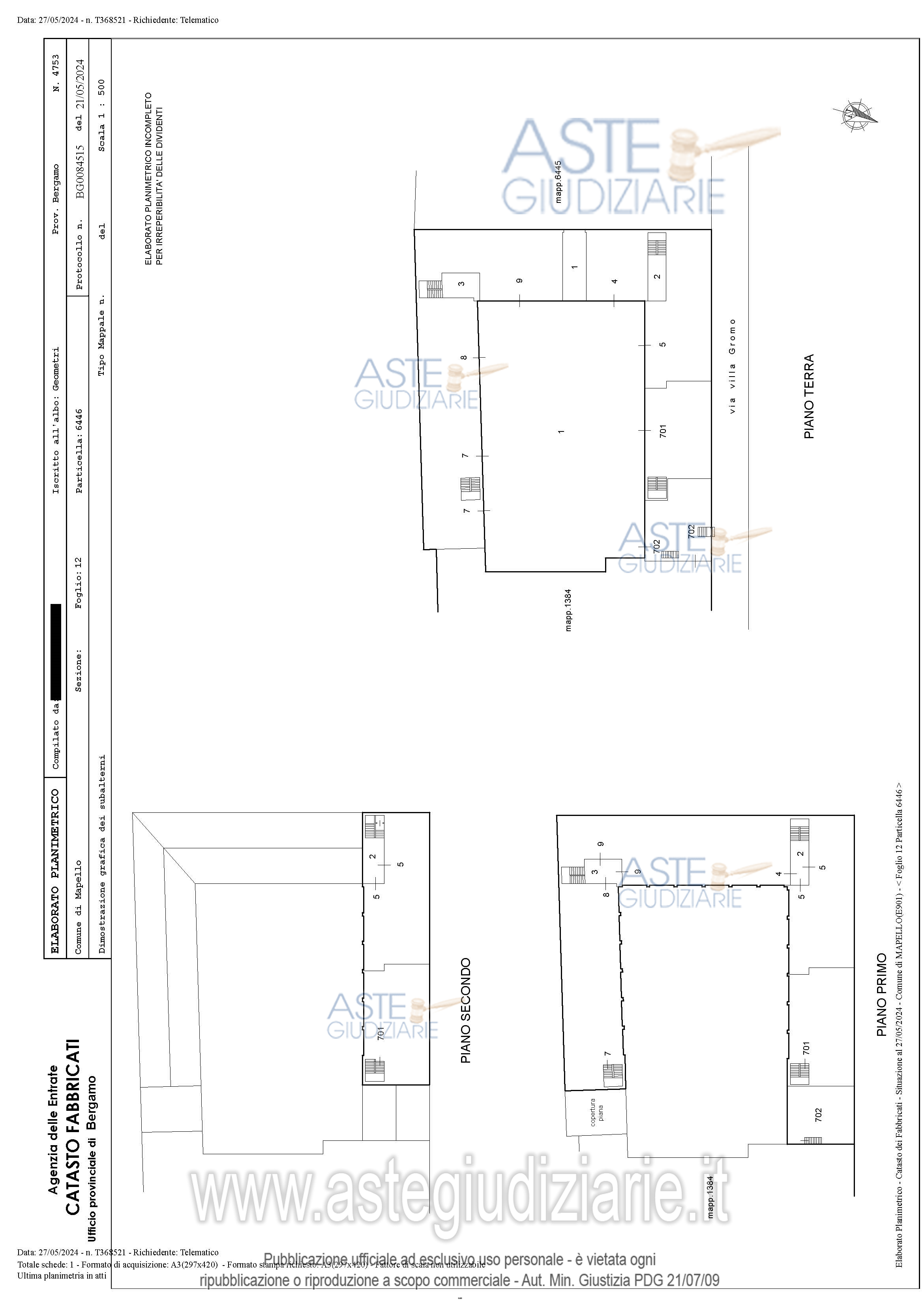
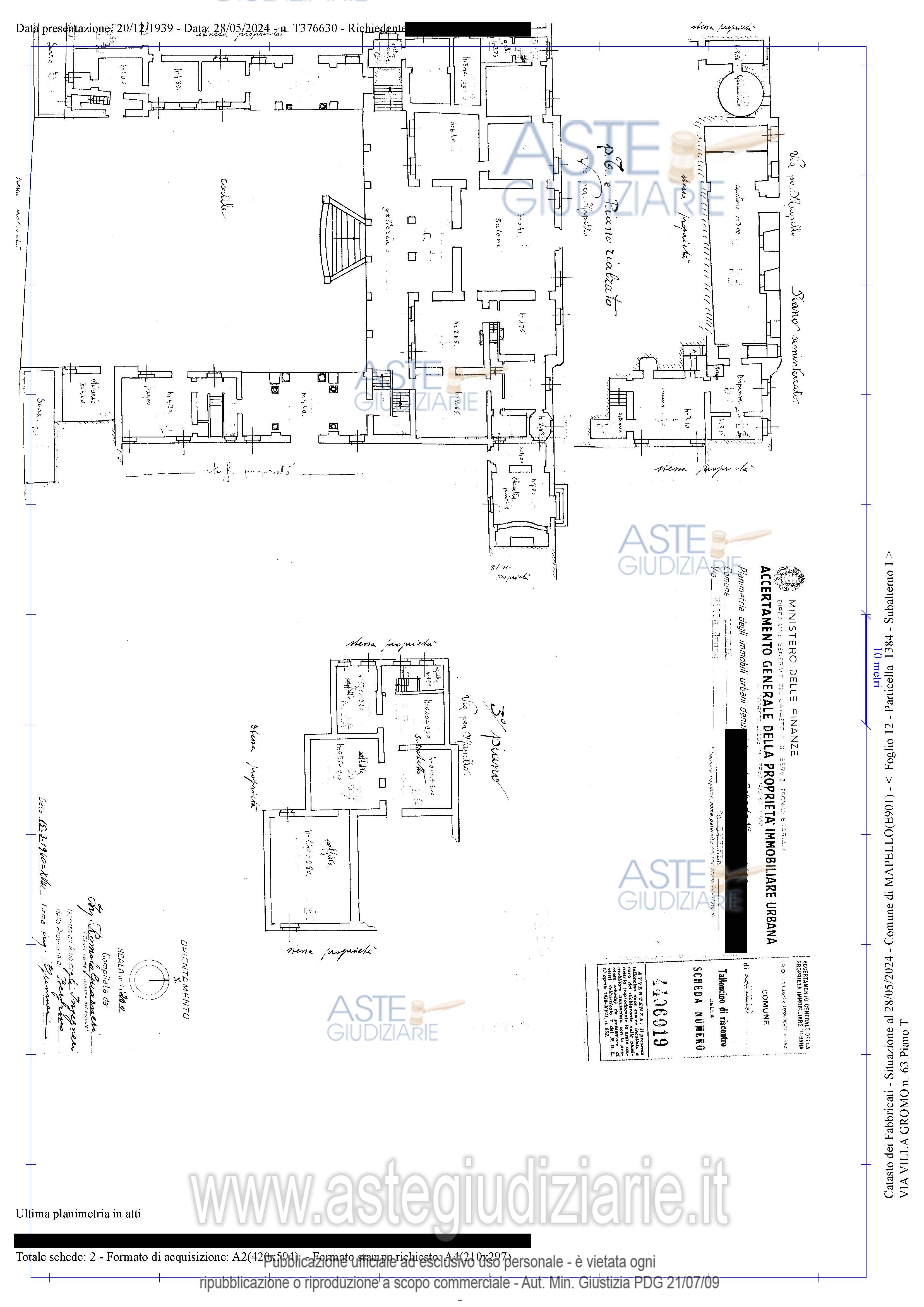
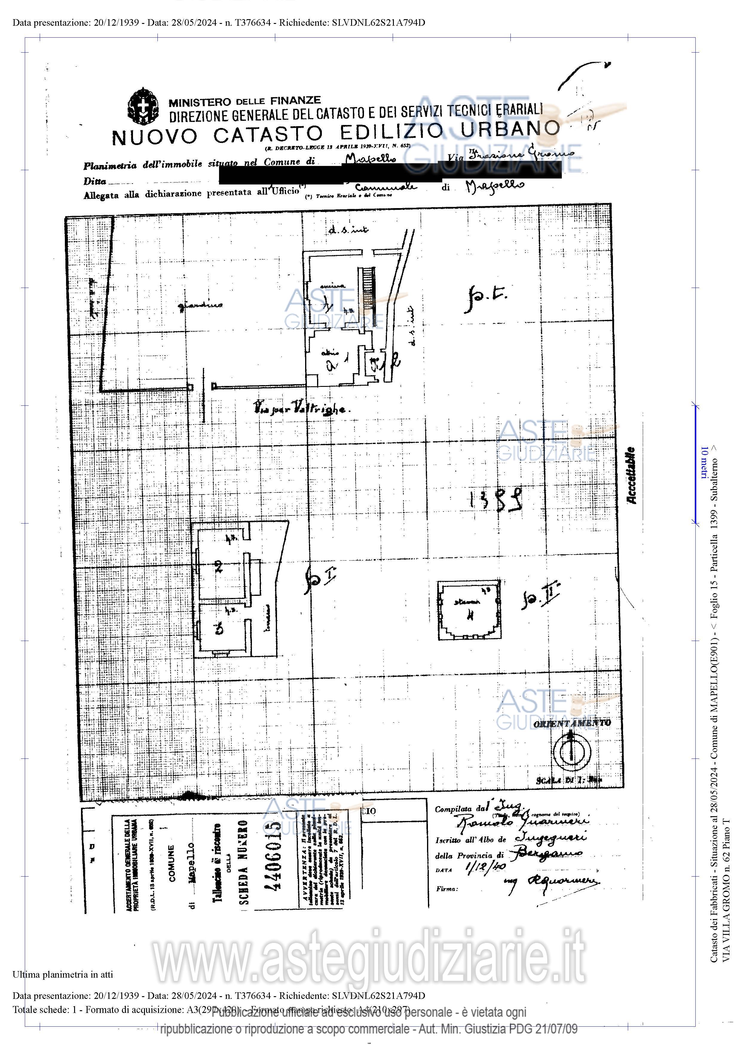
Complesso immobiliare a carattere prevalentemente residenziale costituito da una villa storica settecentesca con le sue pertinenze, conosciuta come Villa Gromo o Villa Zanchi Antona Traversi, composto da: - villa barocca settecentesca di tre piani fuori terra comprendente numerosi locali, disposta a U intorno ad un cortile con altri due cortili ai lati est ed ovest e circondata da parco - edificio di tre piani fuori terra ad uso portineria - tre fabbricati costituenti corte agricola con portici e loggiati

Indirizzo
via Guglielmo Marconi, Mapello (BG)


Codice asta
4319521


Lotto
Lotto unico


Numero beni
3


Genere
Immobili


Categoria
Immobile residenziale


Valore di stima
-


Abitazione di tipo signorile

Complesso immobiliare a carattere prevalentemente residenziale costituito, nel suo insieme, da una villa storica settecentesca con le sue pertinenze, conosciuta come Villa Gromo o Villa Zanchi Antona Traversi, composto da: - villa barocca settecentesca di tre piani fuori terra comprendente numerosi locali, disposta a U intorno ad un cortile con altri due cortili ai lati est ed ovest e circondata da un parco

Indirizzo
via Guglielmo Marconi, Mapello (BG)


Piano
-


Disponibilità
-


Vani
-


Bagni
-


Metri quadri
-


Certificazione energetica
-


Dati catastali

Foglio:12, Particella:1384, Subalterno:1-2-3
Foglio:12, Particella:6446, Subalterno:702
Foglio:9, Particella:cfr. avviso


Abitazione di tipo popolare

- edificio di tre piani fuori terra ad uso portineria posto all'ingresso del viale principale di accesso alla villa settecentesca, con annessa area edificabile

Indirizzo
via Guglielmo Marconi, Mapello (BG)


Piano
-


Disponibilità
-


Vani
-


Bagni
-


Metri quadri
-


Certificazione energetica
-


Dati catastali

Foglio:12, Particella:1399
Foglio:9, Particella:3360-1390


Abitazione di tipo popolare

- tre fabbricati posti a confine con l'ala ovest della villa settecentesca, di tre piani fuori terra quello a nord e di due piani fuori terra quelli a sud e a ovest, costituenti una corte agricola con portici al piano terreno e loggiati ai piani superiori

Indirizzo
via Guglielmo Marconi, Mapello (BG)


Piano
-


Disponibilità
-


Vani
-


Bagni
-


Metri quadri
-


Certificazione energetica
-


Dati catastali

Foglio:12, Particella:6446, Subalterno:4-5-7-8-9-701
Foglio:9, Particella:7977-1017-3358-1015


Data udienza
14/01/2026 ore 11:00


Tipo di vendita
Senza incanto


Modalità di vendita
Asincrona telematica


Luogo
N.A. -


Luogo presentazione offerte
-


Termine presentazione offerte
13/01/2026 ore 12:00


Prezzo base
€ 2.683.653,00


Offerta minima
€ 2.012.740,00


Rialzo minimo in caso di gara
€ 10.000,00


Deposito cauzionale
-


Deposito in conto spese
-


Tribunale
Bergamo

Tipo di procedura
Esecuzione immobiliare post legge 80

Ruolo
1499/2013

Giudice
Scibetta Vincenzo domenico

Recapiti
-

Email
-

Delegato alla vendita
Giannetta Antonio
(Procede alle operazioni di vendita)

Recapiti
Tel. 035219426

Email
assnotbergamo@notariato.it

Custode giudiziario
Istituto vendite giudiziarie di bergamo 
(Gestisce la visita del bene)

Recapiti
Tel. 0350763005

Scheda COD. 4319521 - Pubblicata dal 23/10/2025

La presente scheda di vendita riporta integralmente informazioni e documenti pervenuti ufficialmente dal Ministero e dal professionista incaricato.

Pubblicazione notarizzata su Blockchain


Pubblicazione autorizzata dall’Autorità competente, è vietata ogni ripubblicazione o riproduzione anche parziale


Ti interessa questa vendita?

Documentazione

Visualizza su mappa

Mappa geografica del bene

Storico delle vendite

Data venditaPrezzo base
15/04/2025€ 6.361.250,00
15/07/2025€ 4.770.938,00
15/10/2025€ 3.578.204,00
14/01/2026€ 2.683.653,00

Punti di interesse

Fonte dati

Nel raggio di {{range}}Km

Loading...
  • {{ getIcon(poi.type) }} {{ poi.localized }}: {{poi.count}}
  • {{ getIcon(poi.type) }} {{ poi.localized }}: {{poi.count}}
Dati non disponibili