Astegiudiziarie.it è parte di Rete Aste Network

Accedi o registrati

Non sei ancora registrato?

Oppure

Accedi

Appartamento

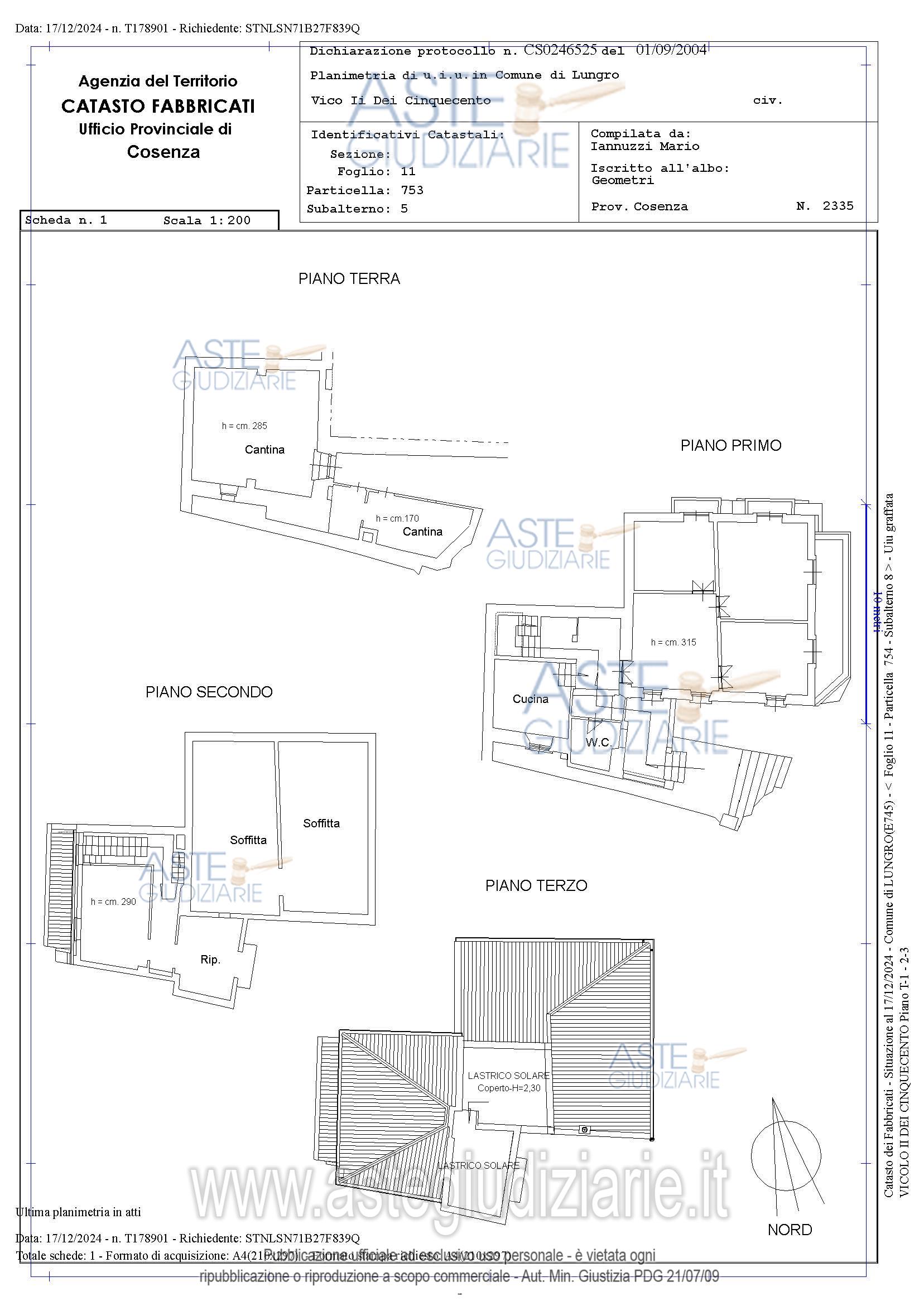
Vicolo II DEI CINQUECENTO 10, Lungro (CS)

€ 52.000,00

Offerta minima € 39.000,00


Codice A4341206

Lotto Lotto unico

Data udienza 11/02/2026 ore 16:00

Termine presentazione offerte 04/02/2026 ore 23:59

Appartamento

Vicolo II DEI CINQUECENTO 10, Lungro (CS)

€ 52.000,00

Offerta minima € 39.000,00


Codice A4341206

Lotto Lotto unico

Data udienza 11/02/2026 ore 16:00

Termine presentazione offerte 04/02/2026 ore 23:59

Vendita deserta

Ti interessa questa vendita?

Documentazione

Visualizza su mappa

Mappa geografica del bene

Punti di interesse

Fonte dati

Nel raggio di {{range}}Km

Loading...
  • {{ getIcon(poi.type) }} {{ poi.localized }}: {{poi.count}}
  • {{ getIcon(poi.type) }} {{ poi.localized }}: {{poi.count}}
Dati non disponibili

Foglio 11 particella 754 sub. 8 (catasto fabbricati), categoria A/4, classe 5, consistenza 8,5 vani, rendita 307,29 Euro, indirizzo catastale: VICOLO II DEI CINQUECENTO n. 10, piano: T-1-2-3 IN COMUNE DI LUNGRO (CS)

Indirizzo
Vicolo II DEI CINQUECENTO 10, Lungro (CS)


Codice asta
4341206


Lotto
Lotto unico


Numero beni
1


Genere
Immobili


Categoria
Immobile residenziale


Valore di stima
-


Appartamento

foglio 11 particella 754 sub. 8 (catasto fabbricati), categoria A/4, classe 5, consistenza 8,5 vani, rendita 307,29 Euro, indirizzo catastale: VICOLO II DEI CINQUECENTO n. 10, piano: T-1-2-3 IN COMUNE DI LUNGRO (CS)

Indirizzo
Vicolo II DEI CINQUECENTO 10, Lungro (CS)


Piano
-


Disponibilità
LIBERO


Vani
-


Bagni
-


Metri quadri
217,00


Certificazione energetica
-


Data udienza
11/02/2026 ore 16:00


Tipo di vendita
Senza incanto


Modalità di vendita
Sincrona telematica


Luogo
N.A. -


Luogo presentazione offerte
-


Termine presentazione offerte
04/02/2026 ore 23:59


Prezzo base
€ 52.000,00


Offerta minima
€ 39.000,00


Rialzo minimo in caso di gara
€ 1.000,00


Deposito cauzionale
10% del prezzo offerto


Deposito in conto spese
-


Tribunale
Castrovillari

Tipo di procedura
Espropriazione immobiliare (cartabia)

Ruolo
123/2024

Giudice
Gaudiano Giuliana

Recapiti
-

Email
-

Delegato alla vendita
Capano Emiliano
(Procede alle operazioni di vendita)

Recapiti
-

Email
ecapano@alice.it

Custode giudiziario
Capano Emiliano
(Gestisce la visita del bene)

Recapiti
Tel. 098121454

Email

Scheda COD. 4341206 - Pubblicata dal 18/12/2025

La presente scheda di vendita riporta integralmente informazioni e documenti pervenuti ufficialmente dal Ministero e dal professionista incaricato.


Pubblicazione autorizzata dall’Autorità competente, è vietata ogni ripubblicazione o riproduzione anche parziale


Ti interessa questa vendita?

Documentazione

Visualizza su mappa

Mappa geografica del bene

Punti di interesse

Fonte dati

Nel raggio di {{range}}Km

Loading...
  • {{ getIcon(poi.type) }} {{ poi.localized }}: {{poi.count}}
  • {{ getIcon(poi.type) }} {{ poi.localized }}: {{poi.count}}
Dati non disponibili