Astegiudiziarie.it è parte di Rete Aste Network

Accedi o registrati

Non sei ancora registrato?

Oppure

Accedi

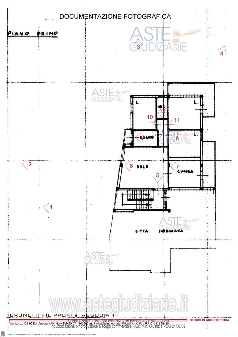
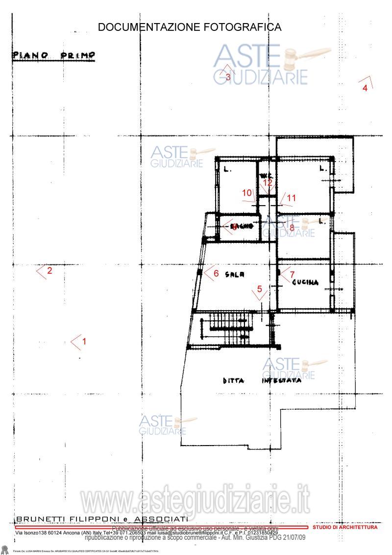
Abitazione di tipo civile

Via dei Tigli, 1, 60025 Loreto AN, Italia, Loreto (AN)

€ 77.850,00

Offerta minima € 58.388,00


Codice A4336829

Lotto Lotto unico

Data udienza 23/04/2026 ore 10:00

Termine presentazione offerte 22/04/2026 ore 12:00

Abitazione di tipo civile

Via dei Tigli, 1, 60025 Loreto AN, Italia, Loreto (AN)

€ 77.850,00

Offerta minima € 58.388,00


Codice A4336829

Lotto Lotto unico

Data udienza 23/04/2026 ore 10:00

Termine presentazione offerte 22/04/2026 ore 12:00

Ti interessa questa vendita?

Documentazione

Visualizza su mappa

Mappa geografica del bene

Punti di interesse

Fonte dati

Nel raggio di {{range}}Km

Loading...
  • {{ getIcon(poi.type) }} {{ poi.localized }}: {{poi.count}}
  • {{ getIcon(poi.type) }} {{ poi.localized }}: {{poi.count}}
Dati non disponibili

Piena proprietà di un appartamento al piano primo di un immobile a destinazione residenziale su tre piani fuori terra oltre a piano seminterrato e piano sottotetto.

Indirizzo
Via dei Tigli, 1, 60025 Loreto AN, Italia, Loreto (AN)


Codice asta
4336829


Lotto
Lotto unico


Numero beni
1


Genere
Immobili


Categoria
Immobile residenziale


Valore di stima
-


Abitazione di tipo civile

Trattasi di appartamento sito a piano primo di un immobile a destinazione residenziale su tre piani fuori terra oltre a piano seminterrato e piano sottotetto.

Indirizzo
Via dei Tigli, 1, 60025 Loreto AN, Italia, Loreto (AN)


Piano
-


Disponibilità
-


Vani
6,50


Bagni
-


Metri quadri
130,00


Certificazione energetica
-


Data udienza
23/04/2026 ore 10:00


Tipo di vendita
Senza incanto


Modalità di vendita
Asincrona telematica


Luogo
N.A. -


Luogo presentazione offerte
-


Termine presentazione offerte
22/04/2026 ore 12:00


Prezzo base
€ 77.850,00


Offerta minima
€ 58.388,00


Rialzo minimo in caso di gara
€ 2.000,00


Deposito cauzionale
10% del prezzo offerto


Deposito in conto spese
-


Tribunale
Ancona

Tipo di procedura
Espropriazione immobiliare (cartabia)

Ruolo
276/2024

Delegato alla vendita
Baldinelli Daniela
(Procede alle operazioni di vendita)

Recapiti
Tel. 0717925768

Email
danielabaldinelli@gmail.com

Custode giudiziario
Baldinelli Daniela
(Gestisce la visita del bene)

Recapiti
Tel. 0717925768

Scheda COD. 4336829 - Pubblicata dal 02/03/2026

La presente scheda di vendita riporta integralmente informazioni e documenti pervenuti ufficialmente dal Ministero e dal professionista incaricato.


Pubblicazione autorizzata dall’Autorità competente, è vietata ogni ripubblicazione o riproduzione anche parziale


Ti interessa questa vendita?

Documentazione

Visualizza su mappa

Mappa geografica del bene

Storico delle vendite

Data venditaPrezzo base
20/11/2025€ 138.400,00
29/01/2026€ 103.800,00
23/04/2026€ 77.850,00

Punti di interesse

Fonte dati

Nel raggio di {{range}}Km

Loading...
  • {{ getIcon(poi.type) }} {{ poi.localized }}: {{poi.count}}
  • {{ getIcon(poi.type) }} {{ poi.localized }}: {{poi.count}}
Dati non disponibili