Astegiudiziarie.it è parte di Rete Aste Network

Accedi o registrati

Non sei ancora registrato?

Oppure

Accedi

Abitazione di tipo civile

Via della Salute n.49, Livorno (LI)

€ 425.495,25

Offerta minima € 319.121,44


Codice A4297385

Lotto Lotto unico

Data udienza 07/07/2026 ore 12:00

Termine presentazione offerte 06/07/2026 ore 12:00

Abitazione di tipo civile

Via della Salute n.49, Livorno (LI)

€ 425.495,25

Offerta minima € 319.121,44


Codice A4297385

Lotto Lotto unico

Data udienza 07/07/2026 ore 12:00

Termine presentazione offerte 06/07/2026 ore 12:00

Ti interessa questa vendita?

Documentazione

Visualizza su mappa

Mappa geografica del bene

Punti di interesse

Fonte dati

Nel raggio di {{range}}Km

Loading...
  • {{ getIcon(poi.type) }} {{ poi.localized }}: {{poi.count}}
  • {{ getIcon(poi.type) }} {{ poi.localized }}: {{poi.count}}
Dati non disponibili

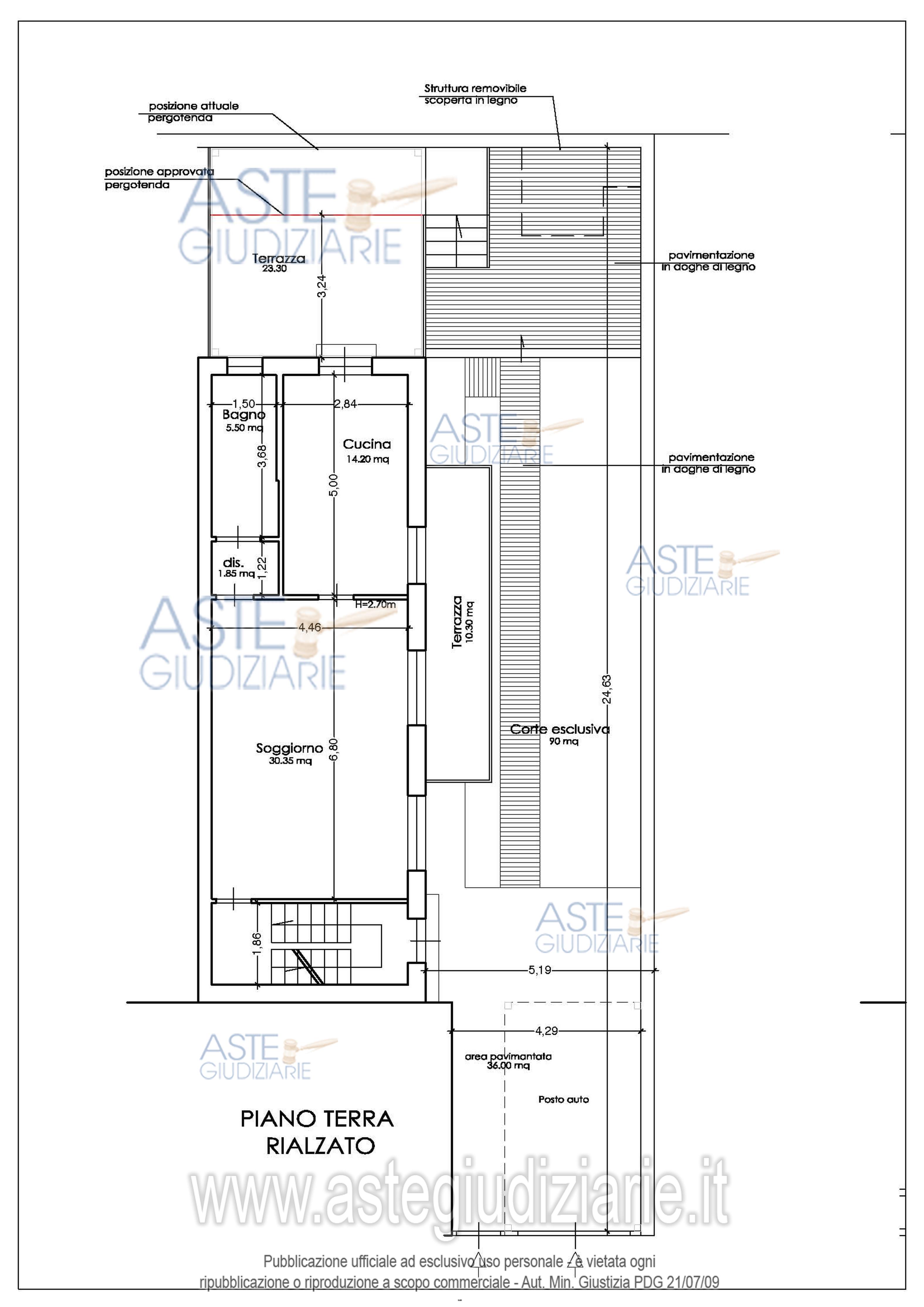
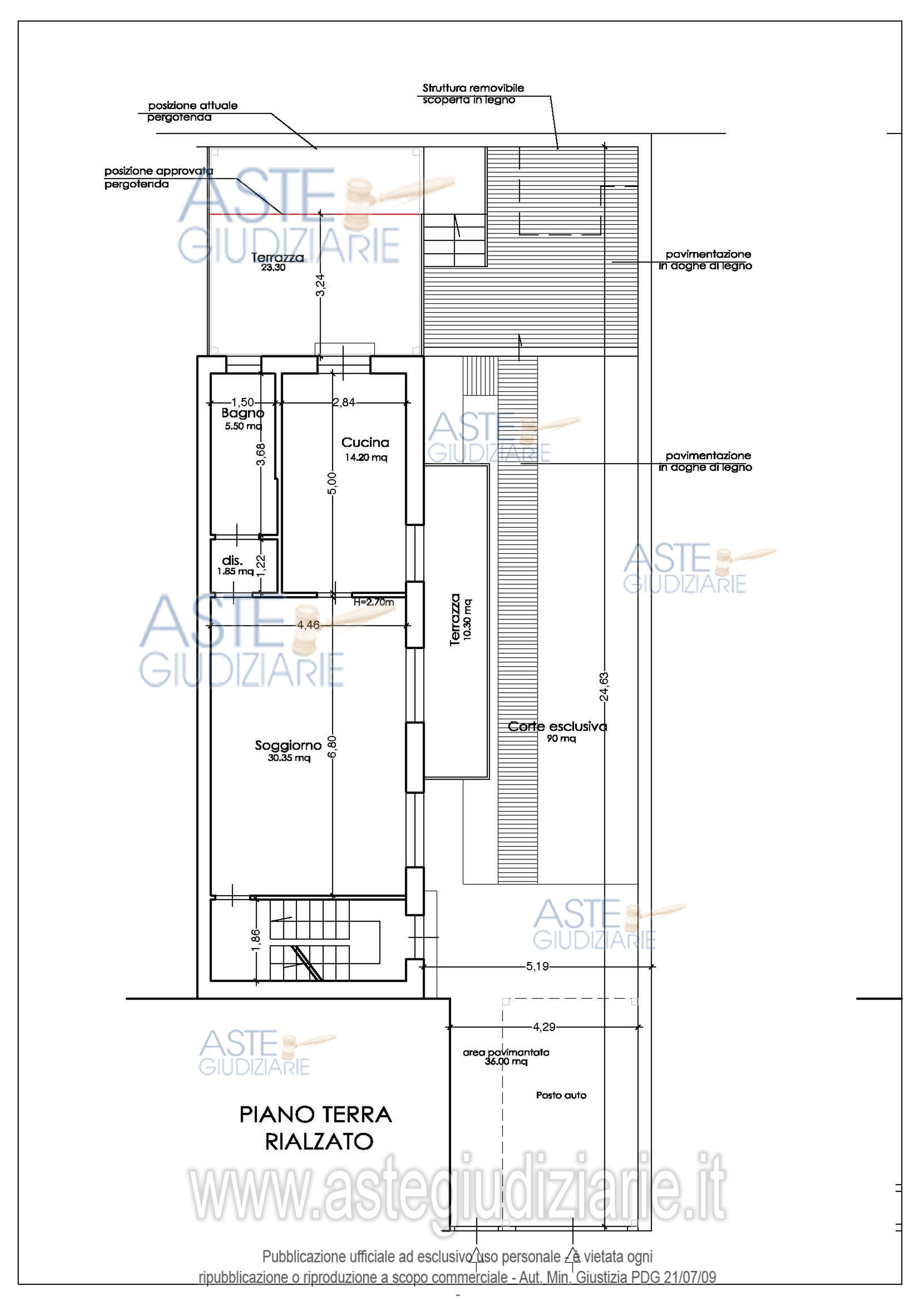
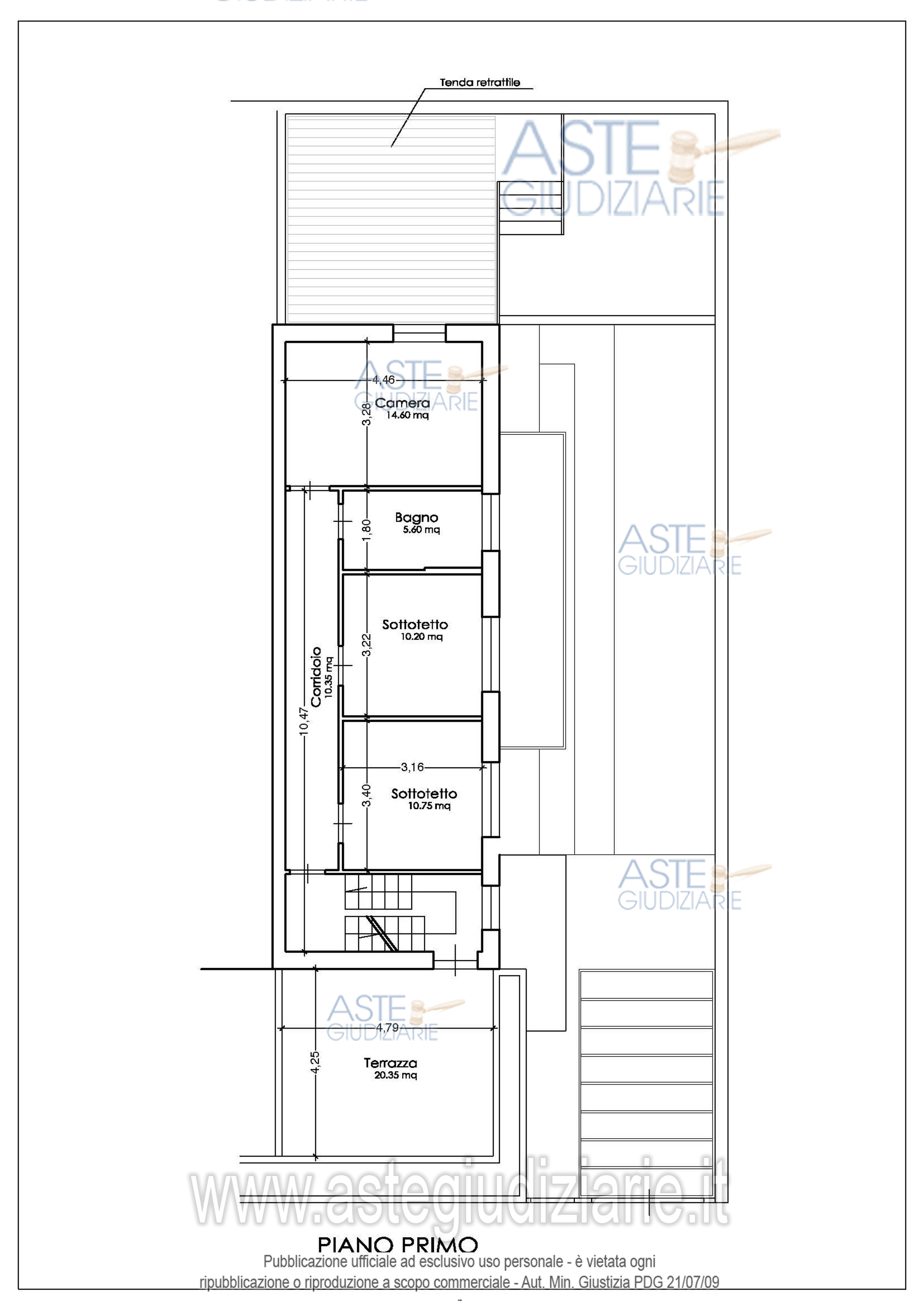
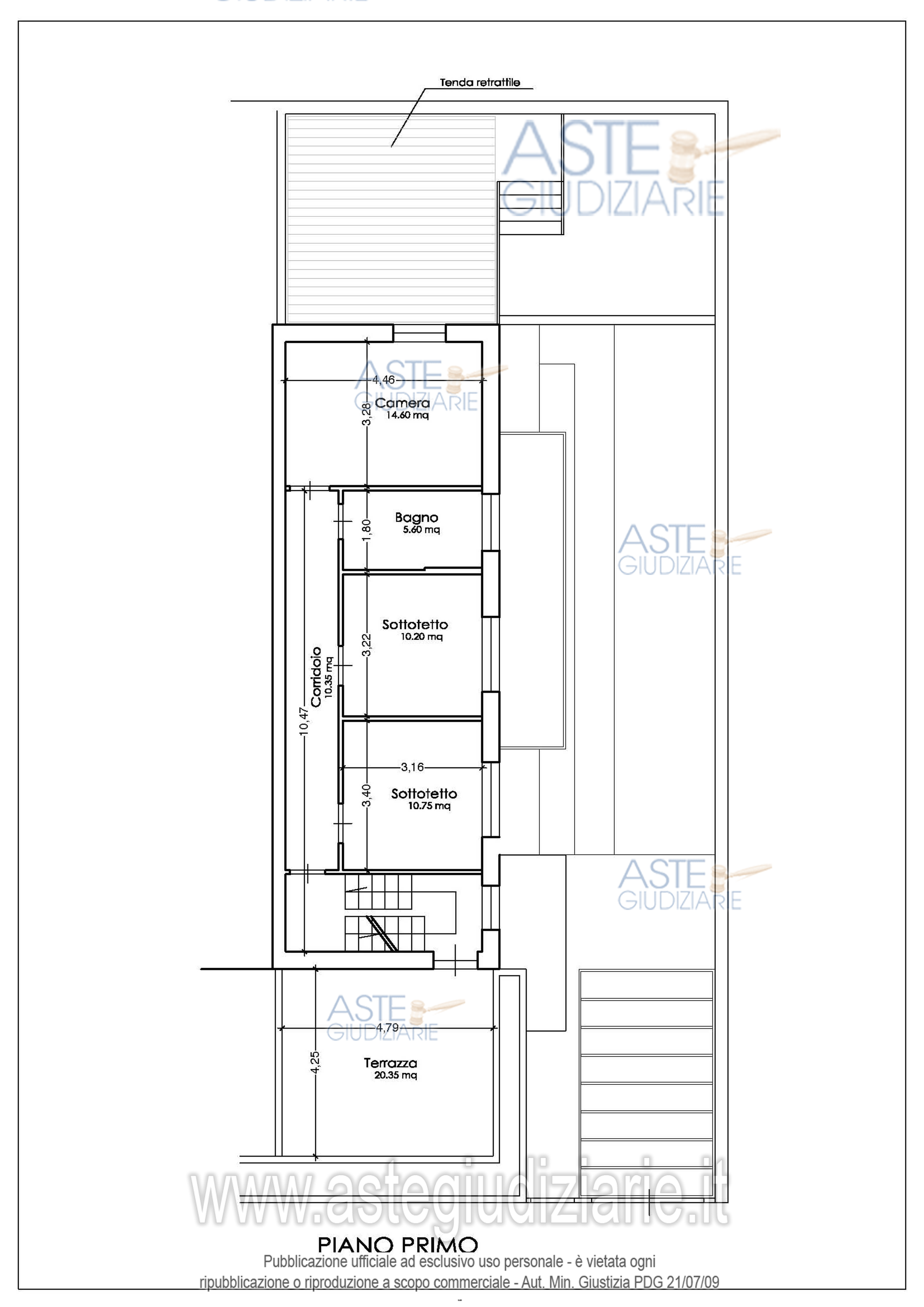
Appartamento composto complessivamente da quattro livelli collegati da una scala interna.

Indirizzo
Via della Salute n.49, Livorno (LI)


Codice asta
4297385


Lotto
Lotto unico


Numero beni
1


Genere
Immobili


Categoria
Immobile residenziale


Valore di stima
-


Abitazione di tipo civile

Appartamento composto complessivamente da quattro livelli collegati da una scala interna ed è articolato come segue: al piano seminterrato da una cantina suddivisa in due vani e un locale tecnico; al piano terreno - che si trova ad un livello rialzato - da una cucina, soggiorno, disimpegno e bagno, una terrazza sul retro dotata di pergotenda, un balcone e giardino esclusivo in parte pergolato nell’area adibita a posto auto; al piano primo da un corridoio di disimpegno, bagno, una camera e due locali praticabili ma non abitabili per mancanza di altezza regolamentare, una terrazza posizionala ad un livello intermedio; all’ultimo livello si accede alla terrazza di copertura –solarium praticabile.

Indirizzo
Via della Salute n.49, Livorno (LI)


Piano
-


Disponibilità
LIBERO


Vani
80,00


Bagni
-


Metri quadri
213,00


Certificazione energetica
-


Data udienza
07/07/2026 ore 12:00


Tipo di vendita
Senza incanto


Modalità di vendita
Asincrona telematica


Luogo
N.A. -


Luogo presentazione offerte
-


Termine presentazione offerte
06/07/2026 ore 12:00


Prezzo base
€ 425.495,25


Offerta minima
€ 319.121,44


Rialzo minimo in caso di gara
€ 5.000,00


Deposito cauzionale
10% del prezzo offerto


Deposito in conto spese
-


Tribunale
Livorno

Tipo di procedura
Esecuzione immobiliare post legge 80

Ruolo
147/2022

Delegato alla vendita
Pritelli Giorgio
(Procede alle operazioni di vendita)

Recapiti
-

Email
-

Custode giudiziario
Pritelli Giorgio
(Gestisce la visita del bene)

Recapiti
-

Scheda COD. 4297385 - Pubblicata dal 27/04/2026

La presente scheda di vendita riporta integralmente informazioni e documenti pervenuti ufficialmente dal Ministero e dal professionista incaricato.

Pubblicazione notarizzata su Blockchain


Pubblicazione autorizzata dall’Autorità competente, è vietata ogni ripubblicazione o riproduzione anche parziale



Attenzione: Non è dovuto alcun compenso (né a titolo di intermediazione, né per vedere l’immobile, né per ricevere istruzioni sulle modalità di presentazione dell’offerta, né a nessun altro titolo), se ci si rivolge a persone incaricate dal Tribunale (custode, professionista delegato, curatore, società incaricata di gestire la vendita). La pubblicità relativa a questo bene immobile, venduto dal Tribunale nella procedura indicata, potrebbe essere inserita su portali immobiliari, anche da altri soggetti non incaricati dal Tribunale. Se l’interessato all’acquisto si rivolge a questi ultimi, potrebbe essergli richiesto di pagare spese o compensi di mediazione o consulenza.


Ti interessa questa vendita?

Documentazione

Visualizza su mappa

Mappa geografica del bene

Storico delle vendite

Data venditaPrezzo base
21/05/2024€ 567.327,00
07/07/2026€ 425.495,25

Punti di interesse

Fonte dati

Nel raggio di {{range}}Km

Loading...
  • {{ getIcon(poi.type) }} {{ poi.localized }}: {{poi.count}}
  • {{ getIcon(poi.type) }} {{ poi.localized }}: {{poi.count}}
Dati non disponibili