Astegiudiziarie.it è parte di Rete Aste Network

Accedi o registrati

Non sei ancora registrato?

Oppure

Accedi

Abitazione di tipo civile

via monserrato 10, Licata (AG)

€ 34.700,00

Offerta minima € 26.050,00


Codice A4312623

Lotto 11

Data udienza 19/06/2026 ore 16:30

Termine presentazione offerte 18/06/2026 ore 12:00

Abitazione di tipo civile

via monserrato 10, Licata (AG)

€ 34.700,00

Offerta minima € 26.050,00


Codice A4312623

Lotto 11

Data udienza 19/06/2026 ore 16:30

Termine presentazione offerte 18/06/2026 ore 12:00

Ti interessa questa vendita?

Documentazione

Visualizza su mappa

Mappa geografica del bene

Punti di interesse

Fonte dati

Nel raggio di {{range}}Km

Loading...
  • {{ getIcon(poi.type) }} {{ poi.localized }}: {{poi.count}}
  • {{ getIcon(poi.type) }} {{ poi.localized }}: {{poi.count}}
Dati non disponibili

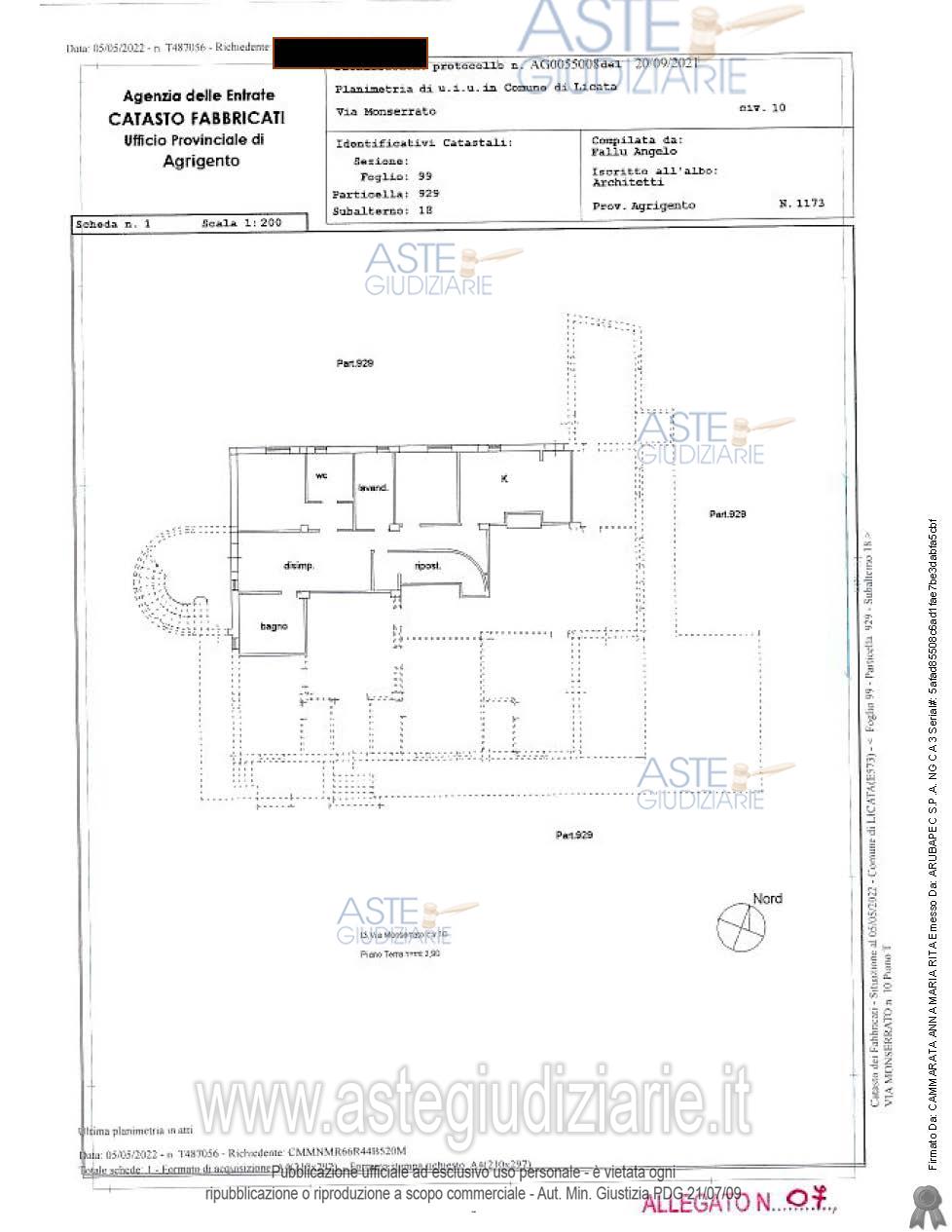
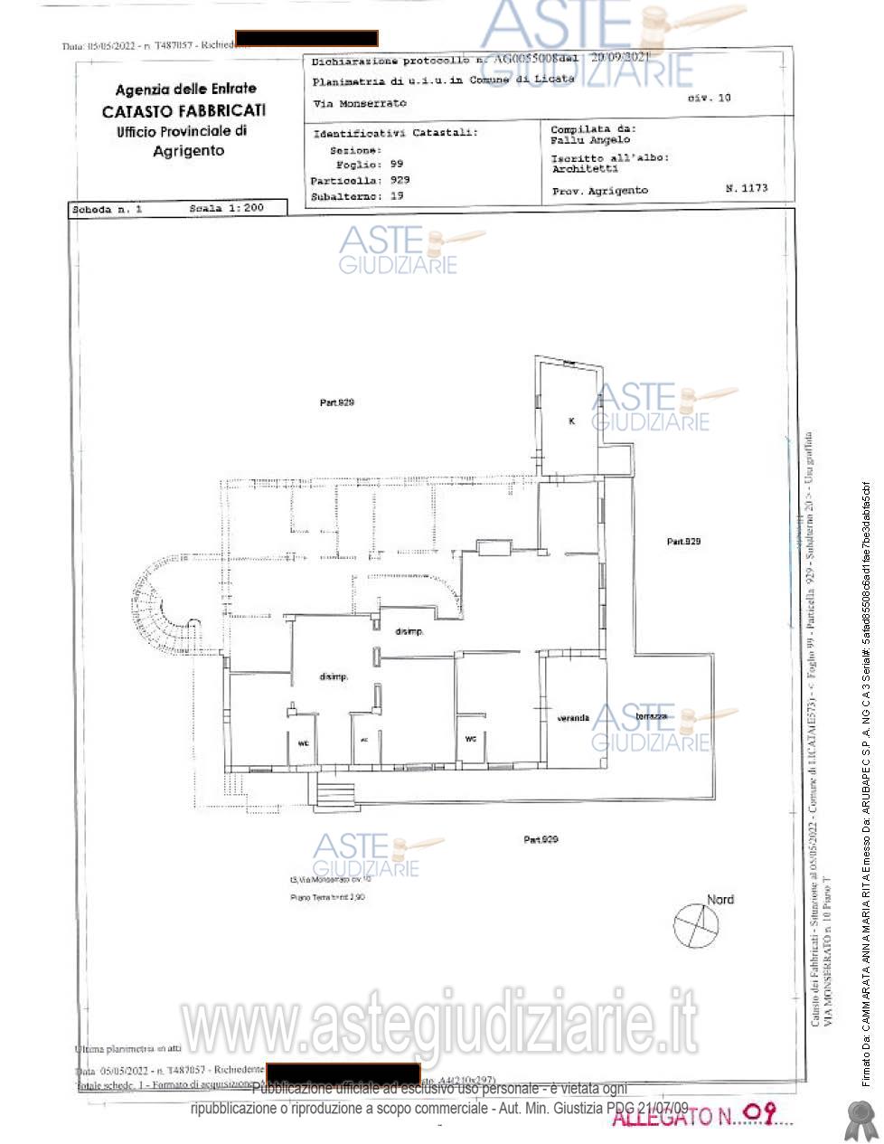
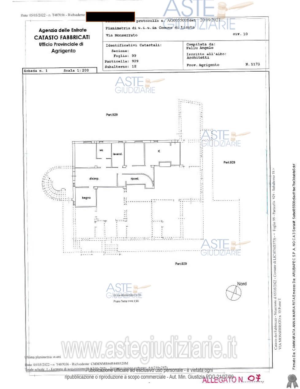
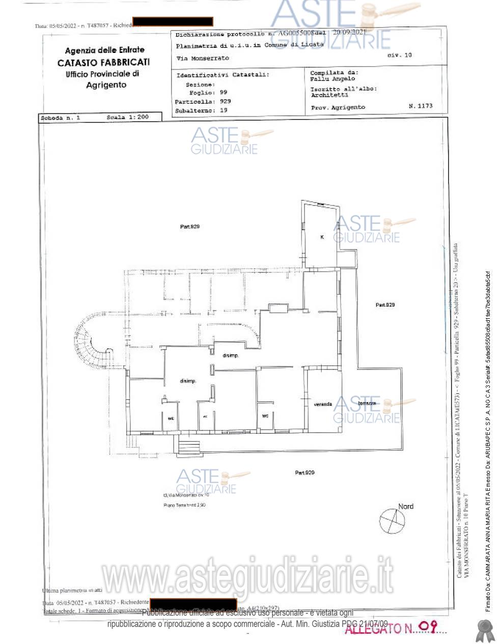
Diritto di usufrutto (relativo a soggetto di sesso maschile nato nel 1949) di appartamento doppio in Licata, Via Monserrato 10, esteso complessivamente mq. 347 ca., posto al piano terra di più ampio edificio, gode di area di pertinenza esterna.

Indirizzo
via monserrato 10, Licata (AG)


Codice asta
4312623


Lotto
11


Numero beni
1


Genere
Immobili


Categoria
Immobile residenziale


Valore di stima
-


Abitazione di tipo civile

Diritto di usufrutto (relativo a soggetto di sesso maschile nato nel 1949) di appartamento doppio in Licata, Via Monserrato 10, esteso complessivamente mq. 347 ca., posto al piano terra di più ampio edificio, gode di area di pertinenza esterna.

Indirizzo
via monserrato 10, Licata (AG)


Piano
0


Disponibilità
OCCUPATO


Vani
-


Bagni
-


Metri quadri
347,00


Certificazione energetica
-


Dati catastali

Foglio:99, Particella:929, Subalterno:18
Foglio:99, Particella:929, Subalterno:19
Foglio:99, Particella:929, Subalterno:20


Data udienza
19/06/2026 ore 16:30


Tipo di vendita
Senza incanto


Modalità di vendita
Sincrona mista


Luogo
Via S. Vito, 26, 92100 Agrigento AG, Italia - Agrigento 92100


Luogo presentazione offerte
-


Termine presentazione offerte
18/06/2026 ore 12:00


Prezzo base
€ 34.700,00


Offerta minima
€ 26.050,00


Rialzo minimo in caso di gara
€ 1.000,00


Deposito cauzionale
-


Deposito in conto spese
-


Tribunale
Agrigento

Tipo di procedura
Esecuzione immobiliare post legge 80

Ruolo
126/2021

Delegato alla vendita
Vetro Luca
(Procede alle operazioni di vendita)
(Gestisce la visita del bene)

Recapiti
Tel. 092223032

Scheda COD. 4312623 - Pubblicata dal 06/03/2026

La presente scheda di vendita riporta integralmente informazioni e documenti pervenuti ufficialmente dal Ministero e dal professionista incaricato.

Pubblicazione notarizzata su Blockchain


Pubblicazione autorizzata dall’Autorità competente, è vietata ogni ripubblicazione o riproduzione anche parziale


Ti interessa questa vendita?

Documentazione

Visualizza su mappa

Mappa geografica del bene

Storico delle vendite

Data venditaPrezzo base
10/01/2025€ 82.150,00
09/05/2025€ 62.650,00
12/09/2025€ 46.250,00
19/06/2026€ 34.700,00

Punti di interesse

Fonte dati

Nel raggio di {{range}}Km

Loading...
  • {{ getIcon(poi.type) }} {{ poi.localized }}: {{poi.count}}
  • {{ getIcon(poi.type) }} {{ poi.localized }}: {{poi.count}}
Dati non disponibili