Astegiudiziarie.it è parte di Rete Aste Network

Accedi o registrati

Non sei ancora registrato?

Oppure

Accedi

Abitazione di tipo civile

Via Comunale vecchia Lecce-Copertino, Lecce (LE)

€ 252.000,00

Offerta minima € 189.000,00


Codice A4332668

Lotto Lotto unico

Data udienza 28/04/2026 ore 10:00

Termine presentazione offerte 21/04/2026 ore 12:00

Abitazione di tipo civile

Via Comunale vecchia Lecce-Copertino, Lecce (LE)

€ 252.000,00

Offerta minima € 189.000,00


Codice A4332668

Lotto Lotto unico

Data udienza 28/04/2026 ore 10:00

Termine presentazione offerte 21/04/2026 ore 12:00

Ti interessa questa vendita?

Documentazione

Visualizza su mappa

Mappa geografica del bene

Punti di interesse

Fonte dati

Nel raggio di {{range}}Km

Loading...
  • {{ getIcon(poi.type) }} {{ poi.localized }}: {{poi.count}}
  • {{ getIcon(poi.type) }} {{ poi.localized }}: {{poi.count}}
Dati non disponibili

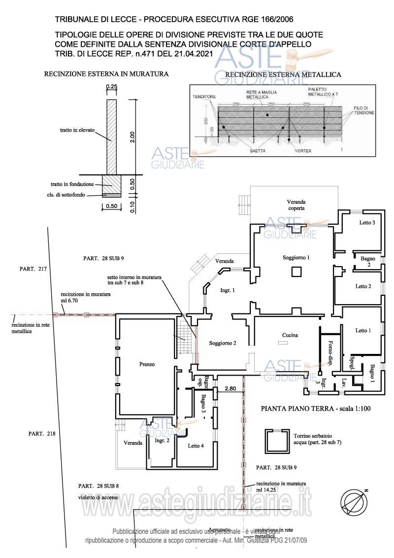
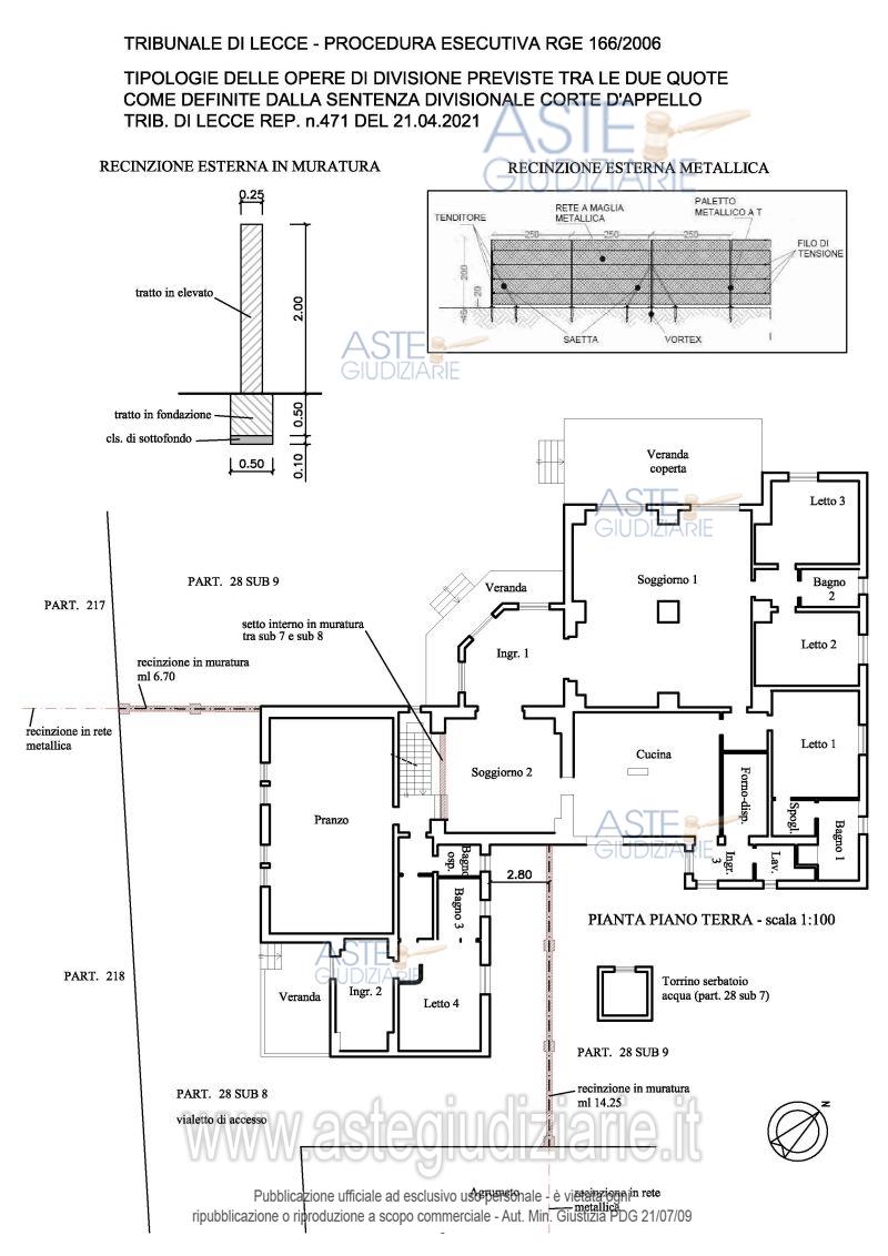
Immobili con diritto di piena proprietà per la quota di 1/1 siti in Lecce alla Via Comunale vecchia Lecce-Copertino, costituenti la quota “B” del progetto di divisione in atti

Indirizzo
Via Comunale vecchia Lecce-Copertino, Lecce (LE)


Codice asta
4332668


Lotto
Lotto unico


Numero beni
1


Genere
Immobili


Categoria
Immobile residenziale


Valore di stima
-


Abitazione di tipo civile

Immobili con diritto di piena proprietà per la quota di 1/1 siti in Lecce alla Via Comunale vecchia Lecce-Copertino, costituenti la quota “B” del progetto di divisione in atti:1) Fabbricati in atti presso il N.C.E.U.: fg. 254, p.lla 28, sub 8, cat. A7/, cl. 4, vani 10,5 rendita € 1.572,61. Unità immobiliare costituita da porzione della villa comprendente parte del piano terra, l’intero scantinato e l’intero piano primo, oltre a scoperto di pertinenza esclusiva composto da parte del parco e parte degli agrumeti)2) Terreni in atti presso il N.C.T.: p.lla 218, sup. ha 3.00.96, qual. uliveto, cl. 2^, R.D. € 93,26 R.D. € 62,17. Terreno comprendente parte dell’uliveto, parte del parco, parte degli agrumeti, il frutteto, scarpata di raccordo con l’ex cava, e recinto allevamento bestiame).

Indirizzo
Via Comunale vecchia Lecce-Copertino, Lecce (LE)


Piano
-


Disponibilità
-


Vani
-


Bagni
-


Metri quadri
-


Certificazione energetica
-


Data udienza
28/04/2026 ore 10:00


Tipo di vendita
Senza incanto


Modalità di vendita
Asincrona telematica


Luogo
N.A. -


Luogo presentazione offerte
-


Termine presentazione offerte
21/04/2026 ore 12:00


Prezzo base
€ 252.000,00


Offerta minima
€ 189.000,00


Rialzo minimo in caso di gara
€ 2.000,00


Deposito cauzionale
10% del prezzo offerto


Deposito in conto spese
-


Tribunale
Lecce

Tipo di procedura
Esecuzione immobiliare post legge 80

Ruolo
166/2006

Delegato alla vendita
Leone Francesco
(Procede alle operazioni di vendita)
(Gestisce la visita del bene)

Recapiti
Cell. 3358180873
Tel. 0832364614

Scheda COD. 4332668 - Pubblicata dal 13/03/2026

La presente scheda di vendita riporta integralmente informazioni e documenti pervenuti ufficialmente dal Ministero e dal professionista incaricato.

Pubblicazione notarizzata su Blockchain


Pubblicazione autorizzata dall’Autorità competente, è vietata ogni ripubblicazione o riproduzione anche parziale


Ti interessa questa vendita?

Documentazione

Visualizza su mappa

Mappa geografica del bene

Storico delle vendite

Data venditaPrezzo base
05/09/2025€ 447.591,00
12/01/2026€ 336.000,00
28/04/2026€ 252.000,00

Punti di interesse

Fonte dati

Nel raggio di {{range}}Km

Loading...
  • {{ getIcon(poi.type) }} {{ poi.localized }}: {{poi.count}}
  • {{ getIcon(poi.type) }} {{ poi.localized }}: {{poi.count}}
Dati non disponibili