Astegiudiziarie.it è parte di Rete Aste Network

Accedi o registrati

Non sei ancora registrato?

Oppure

Accedi

Abitazione di tipo popolare

Contrada Villa Elce, 66034 Lanciano CH, Italia, Lanciano (CH)

€ 160.900,00

Offerta minima € 120.675,00


Codice A4347943

Lotto Lotto unico

Data udienza 20/05/2026 ore 10:00

Termine presentazione offerte 19/05/2026 ore 12:00

Abitazione di tipo popolare

Contrada Villa Elce, 66034 Lanciano CH, Italia, Lanciano (CH)

€ 160.900,00

Offerta minima € 120.675,00


Codice A4347943

Lotto Lotto unico

Data udienza 20/05/2026 ore 10:00

Termine presentazione offerte 19/05/2026 ore 12:00

Ti interessa questa vendita?

Documentazione

Visualizza su mappa

Mappa geografica del bene

Punti di interesse

Fonte dati

Nel raggio di {{range}}Km

Loading...
  • {{ getIcon(poi.type) }} {{ poi.localized }}: {{poi.count}}
  • {{ getIcon(poi.type) }} {{ poi.localized }}: {{poi.count}}
Dati non disponibili

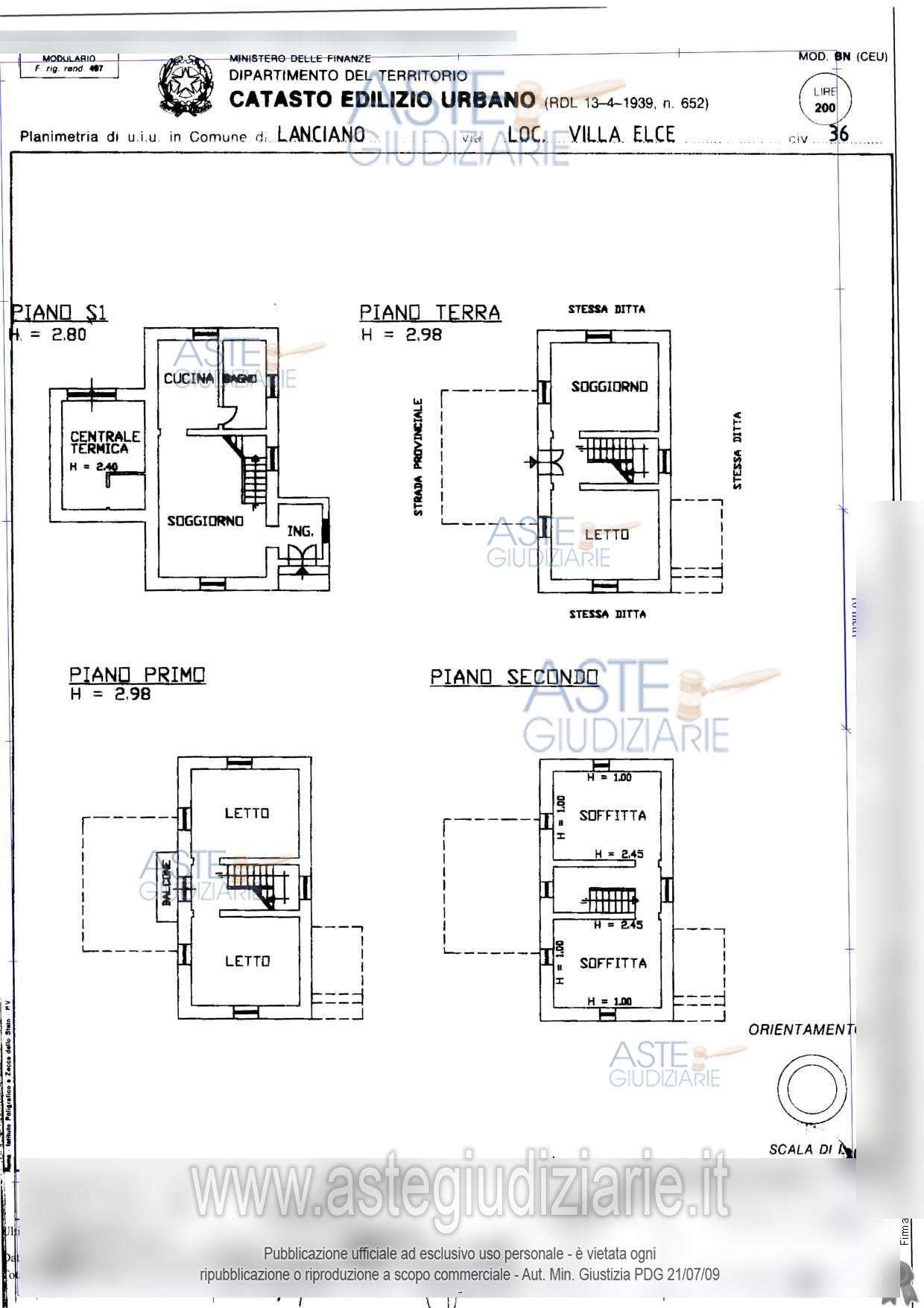
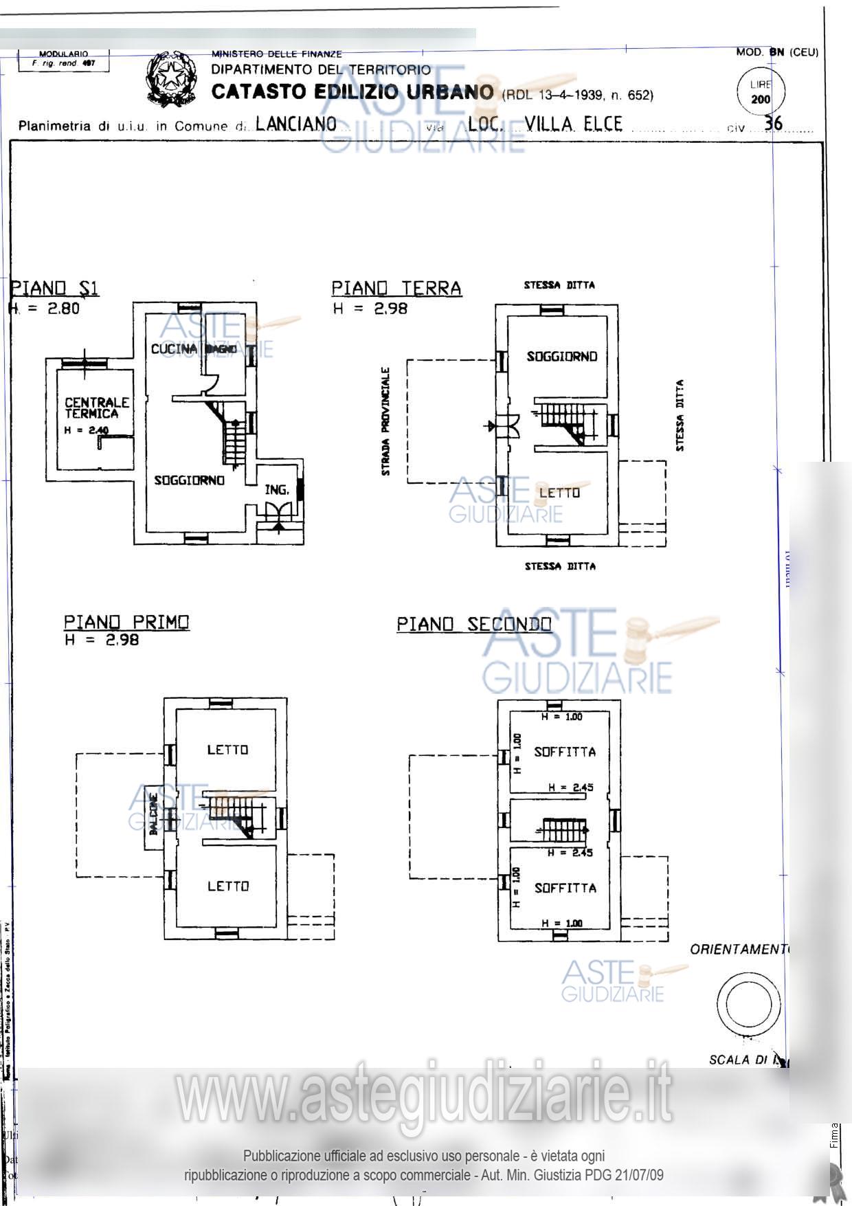
Piena proprietà di edificio in muratura ad uso residenziale sito nel Comune di Lanciano (CH), alla Contrada Villa Elce n.36, composto da quattro piani, con annessi n. 2 magazzini e n. 2 terreni agricoli

Indirizzo
Contrada Villa Elce, 66034 Lanciano CH, Italia, Lanciano (CH)


Codice asta
4347943


Lotto
Lotto unico


Numero beni
1


Genere
Immobili


Categoria
Immobile residenziale


Valore di stima
-


Abitazione di tipo popolare

Piena proprietà di edificio in muratura ad uso residenziale sito nel Comune di Lanciano (CH), alla Contrada Villa Elce n.36, composto da quattro piani, con annessi n.2 magazzini e n. 2 terreni agricoli

Indirizzo
Contrada Villa Elce, 66034 Lanciano CH, Italia, Lanciano (CH)


Piano
-


Disponibilità
LIBERO


Vani
10,00


Bagni
-


Metri quadri
399,00


Certificazione energetica
-


Dati catastali

Foglio:42, Particella:4049


Data udienza
20/05/2026 ore 10:00


Tipo di vendita
Senza incanto


Modalità di vendita
Asincrona telematica


Luogo
N.A. -


Luogo presentazione offerte
-


Termine presentazione offerte
19/05/2026 ore 12:00


Prezzo base
€ 160.900,00


Offerta minima
€ 120.675,00


Rialzo minimo in caso di gara
€ 2.000,00


Deposito cauzionale
10% del prezzo offerto


Deposito in conto spese
-


Tribunale
Lanciano

Tipo di procedura
Espropriazione immobiliare (cartabia)

Ruolo
28/2025

Giudice
D'alfonso Chiara

Recapiti
-

Email
-

Delegato alla vendita
Orsini Giulia
(Procede alle operazioni di vendita)

Recapiti
Cell. 3475439001

Email
orsiniavvgiulia@gmail.com

IVG
Ivg 
(Gestisce la visita del bene)

Recapiti
Cell. 0872715361

Scheda COD. 4347943 - Pubblicata dal 25/03/2026

La presente scheda di vendita riporta integralmente informazioni e documenti pervenuti ufficialmente dal Ministero e dal professionista incaricato.


Pubblicazione autorizzata dall’Autorità competente, è vietata ogni ripubblicazione o riproduzione anche parziale


Ti interessa questa vendita?

Documentazione

Visualizza su mappa

Mappa geografica del bene

Punti di interesse

Fonte dati

Nel raggio di {{range}}Km

Loading...
  • {{ getIcon(poi.type) }} {{ poi.localized }}: {{poi.count}}
  • {{ getIcon(poi.type) }} {{ poi.localized }}: {{poi.count}}
Dati non disponibili