Astegiudiziarie.it è parte di Rete Aste Network

Accedi o registrati

Non sei ancora registrato?

Oppure

Accedi

Abitazione di tipo economico

66034 Contrada Re di Coppe CH, Italia, Lanciano (CH)

€ 96.000,00

Offerta minima € 72.000,00


Codice A4317495

Lotto Lotto unico

Data udienza 26/05/2026 ore 11:30

Termine presentazione offerte 25/05/2026 ore 12:00

Abitazione di tipo economico

66034 Contrada Re di Coppe CH, Italia, Lanciano (CH)

€ 96.000,00

Offerta minima € 72.000,00


Codice A4317495

Lotto Lotto unico

Data udienza 26/05/2026 ore 11:30

Termine presentazione offerte 25/05/2026 ore 12:00

Ti interessa questa vendita?

Documentazione

Visualizza su mappa

Mappa geografica del bene

Punti di interesse

Fonte dati

Nel raggio di {{range}}Km

Loading...
  • {{ getIcon(poi.type) }} {{ poi.localized }}: {{poi.count}}
  • {{ getIcon(poi.type) }} {{ poi.localized }}: {{poi.count}}
Dati non disponibili

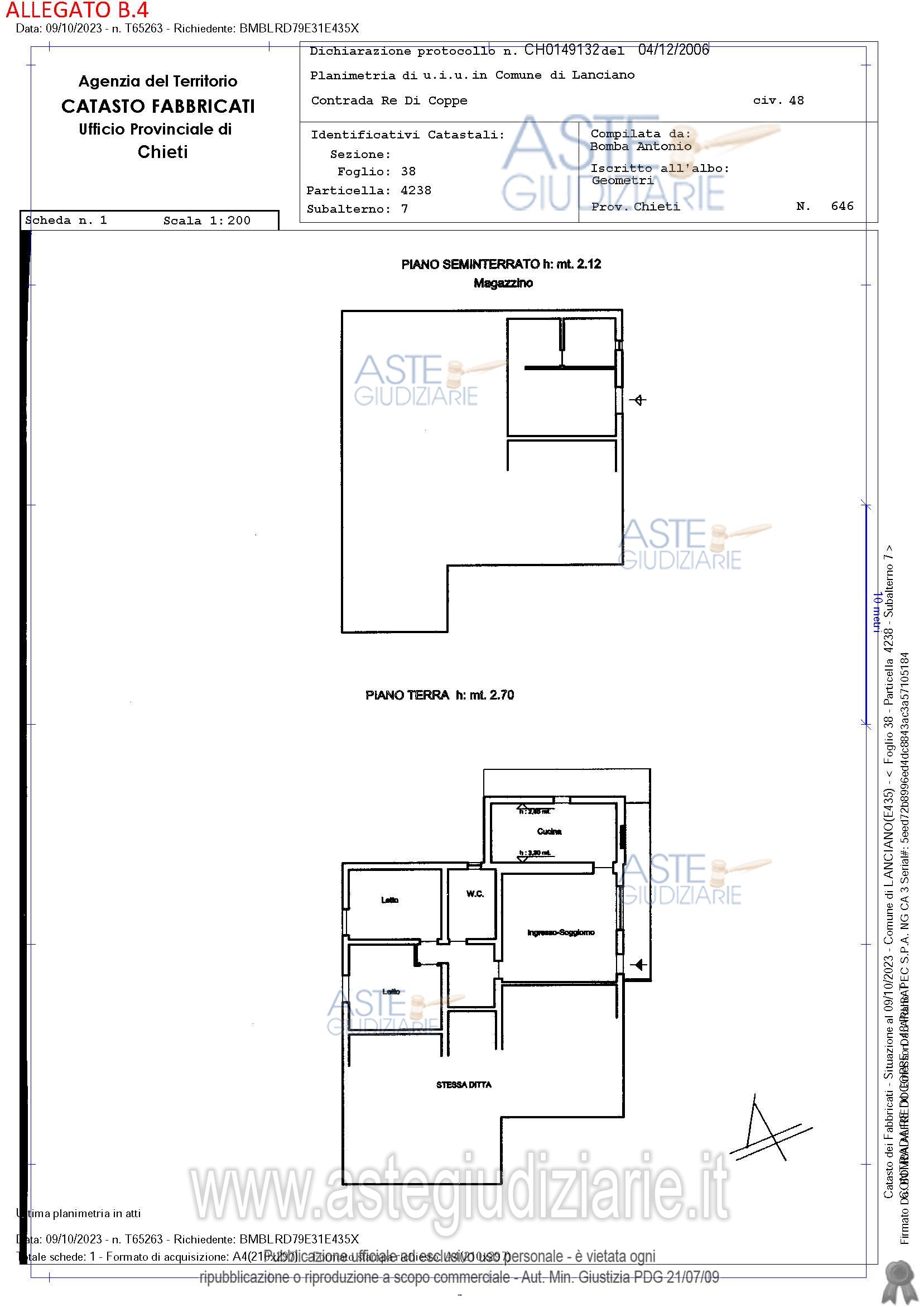
Diritto di piena proprietà appartamento sito al piano terra di un fabbricato con più abitazioni, con annessa corte esclusiva ed un magazzino (piccolo ripostiglio) al piano seminterrato a servizio dell’abitazione, appartamento composto da ingresso direttamente sul soggiorno, cucina e zona notte con due camere da letto, spazio esterno un bagno ed un piccolo wc, collegati al soggiorno da un disimpegno.

Indirizzo
66034 Contrada Re di Coppe CH, Italia, Lanciano (CH)


Codice asta
4317495


Lotto
Lotto unico


Numero beni
1


Genere
Immobili


Categoria
Immobile residenziale


Valore di stima
-


Abitazione di tipo economico

Diritto di piena proprietà appartamento sito al piano terra di un fabbricato con più abitazioni, con annessa corte esclusiva ed un magazzino (piccolo ripostiglio) al piano seminterrato a servizio dell’abitazione, appartamento composto da ingresso direttamente sul soggiorno, cucina e zona notte con due camere da letto, spazio esterno un bagno ed un piccolo wc, collegati al soggiorno da un disimpegno.

Indirizzo
66034 Contrada Re di Coppe CH, Italia, Lanciano (CH)


Piano
-


Disponibilità
-


Vani
6,00


Bagni
-


Metri quadri
111,00


Certificazione energetica
-


Data udienza
26/05/2026 ore 11:30


Tipo di vendita
Senza incanto


Modalità di vendita
Asincrona telematica


Luogo
N.A. -


Luogo presentazione offerte
-


Termine presentazione offerte
25/05/2026 ore 12:00


Prezzo base
€ 96.000,00


Offerta minima
€ 72.000,00


Rialzo minimo in caso di gara
€ 1.000,00


Deposito cauzionale
10% del prezzo offerto


Deposito in conto spese
-


Tribunale
Lanciano

Tipo di procedura
Espropriazione immobiliare (cartabia)

Ruolo
42/2023

Giudice
D'alfonso Chiara

Recapiti
-

Email
-

Delegato alla vendita
Natarella Giuseppe
(Procede alle operazioni di vendita)

Recapiti
Cell. 3386957842

Email
natarellagiuseppe@gmail.com

IVG
Ivg 
(Gestisce la visita del bene)

Recapiti
Cell. 0872715361

Scheda COD. 4317495 - Pubblicata dal 01/04/2026

La presente scheda di vendita riporta integralmente informazioni e documenti pervenuti ufficialmente dal Ministero e dal professionista incaricato.


Pubblicazione autorizzata dall’Autorità competente, è vietata ogni ripubblicazione o riproduzione anche parziale


Ti interessa questa vendita?

Documentazione

Visualizza su mappa

Mappa geografica del bene

Storico delle vendite

Data venditaPrezzo base
11/02/2025€ 126.700,00
16/04/2025€ 96.000,00
11/11/2025€ 96.000,00
26/05/2026€ 96.000,00

Punti di interesse

Fonte dati

Nel raggio di {{range}}Km

Loading...
  • {{ getIcon(poi.type) }} {{ poi.localized }}: {{poi.count}}
  • {{ getIcon(poi.type) }} {{ poi.localized }}: {{poi.count}}
Dati non disponibili