Astegiudiziarie.it è parte di Rete Aste Network

Accedi o registrati

Non sei ancora registrato?

Oppure

Accedi

Abitazione di tipo economico

Via Fontana, 42, 09016 Iglesias SU, Italia, Iglesias (SU)

€ 40.850,00

Offerta minima € 30.637,50


Codice A399157

Lotto Lotto unico

Data udienza 12/05/2026 ore 09:00

Termine presentazione offerte 11/05/2026 ore 13:00

Abitazione di tipo economico

Via Fontana, 42, 09016 Iglesias SU, Italia, Iglesias (SU)

€ 40.850,00

Offerta minima € 30.637,50


Codice A399157

Lotto Lotto unico

Data udienza 12/05/2026 ore 09:00

Termine presentazione offerte 11/05/2026 ore 13:00

Vendita deserta - Prossima presunta vendita il 22/09/2026 ore 09:00

Ti interessa questa vendita?

Visualizza su mappa

Mappa geografica del bene

Punti di interesse

Fonte dati

Nel raggio di {{range}}Km

Loading...
  • {{ getIcon(poi.type) }} {{ poi.localized }}: {{poi.count}}
  • {{ getIcon(poi.type) }} {{ poi.localized }}: {{poi.count}}
Dati non disponibili

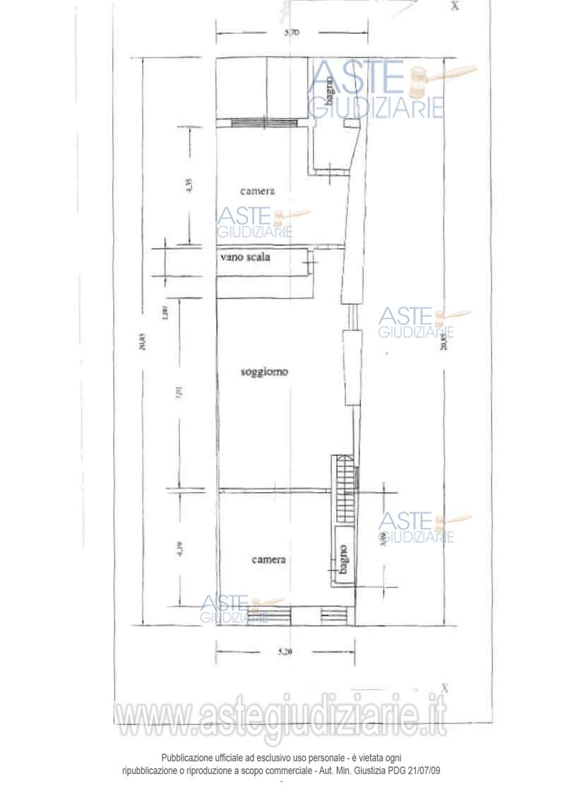
Piena proprietà dell’appartamento per civile abitazione al piano primo del maggior fabbricato con accesso dalla Via Fontana 42 composto da: soggiorno, cucina, due camere, sgabuzzino, bagno, sottotetto.

Indirizzo
Via Fontana, 42, 09016 Iglesias SU, Italia, Iglesias (SU)


Codice asta
399157


Lotto
Lotto unico


Numero beni
1


Genere
Immobili


Categoria
Immobile residenziale


Valore di stima
-


Abitazione di tipo economico

Piena proprietà dell’appartamento per civile abitazione al piano primo del maggior fabbricato con accesso dalla Via Fontana 42 composto da: soggiorno, cucina, due camere, sgabuzzino, bagno, sottotetto.

Indirizzo
Via Fontana 42, Iglesias (CI)


Piano
-


Disponibilità
-


Vani
6,00


Bagni
-


Metri quadri
120,00


Certificazione energetica
-


Data udienza
12/05/2026 ore 09:00


Tipo di vendita
Senza incanto


Modalità di vendita
Asincrona telematica


Luogo
N.A. -


Luogo presentazione offerte
-


Termine presentazione offerte
11/05/2026 ore 13:00


Prezzo base
€ 40.850,00


Offerta minima
€ 30.637,50


Rialzo minimo in caso di gara
€ 2.000,00


Deposito cauzionale
5.000


Deposito in conto spese
-


Tribunale
Cagliari

Tipo di procedura
Esecuzione immobiliare post legge 80

Ruolo
7/2014

Giudice
Frongia Valentina

Recapiti
-

Email
-

Delegato alla vendita
Grilletti Giuditta
(Procede alle operazioni di vendita)

Recapiti
Tel. 07060222574

Email
ufficiouniconotai@pec.it

Scheda COD. 399157 - Pubblicata dal 20/03/2026

La presente scheda di vendita riporta integralmente informazioni e documenti pervenuti ufficialmente dal Ministero e dal professionista incaricato.

Pubblicazione notarizzata su Blockchain


Pubblicazione autorizzata dall’Autorità competente, è vietata ogni ripubblicazione o riproduzione anche parziale


Ti interessa questa vendita?

Visualizza su mappa

Mappa geografica del bene

Storico delle vendite

Data venditaPrezzo base
28/11/2017€ 111.000,00
27/04/2018€ 88.800,00
01/02/2019€ 80.000,00
15/11/2019€ 72.000,00
19/05/2023€ 64.800,00
24/11/2023€ 58.400,00
12/04/2024€ 52.600,00
27/09/2024€ 50.000,00
24/01/2025€ 47.500,00
16/05/2025€ 45.200,00
21/11/2025€ 43.000,00
12/05/2026€ 40.850,00

Punti di interesse

Fonte dati

Nel raggio di {{range}}Km

Loading...
  • {{ getIcon(poi.type) }} {{ poi.localized }}: {{poi.count}}
  • {{ getIcon(poi.type) }} {{ poi.localized }}: {{poi.count}}
Dati non disponibili