Astegiudiziarie.it è parte di Rete Aste Network

Accedi o registrati

Non sei ancora registrato?

Oppure

Accedi

Abitazione di tipo popolare

Via Gramsci 26, Guspini (VS)

€ 30.000,00

Offerta minima € 22.500,00


Codice A399235

Lotto 2

Data udienza 16/06/2026 ore 09:00

Termine presentazione offerte 15/06/2026 ore 13:00

Abitazione di tipo popolare

Via Gramsci 26, Guspini (VS)

€ 30.000,00

Offerta minima € 22.500,00


Codice A399235

Lotto 2

Data udienza 16/06/2026 ore 09:00

Termine presentazione offerte 15/06/2026 ore 13:00

Ti interessa questa vendita?

Visualizza su mappa

Mappa geografica del bene

Punti di interesse

Fonte dati

Nel raggio di {{range}}Km

Loading...
  • {{ getIcon(poi.type) }} {{ poi.localized }}: {{poi.count}}
  • {{ getIcon(poi.type) }} {{ poi.localized }}: {{poi.count}}
Dati non disponibili

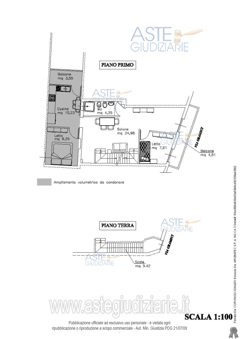
Piena proprietà dell’appartamento per civile abitazione su due livelli, con accesso dalla Via Gramsci 26, composto al piano primo da salone, bagno, cucina, due camere e al piano sottotetto da una camera, locale di sgombero e bagno.

Indirizzo
Via Gramsci 26, Guspini (VS)


Codice asta
399235


Lotto
2


Numero beni
1


Genere
Immobili


Categoria
Immobile residenziale


Valore di stima
-


Abitazione di tipo popolare

Piena proprietà dell’appartamento per civile abitazione su due livelli, composto al piano primo da salone, bagno, cucina, due camere e al piano sottotetto da una camera, locale di sgombero e bagno.

Indirizzo
Via Gramsci 26, Guspini (VS)


Piano
-


Disponibilità
Occupato


Vani
5,50


Bagni
-


Metri quadri
110,00


Certificazione energetica
-


Data udienza
16/06/2026 ore 09:00


Tipo di vendita
Senza incanto


Modalità di vendita
Asincrona telematica


Luogo
N.A. -


Luogo presentazione offerte
-


Termine presentazione offerte
15/06/2026 ore 13:00


Prezzo base
€ 30.000,00


Offerta minima
€ 22.500,00


Rialzo minimo in caso di gara
€ 1.500,00


Deposito cauzionale
2.500,00


Deposito in conto spese
-


Tribunale
Cagliari

Tipo di procedura
Esecuzione immobiliari

Ruolo
59/1998

Giudice
Frongia Valentina

Recapiti
-

Email
-

Delegato alla vendita
Vadilonga Massimiliano
(Procede alle operazioni di vendita)

Recapiti
Tel. 07060222574

Email
ufficiouniconotai@pec.it

Scheda COD. 399235 - Pubblicata dal 20/04/2026

La presente scheda di vendita riporta integralmente informazioni e documenti pervenuti ufficialmente dal Ministero e dal professionista incaricato.

Pubblicazione notarizzata su Blockchain


Pubblicazione autorizzata dall’Autorità competente, è vietata ogni ripubblicazione o riproduzione anche parziale


Ti interessa questa vendita?

Visualizza su mappa

Mappa geografica del bene

Storico delle vendite

Data venditaPrezzo base
08/11/2017€ 90.000,00
18/04/2018€ 72.000,00
27/03/2019€ 64.800,00
06/11/2019€ 58.400,00
21/09/2022€ 52.600,00
25/01/2023€ 47.400,00
17/05/2023€ 42.700,00
29/11/2023€ 40.600,00
17/04/2024€ 38.600,00
25/09/2024€ 36.700,00
22/01/2025€ 34.900,00
25/06/2025€ 33.200,00
26/11/2025€ 31.600,00
16/06/2026€ 30.000,00

Punti di interesse

Fonte dati

Nel raggio di {{range}}Km

Loading...
  • {{ getIcon(poi.type) }} {{ poi.localized }}: {{poi.count}}
  • {{ getIcon(poi.type) }} {{ poi.localized }}: {{poi.count}}
Dati non disponibili