Accedi o registrati
Oppure
Accedi
VIA ORISTANO N. 5, Gonnosfanadiga (SU)
Offerta minima € 34.884,00
Codice A4307702
Lotto Lotto unico
Data udienza 17/12/2025 ore 17:00
Termine presentazione offerte 16/12/2025 ore 17:00
VIA ORISTANO N. 5, Gonnosfanadiga (SU)
Offerta minima € 34.884,00
Codice A4307702
Lotto Lotto unico
Data udienza 17/12/2025 ore 17:00
Termine presentazione offerte 16/12/2025 ore 17:00
                Nel raggio di {{range}}Km
                
                
            
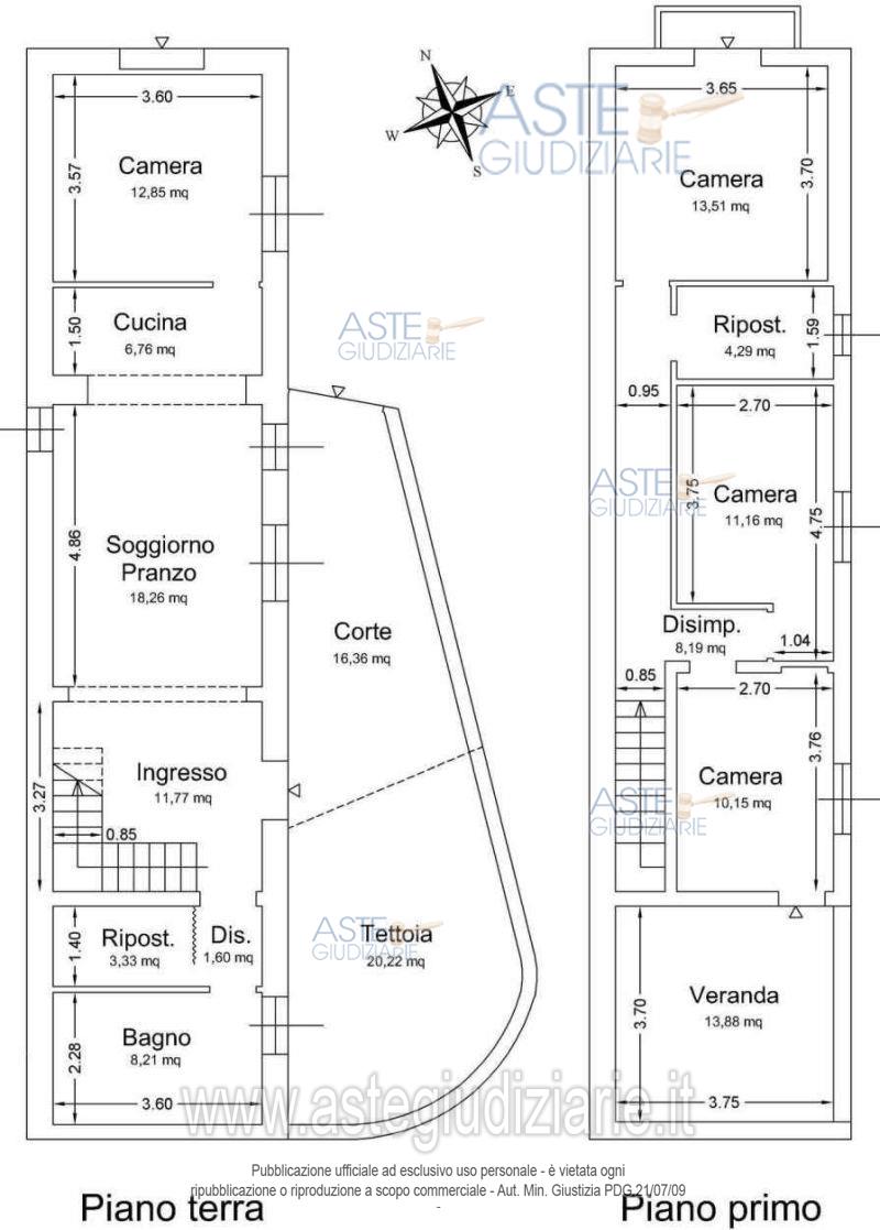
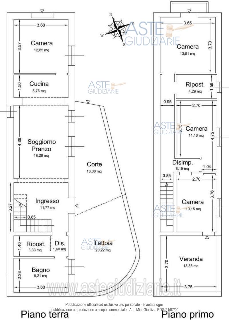
Quota pari a 1/1 del diritto di proprietà in Comune di Gonnosfanadiga in via Oristano n.5, distinta al NCEU al Foglio 2 Sezione F Mappale 2076 Subalterno 3 (categoria A/4, classe 2, vani 8.5, superficie catastale 171 mq)
                                Indirizzo
                                
                                    VIA ORISTANO N. 5,
                                Gonnosfanadiga (SU)
                            
                                Codice asta
                                
                                4307702
                            
                                Lotto
                                
                                Lotto unico
                            
                                Numero beni
                                
                                1
                            
                                Genere
                                
                                Immobili
                            
                                Categoria
                                
                                Immobile residenziale
                            
                                    Valore di stima
                                
                                -
                            
Abitazione di tipo popolare
Quota pari a 1/1 del diritto di proprietà in Comune di Gonnosfanadiga in via Oristano n.5, distinta al NCEU al Foglio 2 Sezione F Mappale 2076 Subalterno 3 (categoria A/4, classe 2, vani 8.5, superficie catastale 171 mq), e si sviluppa su un piano terra destinato a zona giorno (ingresso con scala, soggiorno-pranzo, cucina, camera, disimpegno, ripostiglio, bagno, corte e tettoia) e un piano primo destinato alla zona notte (tre camere, disimpegno, ripostiglio, balcone e veranda coperta), connessi mediante scala interna.
                    Indirizzo
                    
                        VIA ORISTANO N. 5,
                    Gonnosfanadiga (SU)
                    
                    
                    
                    
                    
                
                    Piano
                    
                    -
                
                    Disponibilità
                    
                        OCCUP
                
                    Vani
                    
                        8,50
                
                    Bagni
                    
                    -
                
                    Metri quadri
                    
                        171,00
                
                    Certificazione energetica
                    
                    -
                
                        Dati catastali
                        
                                
Data udienza                                
                                
                                17/12/2025 ore 17:00
                            
                                Tipo di vendita
                                
                                Senza incanto
                            
                                Modalità di vendita
                                
                                    Asincrona telematica
                            
                                Luogo
                                
                                N.A.
                                - 
                                
                                
                                
                                
                                
                            
                                Luogo presentazione offerte
                                
                                -
                            
                                Termine presentazione offerte
                                
                                16/12/2025 ore 17:00
                            
                                    Prezzo base
                                
                                € 46.512,00
                            
                                Offerta minima
                                
                                € 34.884,00
                            
                                Rialzo minimo in caso di gara
                                
                                € 1.000,00
                            
                                Deposito cauzionale
                                
                                5.000
                            
                                Deposito in conto spese
                                
                                -
                            
                                    Giudice
                                    
                                    Frongia Valentina 
                                                                    
                                    Recapiti
                                    
                                    -
                                
                                    Email
                                    
                                        -
                                
                                    Delegato alla vendita
                                    
                                    Grauso Gaia
                                        
(Procede alle operazioni di vendita)
                                                                    
                                    Recapiti
                                    
                                    Tel. 070669566
                                
                                    Email
                                    
                                                -
                                
                                    Custode giudiziario
                                    
                                    Ivg cagliari 
                                                                            
(Gestisce la visita del bene)
                                
                                    Recapiti
                                    
                                    Tel. 0702299036
                                
Scheda COD. 4307702 - Pubblicata dal 27/10/2025
La presente scheda di vendita riporta integralmente informazioni e documenti pervenuti ufficialmente dal Ministero e dal professionista incaricato.
Pubblicazione autorizzata dall’Autorità competente, è vietata ogni ripubblicazione o riproduzione anche parziale
| Data vendita | Prezzo base | 
| 08/10/2024 | € 95.000,00 | 
| 30/01/2025 | € 76.000,00 | 
| 28/05/2025 | € 60.800,00 | 
| 09/09/2025 | € 51.680,00 | 
| 17/12/2025 | € 46.512,00 | 
                Nel raggio di {{range}}Km