Astegiudiziarie.it è parte di Rete Aste Network

Accedi o registrati

Non sei ancora registrato?

Oppure

Accedi

Abitazione di tipo civile

Via Sacerdote Angelo Rocca, SNC, Giarre (CT)

€ 103.000,00

Offerta minima € 77.250,00


Codice A4337960

Lotto Lotto unico

Data udienza 23/01/2026 ore 09:30

Termine presentazione offerte 22/01/2026 ore 13:00

Abitazione di tipo civile

Via Sacerdote Angelo Rocca, SNC, Giarre (CT)

€ 103.000,00

Offerta minima € 77.250,00


Codice A4337960

Lotto Lotto unico

Data udienza 23/01/2026 ore 09:30

Termine presentazione offerte 22/01/2026 ore 13:00

Ti interessa questa vendita?

Documentazione

Visualizza su mappa

Mappa geografica del bene

Punti di interesse

Fonte dati

Nel raggio di {{range}}Km

Loading...
  • {{ getIcon(poi.type) }} {{ poi.localized }}: {{poi.count}}
  • {{ getIcon(poi.type) }} {{ poi.localized }}: {{poi.count}}
Dati non disponibili

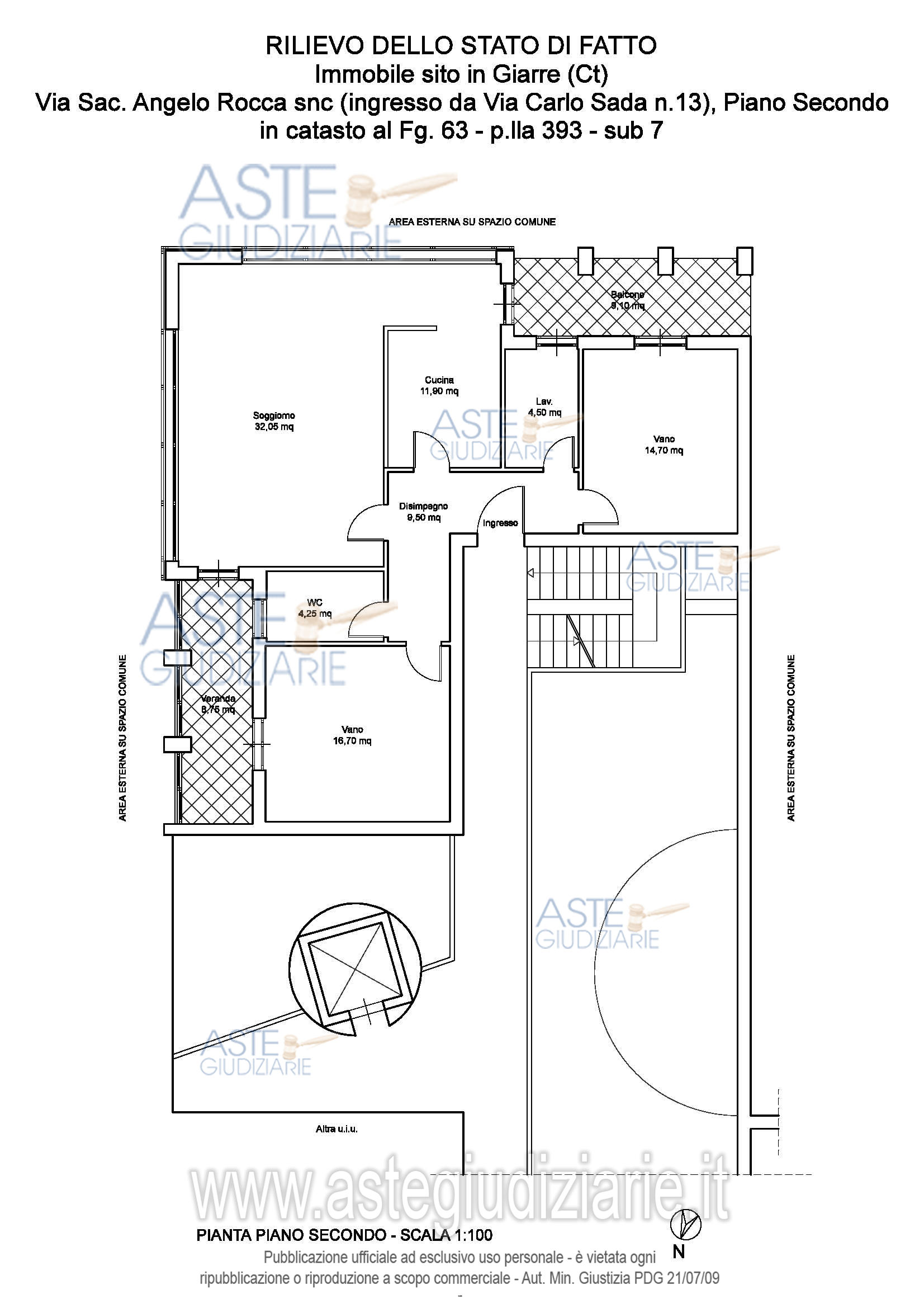
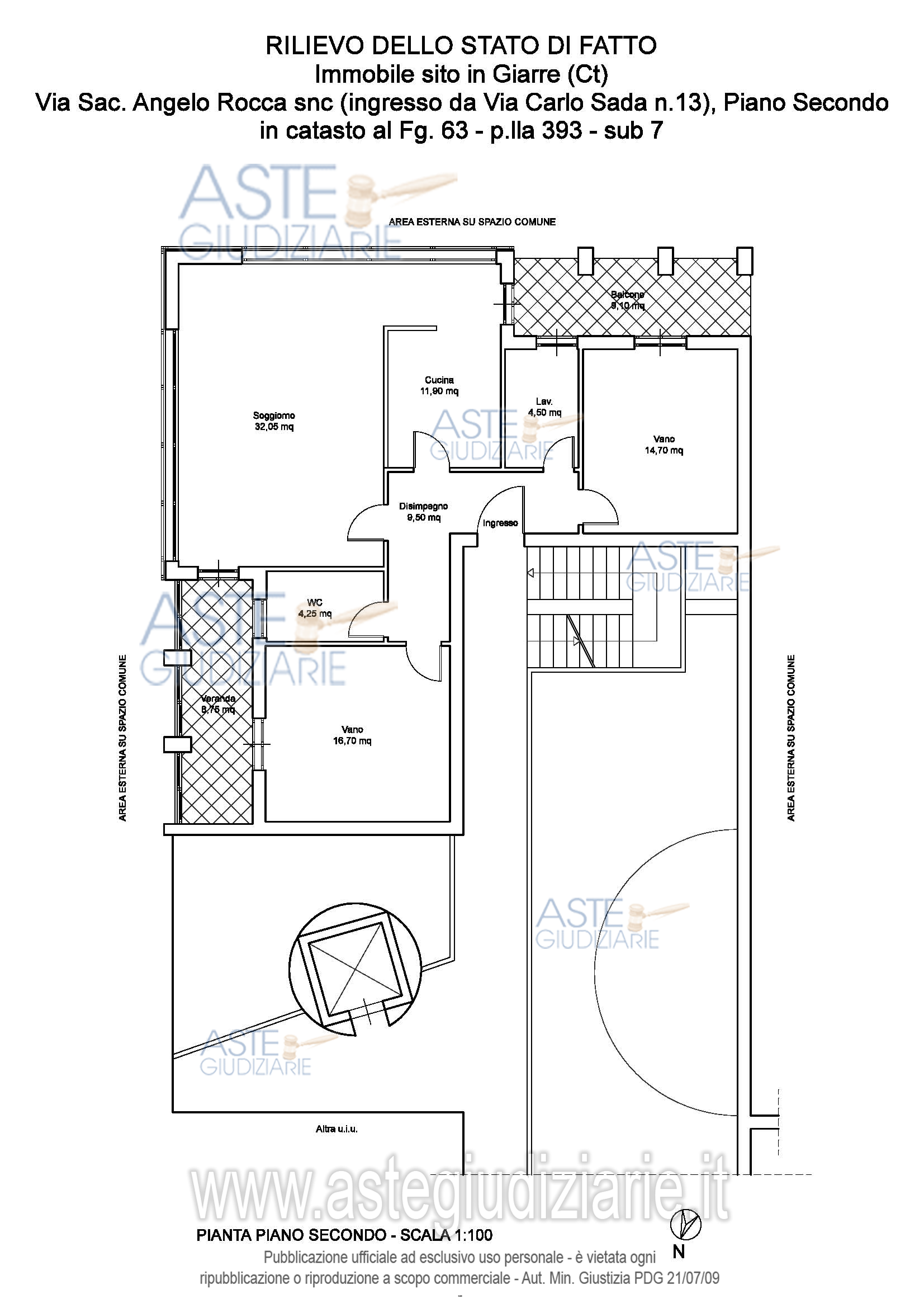
Lotto unico composto da appartamento al piano secondo di vani 4,5 e garage al piano primo sottostrada di circa 18 metri quadrati.

Indirizzo
Via Sacerdote Angelo Rocca, SNC, Giarre (CT)


Codice asta
4337960


Lotto
Lotto unico


Numero beni
1


Genere
Immobili


Categoria
Immobile residenziale


Valore di stima
-


Abitazione di tipo civile

Lotto unico composto da appartamento al piano secondo di vani 4,5 e garage al piano primo sottostrada di circa 18 metri quadrati.

Indirizzo
Via Sacerdote Angelo Rocca, snc, Giarre (CT)


Piano
2


Disponibilità
OCCUPATO


Vani
4,50


Bagni
2


Metri quadri
96,00


Certificazione energetica
-


Data udienza
23/01/2026 ore 09:30


Tipo di vendita
Senza incanto


Modalità di vendita
Sincrona telematica


Luogo
N.A. -


Luogo presentazione offerte
-


Termine presentazione offerte
22/01/2026 ore 13:00


Prezzo base
€ 103.000,00


Offerta minima
€ 77.250,00


Rialzo minimo in caso di gara
€ 1.800,00


Deposito cauzionale
10% del prezzo offerto


Deposito in conto spese
-


Tribunale
Catania

Tipo di procedura
Esecuzione immobiliare post legge 80

Ruolo
498/2018

Giudice
Mangiameli Nelly gaia

Recapiti
-

Email
-

Delegato alla vendita
Grasso Alfio
(Procede alle operazioni di vendita)
(Gestisce la visita del bene)

Recapiti
-

Scheda COD. 4337960 - Pubblicata dal 29/10/2025

La presente scheda di vendita riporta integralmente informazioni e documenti pervenuti ufficialmente dal Ministero e dal professionista incaricato.

Pubblicazione notarizzata su Blockchain


Pubblicazione autorizzata dall’Autorità competente, è vietata ogni ripubblicazione o riproduzione anche parziale


Ti interessa questa vendita?

Documentazione

Visualizza su mappa

Mappa geografica del bene

Punti di interesse

Fonte dati

Nel raggio di {{range}}Km

Loading...
  • {{ getIcon(poi.type) }} {{ poi.localized }}: {{poi.count}}
  • {{ getIcon(poi.type) }} {{ poi.localized }}: {{poi.count}}
Dati non disponibili