Astegiudiziarie.it è parte di Rete Aste Network

Accedi o registrati

Non sei ancora registrato?

Oppure

Accedi

Abitazione di tipo civile

Via Antonio Cantore, 29, 16149 Genova GE, Italia, Genova (GE)

€ 135.540,60

Offerta minima € 101.655,45


Codice A4343317

Lotto Lotto unico

Data udienza 25/03/2026 ore 14:30

Termine presentazione offerte 23/03/2026 ore 12:00

Abitazione di tipo civile

Via Antonio Cantore, 29, 16149 Genova GE, Italia, Genova (GE)

€ 135.540,60

Offerta minima € 101.655,45


Codice A4343317

Lotto Lotto unico

Data udienza 25/03/2026 ore 14:30

Termine presentazione offerte 23/03/2026 ore 12:00

Ti interessa questa vendita?

Documentazione

Visualizza su mappa

Mappa geografica del bene

Punti di interesse

Fonte dati

Nel raggio di {{range}}Km

Loading...
  • {{ getIcon(poi.type) }} {{ poi.localized }}: {{poi.count}}
  • {{ getIcon(poi.type) }} {{ poi.localized }}: {{poi.count}}
Dati non disponibili

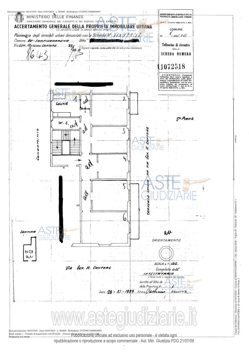
Piena ed intera proprietà dell'appartamento ubicato a Genova VIA ANTONIO CANTORE n. 29, scala B, interno 10, piano 5. Abitazione di tipo civile di 122 mq netti (commerciali141 mq) composta da un ingresso, soggiorno, camera matrimoniale, sala, una camera/studio, cucina, due bagni, ripostiglio e due balconi. Annessa come pertinenza una cantina, contraddistinta con n. 8 superficie netta di circa 3,75 mq

Indirizzo
Via Antonio Cantore, 29, 16149 Genova GE, Italia, Genova (GE)


Codice asta
4343317


Lotto
Lotto unico


Numero beni
1


Genere
Immobili


Categoria
Immobile residenziale


Valore di stima
-


Abitazione di tipo civile

Piena ed intera proprietà dell'appartamento ubicato a Genova VIA ANTONIO CANTORE n. 29, scala B, interno 10, piano 5. Abitazione di tipo civile di 122 mq netti (commerciali141 mq) composta da un ingresso, soggiorno, camera matrimoniale, sala, una camera/studio, cucina, due bagni, ripostiglio e due balconi. Annessa come pertinenza una cantina, contraddistinta con il n. 8 superficie netta di circa 3,75 mq

Indirizzo
Via Antonio Cantore, 29, 16149 Genova GE, Italia, Genova (GE)


Piano
-


Disponibilità
-


Vani
8,00


Bagni
-


Metri quadri
143,00


Certificazione energetica
-


Data udienza
25/03/2026 ore 14:30


Tipo di vendita
Senza incanto


Modalità di vendita
Sincrona mista


Luogo
Piazza Portoria, 1 (Tribunale di Genova Aula 46, 3 piano) - Genova 16121


Luogo presentazione offerte
-


Termine presentazione offerte
23/03/2026 ore 12:00


Prezzo base
€ 135.540,60


Offerta minima
€ 101.655,45


Rialzo minimo in caso di gara
€ 1.000,00


Deposito cauzionale
10% del prezzo offerto


Deposito in conto spese
-


Tribunale
Genova

Tipo di procedura
Espropriazione immobiliare (cartabia)

Ruolo
191/2025

Delegato alla vendita
Bargelli Elisabetta
(Procede alle operazioni di vendita)

Recapiti
Tel. 010589081

Email
elisabetta.bargelli@bureauplat...

Custode giudiziario
Sovemo srl 
(Gestisce la visita del bene)

Recapiti
Tel. 0105299253

Scheda COD. 4343317 - Pubblicata dal 03/02/2026

La presente scheda di vendita riporta integralmente informazioni e documenti pervenuti ufficialmente dal Ministero e dal professionista incaricato.


Pubblicazione autorizzata dall’Autorità competente, è vietata ogni ripubblicazione o riproduzione anche parziale


Ti interessa questa vendita?

Documentazione

Visualizza su mappa

Mappa geografica del bene

Punti di interesse

Fonte dati

Nel raggio di {{range}}Km

Loading...
  • {{ getIcon(poi.type) }} {{ poi.localized }}: {{poi.count}}
  • {{ getIcon(poi.type) }} {{ poi.localized }}: {{poi.count}}
Dati non disponibili