Astegiudiziarie.it è parte di Rete Aste Network

Accedi o registrati

Non sei ancora registrato?

Oppure

Accedi

Abitazione di tipo economico

Via Convento, 22, Genoni (SU)

€ 25.200,00

Offerta minima € 18.900,00


Codice A174549

Lotto 1

Data udienza 24/03/2026 ore 10:00

Termine presentazione offerte 23/03/2026 ore 10:00

Abitazione di tipo economico

Via Convento, 22, Genoni (SU)

€ 25.200,00

Offerta minima € 18.900,00


Codice A174549

Lotto 1

Data udienza 24/03/2026 ore 10:00

Termine presentazione offerte 23/03/2026 ore 10:00

Ti interessa questa vendita?

Visualizza su mappa

Mappa geografica del bene

Punti di interesse

Fonte dati

Nel raggio di {{range}}Km

Loading...
  • {{ getIcon(poi.type) }} {{ poi.localized }}: {{poi.count}}
  • {{ getIcon(poi.type) }} {{ poi.localized }}: {{poi.count}}
Dati non disponibili

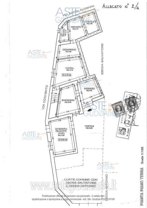
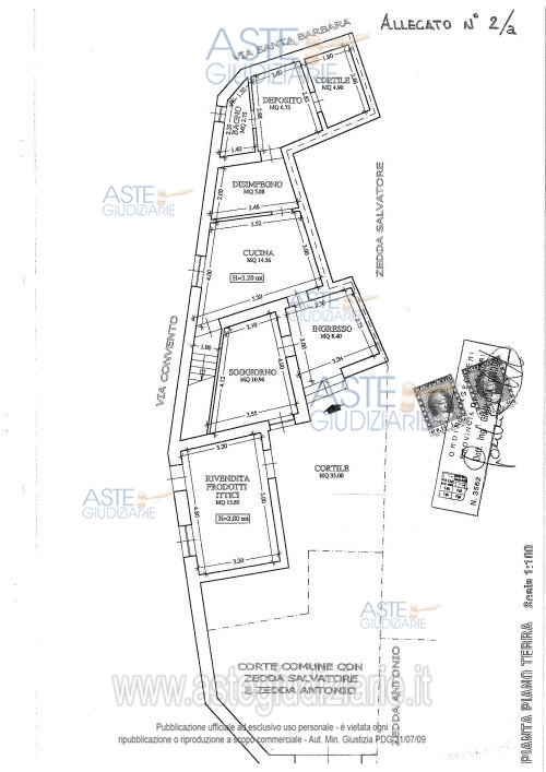
Quota pari a 1/1 del diritto di proprietà sull'immobile censito al Catasto Fabbricati del Comune di Genoni (SU), al foglio 15, particella 46, nella via Convento n. 22, Piani T-1, Cat. A/4 Classe U, consistenza 5 vani, superficie mq 170,23, rendita catastale euro 167,85

Indirizzo
Via Convento, 22, Genoni (SU)


Codice asta
174549


Lotto
1


Numero beni
1


Genere
Immobili


Categoria
Immobile residenziale


Valore di stima
-


Abitazione di tipo economico

Quota pari a 1/1 del diritto di proprietà sull'immobile censito al Catasto Fabbricati del Comune di Genoni (SU), al foglio 15, particella 46, nella via Convento n. 22, Piani T-1, Cat. A/4 Classe U, consistenza 5 vani, superficie mq 170,23, rendita catastale euro 167,85

Indirizzo
Via Convento, 22, Genoni (SU)


Piano
-


Disponibilità
Libero


Vani
5,00


Bagni
-


Metri quadri
170,23


Certificazione energetica
-


Dati catastali

Foglio:15, Particella:46, Subalterno:1


Data udienza
24/03/2026 ore 10:00


Tipo di vendita
Senza incanto


Modalità di vendita
Asincrona telematica


Luogo
N.A. -


Luogo presentazione offerte
-


Termine presentazione offerte
23/03/2026 ore 10:00


Prezzo base
€ 25.200,00


Offerta minima
€ 18.900,00


Rialzo minimo in caso di gara
€ 1.300,00


Deposito cauzionale
2500


Deposito in conto spese
-


Tribunale
Cagliari

Tipo di procedura
Esecuzione immobiliari

Ruolo
312/1998

Giudice
Cocco Silvia

Recapiti
-

Email
-

Delegato alla vendita
Marongiu Giuseppe
(Procede alle operazioni di vendita)

Recapiti
Tel. 0704560865

Email
studio@studiomarongiu.it

Custode giudiziario
Fresi Lino icilio felice
(Gestisce la visita del bene)

Recapiti
Tel. 0702299036

Scheda COD. 174549 - Pubblicata dal 29/01/2026

La presente scheda di vendita riporta integralmente informazioni e documenti pervenuti ufficialmente dal Ministero e dal professionista incaricato.

Pubblicazione notarizzata su Blockchain


Pubblicazione autorizzata dall’Autorità competente, è vietata ogni ripubblicazione o riproduzione anche parziale


Ti interessa questa vendita?

Visualizza su mappa

Mappa geografica del bene

Storico delle vendite

Data venditaPrezzo base
15/11/2011€ 68.000,00
06/12/2018€ 144.158,00
19/06/2019€ 129.742,56
11/12/2019€ 116.768,00
21/09/2020€ 105.091,00
21/04/2021€ 94.582,00
04/11/2021€ 89.852,90
20/01/2022€ 85.360,25
28/04/2022€ 81.092,24
21/06/2023€ 77.000,00
20/03/2024€ 61.600,00
05/12/2024€ 49.300,00
13/05/2025€ 39.400,00
30/09/2025€ 31.500,00
24/03/2026€ 25.200,00

Punti di interesse

Fonte dati

Nel raggio di {{range}}Km

Loading...
  • {{ getIcon(poi.type) }} {{ poi.localized }}: {{poi.count}}
  • {{ getIcon(poi.type) }} {{ poi.localized }}: {{poi.count}}
Dati non disponibili