Astegiudiziarie.it è parte di Rete Aste Network

Accedi o registrati

Non sei ancora registrato?

Oppure

Accedi

Appartamento, garage o autorimessa

Via L. Bollino, 4A, 10090 Gassino Torinese TO, Italia, Gassino Torinese (TO)

€ 161.000,00

Offerta minima € 120.750,00


Codice A4347316

Lotto 2

Data udienza 20/05/2026 ore 09:30

Termine presentazione offerte 19/05/2026 ore 12:30

Appartamento, garage o autorimessa

Via L. Bollino, 4A, 10090 Gassino Torinese TO, Italia, Gassino Torinese (TO)

€ 161.000,00

Offerta minima € 120.750,00


Codice A4347316

Lotto 2

Data udienza 20/05/2026 ore 09:30

Termine presentazione offerte 19/05/2026 ore 12:30

Ti interessa questa vendita?

Documentazione

Visualizza su mappa

Mappa geografica del bene

Punti di interesse

Fonte dati

Nel raggio di {{range}}Km

Loading...
  • {{ getIcon(poi.type) }} {{ poi.localized }}: {{poi.count}}
  • {{ getIcon(poi.type) }} {{ poi.localized }}: {{poi.count}}
Dati non disponibili

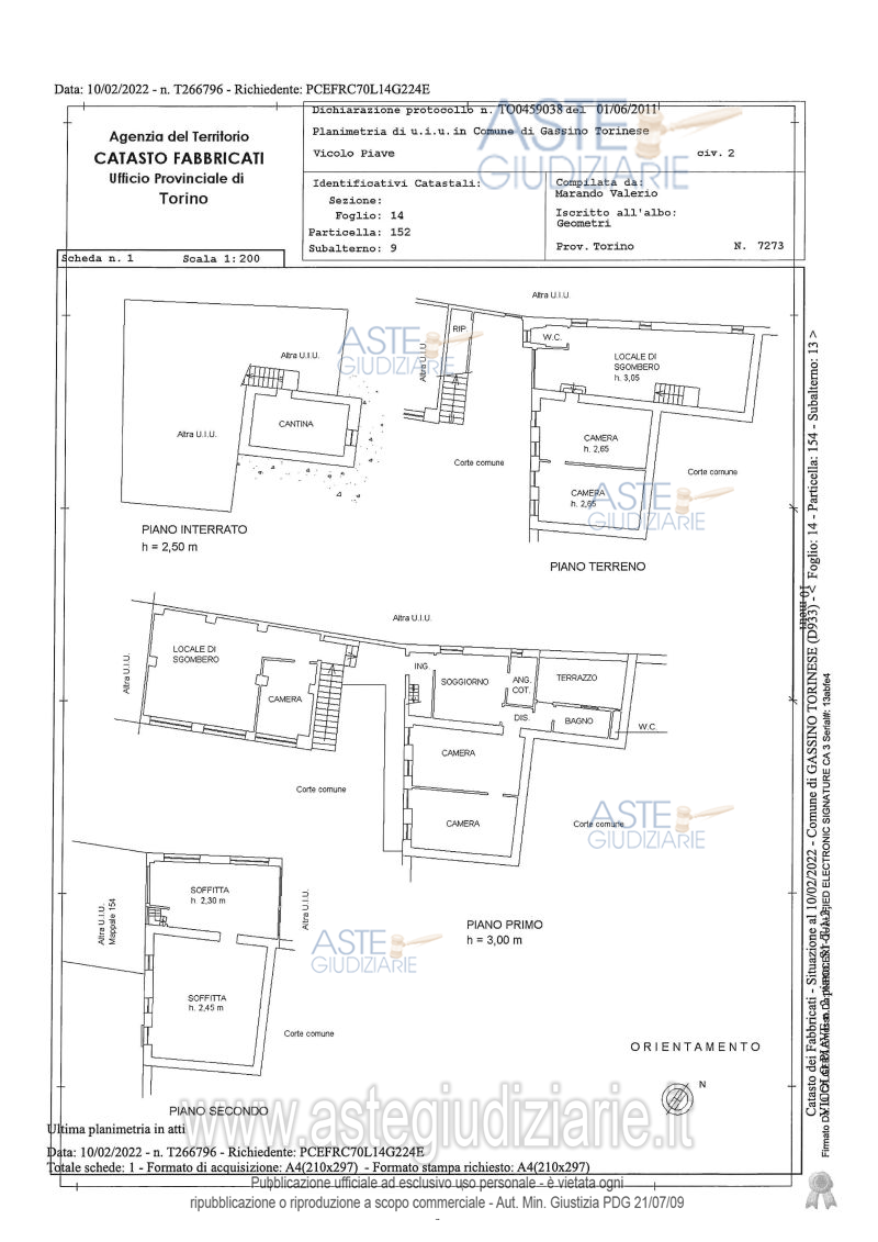
Bene 1: autorimessa al piano terreno ubicata in Vicolo Piave n. 2.Bene 2: abitazione al piano primo ubicata in Via Bollino n. 4.

Indirizzo
Via L. Bollino, 4A, 10090 Gassino Torinese TO, Italia, Gassino Torinese (TO)


Codice asta
4347316


Lotto
2


Numero beni
2


Genere
Immobili


Categoria
Immobile residenziale


Valore di stima
-


Appartamento

- Bene 2: ABITAZIONE ubicata in Via Bollino n. 4, trattasi di edificio su più livelli, sostanzialmente suddivisi in attività commerciale al piano terra e abitazione al piano primo.

Indirizzo
Via L. Bollino, 4, 10090 Gassino Torinese TO, Italia, Gassino Torinese (TO)


Piano
-


Disponibilità
-


Vani
8,00


Bagni
-


Metri quadri
199,69


Certificazione energetica
-


Garage o autorimessa

Bene 1: AUTORIMESSA ubicata in Vicolo Piave n. 2, trattasi di box auto al piano terreno.

Indirizzo
Vicolo Piave, 2, 10090 Gassino Torinese TO, Italia, Gassino Torinese (TO)


Piano
-


Disponibilità
-


Vani
-


Bagni
-


Metri quadri
13,00


Certificazione energetica
-


Data udienza
20/05/2026 ore 09:30


Tipo di vendita
Senza incanto


Modalità di vendita
Asincrona telematica


Luogo
N.A. -


Luogo presentazione offerte
-


Termine presentazione offerte
19/05/2026 ore 12:30


Prezzo base
€ 161.000,00


Offerta minima
€ 120.750,00


Rialzo minimo in caso di gara
€ 3.000,00


Deposito cauzionale
10% del prezzo offerto


Deposito in conto spese
-


Tribunale
Ivrea

Tipo di procedura
Contenzioso civile

Ruolo
2385/2024

Giudice
Salustri Augusto

Recapiti
-

Email
-

Delegato alla vendita
Sconza Antonio
(Procede alle operazioni di vendita)

Recapiti
Tel. 0125282417

Email
antonio.sconza@outlook.it

Custode giudiziario
Torino ifir piemonte 
(Gestisce la visita del bene)

Recapiti
-

Scheda COD. 4347316 - Pubblicata dal 16/03/2026

La presente scheda di vendita riporta integralmente informazioni e documenti pervenuti ufficialmente dal Ministero e dal professionista incaricato.

Pubblicazione notarizzata su Blockchain


Pubblicazione autorizzata dall’Autorità competente, è vietata ogni ripubblicazione o riproduzione anche parziale


Ti interessa questa vendita?

Documentazione

Visualizza su mappa

Mappa geografica del bene

Punti di interesse

Fonte dati

Nel raggio di {{range}}Km

Loading...
  • {{ getIcon(poi.type) }} {{ poi.localized }}: {{poi.count}}
  • {{ getIcon(poi.type) }} {{ poi.localized }}: {{poi.count}}
Dati non disponibili