Astegiudiziarie.it è parte di Rete Aste Network

Accedi o registrati

Non sei ancora registrato?

Oppure

Accedi

Abitazione di tipo civile

Via Camillo Benso Cavour, 2, 15040 Frassineto Po AL, Italia, Frassineto Po (AL)

€ 80.825,00

Offerta minima € 60.618,75


Codice A4329400

Lotto 2

Data udienza 14/05/2026 ore 15:30

Termine presentazione offerte 13/05/2026 ore 12:00

Abitazione di tipo civile

Via Camillo Benso Cavour, 2, 15040 Frassineto Po AL, Italia, Frassineto Po (AL)

€ 80.825,00

Offerta minima € 60.618,75


Codice A4329400

Lotto 2

Data udienza 14/05/2026 ore 15:30

Termine presentazione offerte 13/05/2026 ore 12:00

Ti interessa questa vendita?

Documentazione

Visualizza su mappa

Mappa geografica del bene

Punti di interesse

Fonte dati

Nel raggio di {{range}}Km

Loading...
  • {{ getIcon(poi.type) }} {{ poi.localized }}: {{poi.count}}
  • {{ getIcon(poi.type) }} {{ poi.localized }}: {{poi.count}}
Dati non disponibili

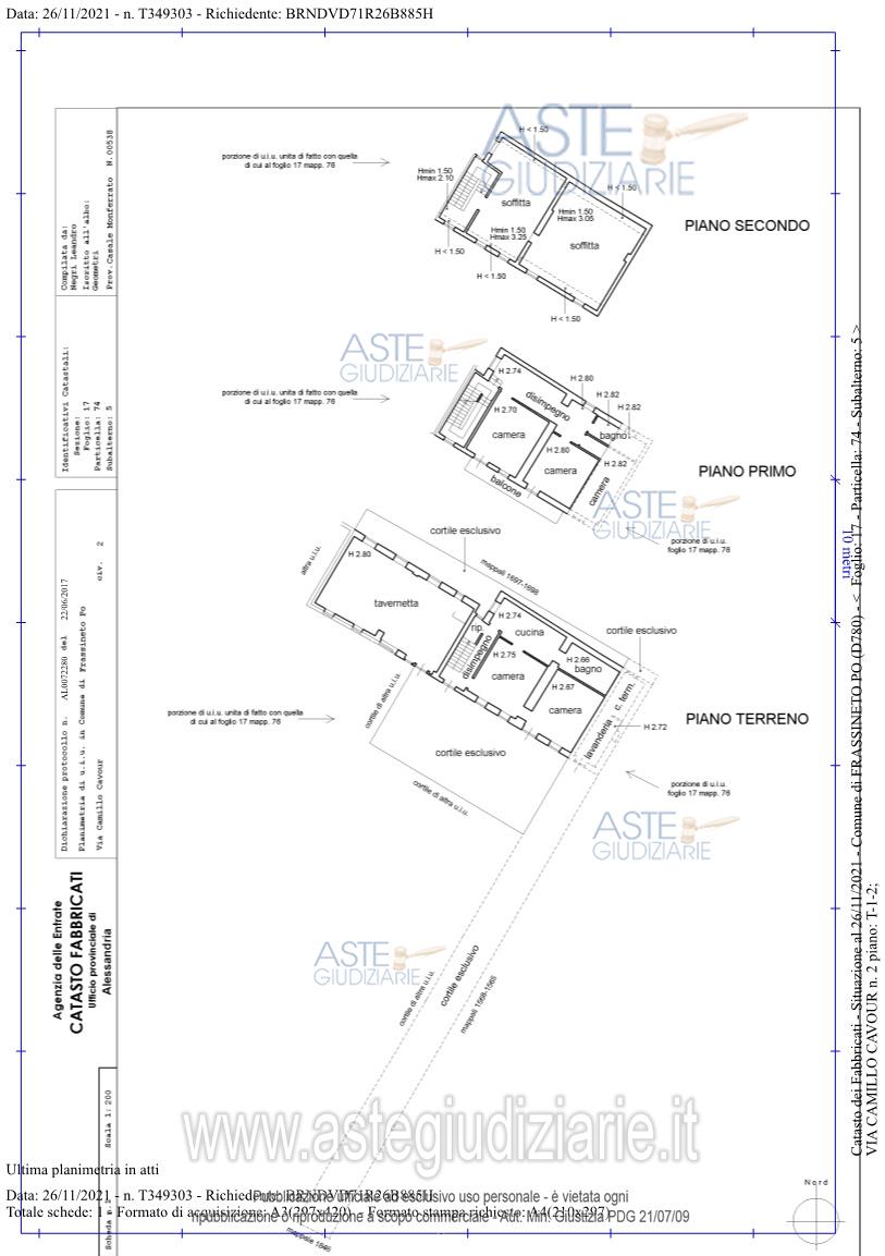
Fabbricato di civile abitazione elevato su tre piani fuori terra per la parte residenziale e un piano fuori terra le pertinenze, cui si aggiungono altri fabbricati ex agricoli destinati in parte a tettoie e in parte a ricovero attrezzature, un fabbricato ex agricolo destinato a garage elevato su un piano fuori terra di mq 81,45 ed un terreno pertinenziale all’abitazione di mq 776,00

Indirizzo
Via Camillo Benso Cavour, 2, 15040 Frassineto Po AL, Italia, Frassineto Po (AL)


Codice asta
4329400


Lotto
2


Numero beni
1


Genere
Immobili


Categoria
Immobile residenziale


Valore di stima
-


Abitazione di tipo civile

Fabbricato di civile abitazione elevato su tre piani fuori terra per la parte residenziale e un piano fuori terra le pertinenze, cui si aggiungono altri fabbricati ex agricoli destinati in parte a tettoie e in parte a ricovero attrezzature, un fabbricato ex agricolo destinato a garage elevato su un piano fuori terra di mq 81,45 ed un terreno pertinenziale all’abitazione di mq 776,00

Indirizzo
Via Camillo Benso Cavour, 2, 15040 Frassineto Po AL, Italia, Frassineto Po (AL)


Piano
t 1 2


Disponibilità
OCCUPATO


Vani
12,00


Bagni
-


Metri quadri
411,00


Certificazione energetica
-


Dati catastali

Foglio:17, Particella:74, Subalterno:5
Foglio:17, Particella:76
Foglio:17, Particella:74, Subalterno:6, Graffato:7
Foglio:17, Particella:1985, Subalterno:1
Foglio:17, Particella:1617


Data udienza
14/05/2026 ore 15:30


Tipo di vendita
Senza incanto


Modalità di vendita
Asincrona telematica


Luogo
N.A. -


Luogo presentazione offerte
-


Termine presentazione offerte
13/05/2026 ore 12:00


Prezzo base
€ 80.825,00


Offerta minima
€ 60.618,75


Rialzo minimo in caso di gara
€ 1.500,00


Deposito cauzionale
10% del prezzo offerto


Deposito in conto spese
-


Tribunale
Vercelli

Tipo di procedura
Esecuzione immobiliare post legge 80

Ruolo
25/2020

Giudice
Fanini Annalisa

Recapiti
-

Email
-

Delegato alla vendita
Bussi Franco
(Procede alle operazioni di vendita)
(Gestisce la visita del bene)

Recapiti
Tel. 0161701034

Scheda COD. 4329400 - Pubblicata dal 16/03/2026

La presente scheda di vendita riporta integralmente informazioni e documenti pervenuti ufficialmente dal Ministero e dal professionista incaricato.

Pubblicazione notarizzata su Blockchain


Pubblicazione autorizzata dall’Autorità competente, è vietata ogni ripubblicazione o riproduzione anche parziale


Ti interessa questa vendita?

Documentazione

Visualizza su mappa

Mappa geografica del bene

Storico delle vendite

Data venditaPrezzo base
11/09/2025€ 191.510,08
26/11/2025€ 143.650,00
04/02/2026€ 107.750,00
14/05/2026€ 80.825,00

Punti di interesse

Fonte dati

Nel raggio di {{range}}Km

Loading...
  • {{ getIcon(poi.type) }} {{ poi.localized }}: {{poi.count}}
  • {{ getIcon(poi.type) }} {{ poi.localized }}: {{poi.count}}
Dati non disponibili