Astegiudiziarie.it è parte di Rete Aste Network

Accedi o registrati

Non sei ancora registrato?

Oppure

Accedi

giudiziariagiudiziariaTribunale di LATINAESECUZIONI CIVILI IMMOBILIARIESPROPRIAZIONE IMMOBILIARE (CARTABIA)1922023Delegato alla venditaFabrizioCarlesimoCRLFRZ67B14I712Xavvocatofabriziocarlesimo@gmail.com32812557800773481361truetrue2346321LOTTO UNICOIMMOBILIIMMOBILE RESIDENZIALEVia Trento n. 137, interno 5, piano 2 e Via Olbia n. 8, piano terra04022FondiLatinaLazioItaliaAppartamento ubicato in Fondi (LT) - Via Trento n. 137 interno 5, piano 2 e Magazzino ubicato in Fondi (LT) Via Olbia n. 8, piano terra3031610IMMOBILE RESIDENZIALEAPPARTAMENTOVia Trento n. 137, interno 5, piano 204022FondiLatinaLazioItaliaAppartamento ubicato in Fondi (LT) - Via Trento n. 137, interno 5, piano 2.Appartamento, sito in posizione centrale della città di Fondi, posto al secondo piano di edificio residenziale in cortina di 4 piani. Il bene è composto da ampio soggiorno con cucina a vista, 4 camere, uno studio e due bagni. Completano l'unità quattro balconi. L'appartamento occupa l'intero livello della palazzina. Identificato in catasto fabbricati - Fg. 29, Part. 1220, Sub. 7, Categoria A2 al catasto Terreni - Fg. 29, Part. 1220, Qualità Ente Urbano. L'immobile viene posto in vendita per il diritto di proprietà (1/1).2912207OCCUP22623031627IMMOBILE COMMERCIALEMAGAZZINOVia Olbia n. 8, piano Terra04022FondiLatinaLazioItaliaMagazzino ubicato a Fondi (LT) - Via Olbia n. 8, piano Terra.Magazzino con superficie commerciale di 61 mq. sito in posizione centrale della citta di Fondi (LT), posto al piano terra del medesimo edificio residenziale del Bene n. 1. Al magazzino si accede da scala condivisa interna, corte esterna indivisa e da passo carrabile su Via Olbia n. 8. Identificato al catasto Fabbricati - Fg. 29, Part. 1220, Sub. 5, Categoria C2. L'immobile viene posto in vendita per il diritto di proprietà (1/1) 2912205OCCUP61,00Terra2026-01-20T15:00:00SENZA INCANTOASINCRONA TELEMATICAN.A.273.750,00205.313,005.475,002026-01-19T13:00:00sito pubblicitahttps://www.fallcoaste.ithttps://www.fallcoaste.itgestore delle venditehttps://www.fallcoaste.ithttps://www.fallcoaste.itsito pubblicitahttps://www.astegiudiziarie.ithttps://www.astegiudiziarie.it2025-11-04AVVISO DI RETTIFICAreinvio flusso2025-11-05

Appartamento, magazzino

Via Trento n. 137, interno 5, piano 2 e Via Olbia n. 8, piano terra, Fondi (LT)

€ 273.750,00

Offerta minima € 205.313,00


Codice A4339290

Lotto Lotto unico

Data udienza 20/01/2026 ore 15:00

Termine presentazione offerte 19/01/2026 ore 13:00

Appartamento, magazzino

Via Trento n. 137, interno 5, piano 2 e Via Olbia n. 8, piano terra, Fondi (LT)

€ 273.750,00

Offerta minima € 205.313,00


Codice A4339290

Lotto Lotto unico

Data udienza 20/01/2026 ore 15:00

Termine presentazione offerte 19/01/2026 ore 13:00

Ti interessa questa vendita?

Documentazione

Visualizza su mappa

Mappa geografica del bene

Punti di interesse

Fonte dati

Nel raggio di {{range}}Km

Loading...
  • {{ getIcon(poi.type) }} {{ poi.localized }}: {{poi.count}}
  • {{ getIcon(poi.type) }} {{ poi.localized }}: {{poi.count}}
Dati non disponibili

Appartamento ubicato in Fondi (LT) - Via Trento n. 137 interno 5, piano 2 e Magazzino ubicato in Fondi (LT) Via Olbia n. 8, piano terra

Indirizzo
Via Trento n. 137, interno 5, piano 2 e Via Olbia n. 8, piano terra, Fondi (LT)


Codice asta
4339290


Lotto
Lotto unico


Numero beni
2


Genere
Immobili


Categoria
Immobile residenziale


Valore di stima
-


Appartamento

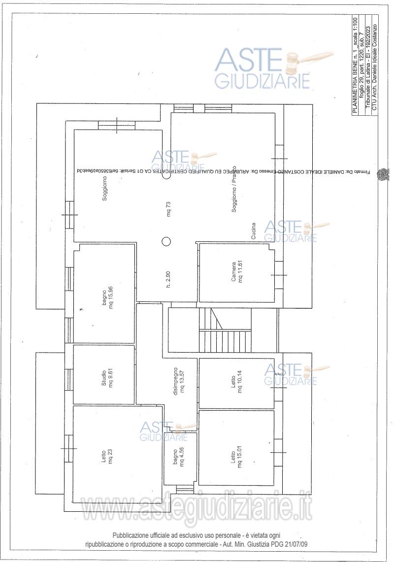
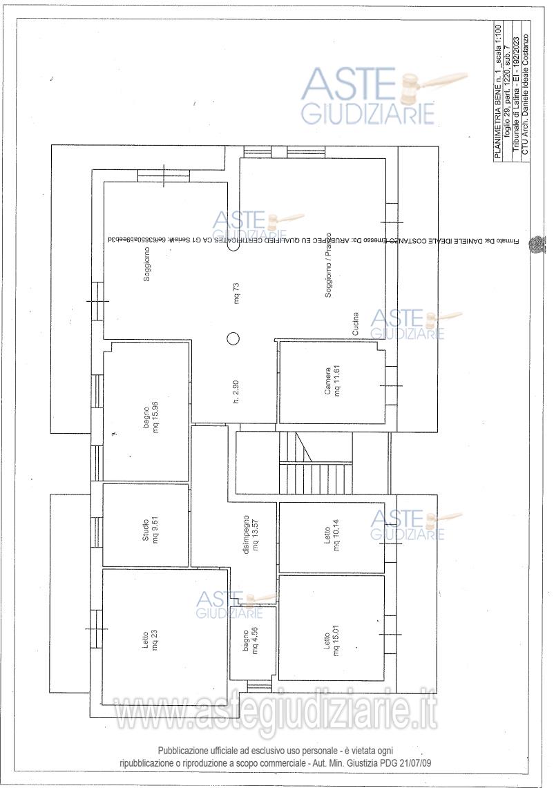
Appartamento ubicato in Fondi (LT) - Via Trento n. 137, interno 5, piano 2.Appartamento, sito in posizione centrale della città di Fondi, posto al secondo piano di edificio residenziale in cortina di 4 piani. Il bene è composto da ampio soggiorno con cucina a vista, 4 camere, uno studio e due bagni. Completano l'unità quattro balconi. L'appartamento occupa l'intero livello della palazzina. Identificato in catasto fabbricati - Fg. 29, Part. 1220, Sub. 7, Categoria A2 al catasto Terreni - Fg. 29, Part. 1220, Qualità Ente Urbano. L'immobile viene posto in vendita per il diritto di proprietà (1/1).

Indirizzo
Via Trento n. 137, interno 5, piano 2, Fondi (LT)


Piano
2


Disponibilità
OCCUPATO


Vani
10,00


Bagni
2


Metri quadri
226,00


Certificazione energetica
-


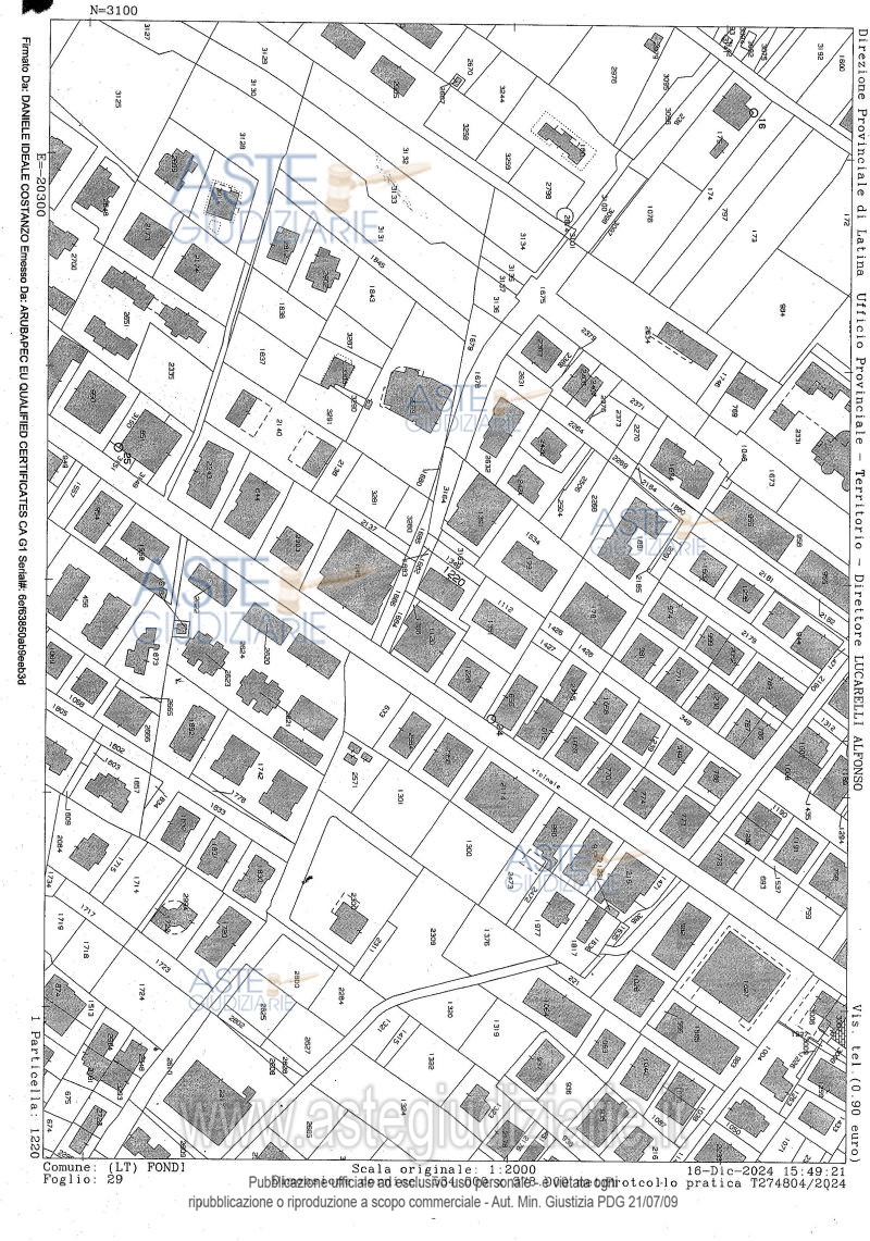
Dati catastali

Foglio:29, Particella:1220, Sub particella:7


Magazzino

Magazzino ubicato a Fondi (LT) - Via Olbia n. 8, piano Terra.Magazzino con superficie commerciale di 61 mq. sito in posizione centrale della citta di Fondi (LT), posto al piano terra del medesimo edificio residenziale del Bene n. 1. Al magazzino si accede da scala condivisa interna, corte esterna indivisa e da passo carrabile su Via Olbia n. 8. Identificato al catasto Fabbricati - Fg. 29, Part. 1220, Sub. 5, Categoria C2. L'immobile viene posto in vendita per il diritto di proprietà (1/1)

Indirizzo
Via Olbia n. 8, piano Terra, Fondi (LT)


Piano
Terra


Disponibilità
OCCUPATO


Vani
-


Bagni
-


Metri quadri
61,00


Certificazione energetica
-


Dati catastali

Foglio:29, Particella:1220, Sub particella:5


Data udienza
20/01/2026 ore 15:00


Tipo di vendita
Senza incanto


Modalità di vendita
Asincrona telematica


Luogo
-


Luogo presentazione offerte
-


Termine presentazione offerte
19/01/2026 ore 13:00


Prezzo base
€ 273.750,00


Offerta minima
€ 205.313,00


Rialzo minimo in caso di gara
€ 5.475,00


Deposito cauzionale
10% del prezzo offerto


Deposito in conto spese
-


Tribunale
Latina

Tipo di procedura
Espropriazione immobiliare (cartabia)

Ruolo
192/2023

Delegato alla vendita
Carlesimo Fabrizio
(Procede alle operazioni di vendita)
(Gestisce la visita del bene)

Recapiti
Cell. 3281255780
Tel. 0773481361

Data
05/11/2025


Tipologia
AVVISO DI RETTIFICA


Descrizione
reinvio flusso


Scheda COD. 4339290 - Pubblicata dal 13/11/2025

La presente scheda di vendita riporta integralmente informazioni e documenti pervenuti ufficialmente dal Ministero e dal professionista incaricato.


Pubblicazione autorizzata dall’Autorità competente, è vietata ogni ripubblicazione o riproduzione anche parziale


Ti interessa questa vendita?

Documentazione

Visualizza su mappa

Mappa geografica del bene

Punti di interesse

Fonte dati

Nel raggio di {{range}}Km

Loading...
  • {{ getIcon(poi.type) }} {{ poi.localized }}: {{poi.count}}
  • {{ getIcon(poi.type) }} {{ poi.localized }}: {{poi.count}}
Dati non disponibili