Astegiudiziarie.it è parte di Rete Aste Network

Accedi o registrati

Non sei ancora registrato?

Oppure

Accedi

Abitazione di tipo civile

Viale Luigi Chiavellati, 19, 06034 Foligno PG, Italia, Foligno (PG)

€ 175.600,00

Offerta minima € 131.700,00


Codice A4340134

Lotto Lotto unico

Data udienza 18/05/2026 ore 10:00

Termine presentazione offerte 15/05/2026 ore 12:00

Abitazione di tipo civile

Viale Luigi Chiavellati, 19, 06034 Foligno PG, Italia, Foligno (PG)

€ 175.600,00

Offerta minima € 131.700,00


Codice A4340134

Lotto Lotto unico

Data udienza 18/05/2026 ore 10:00

Termine presentazione offerte 15/05/2026 ore 12:00

Ti interessa questa vendita?

Documentazione

Visualizza su mappa

Mappa geografica del bene

Punti di interesse

Fonte dati

Nel raggio di {{range}}Km

Loading...
  • {{ getIcon(poi.type) }} {{ poi.localized }}: {{poi.count}}
  • {{ getIcon(poi.type) }} {{ poi.localized }}: {{poi.count}}
Dati non disponibili

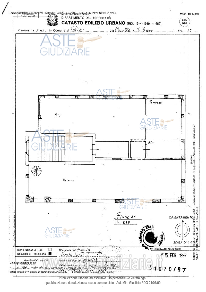
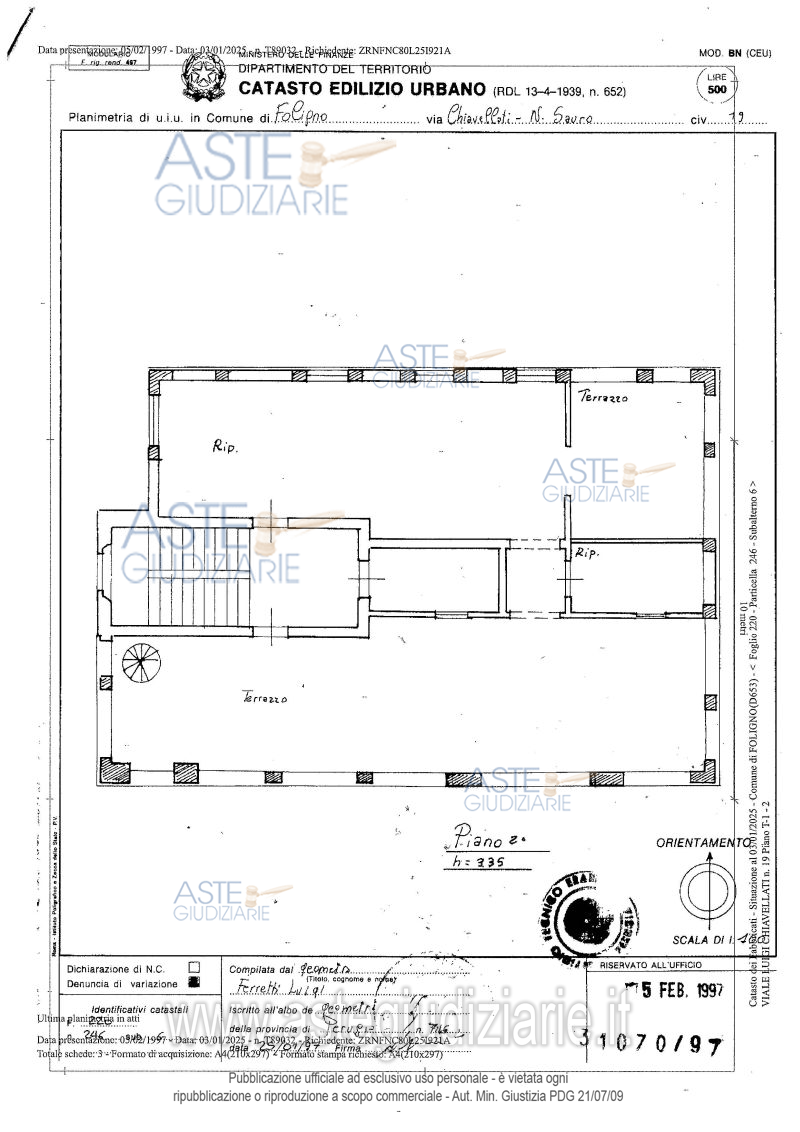
FOLIGNO (PG) VIA L. CHIAVELLATI N. 19 - Diritti pari a 1/1 della piena proprietà su appartamento.

Indirizzo
Viale Luigi Chiavellati, 19, 06034 Foligno PG, Italia, Foligno (PG)


Codice asta
4340134


Lotto
Lotto unico


Numero beni
1


Genere
Immobili


Categoria
Immobile residenziale


Valore di stima
-


Abitazione di tipo civile

Diritti pari a 1/1 della piena proprietà su: a) appartamento di complessivi mq. 274,44 (sup. catastale mq.212) ubicato nel Comune di Foligno, via L. Chiavellati n. 19, edificio 1, piano T-1-2 in zona dotata di buona disponibilità di parcheggi pubblici. L'area è ben servita da servizi di prima necessità ed è in posizione strategica per raggiungere facilmente il centro della città e altre zone di interesse. E' così composto:- piano terra: ampio ingresso e scala di accesso ai piani superiori;- piano primo: soggiorno, tinello, cucina, 3 camere, studio, bagno e ampi terrazzi;- piano secondo: locali spaziosi adibiti a ripostiglio e terrazzo. I beni risultano occupati dalla proprietà. PROFESSIONISTA DELEGATO ALLA VENDITA: AVV. ALESSANDRO RUSSO (Tel. 0742 359834)GIUDICE ESECUZIONE: DOTT. ALBERTO CAPPELLINICUSTODE GIUDIZIARIO: ISTITUTO VENDITE GIUDIZIARIE PERUGIA (075 5913525 - 0743 45107).

Indirizzo
Viale Luigi Chiavellati, 19, 06034 Foligno PG, Italia, Foligno (PG)


Piano
-


Disponibilità
-


Vani
11,00


Bagni
-


Metri quadri
274,44


Certificazione energetica
-


Dati catastali

Foglio:220, Sezione:CF, Particella:246, Subalterno:6


Data udienza
18/05/2026 ore 10:00


Tipo di vendita
Senza incanto


Modalità di vendita
Sincrona mista


Luogo
Via XXV Aprile, 52, 06049 Spoleto PG, Italia - Spoleto 06049


Luogo presentazione offerte
-


Termine presentazione offerte
15/05/2026 ore 12:00


Prezzo base
€ 175.600,00


Offerta minima
€ 131.700,00


Rialzo minimo in caso di gara
€ 1.800,00


Deposito cauzionale
10% del prezzo offerto


Deposito in conto spese
-


Tribunale
Spoleto

Tipo di procedura
Espropriazione immobiliare (cartabia)

Ruolo
100/2024

Giudice
Cappellini Alberto

Recapiti
-

Email
-

Delegato alla vendita
Russo Alessandro
(Procede alle operazioni di vendita)

Recapiti
Tel. 0742359834

Email
rusale57@tiscali.it

Custode giudiziario
Ivg perugia 
(Gestisce la visita del bene)

Recapiti
Tel. 0755913525

Scheda COD. 4340134 - Pubblicata dal 30/03/2026

La presente scheda di vendita riporta integralmente informazioni e documenti pervenuti ufficialmente dal Ministero e dal professionista incaricato.


Pubblicazione autorizzata dall’Autorità competente, è vietata ogni ripubblicazione o riproduzione anche parziale


Ti interessa questa vendita?

Documentazione

Visualizza su mappa

Mappa geografica del bene

Storico delle vendite

Data venditaPrezzo base
16/02/2026€ 219.500,00
18/05/2026€ 175.600,00

Punti di interesse

Fonte dati

Nel raggio di {{range}}Km

Loading...
  • {{ getIcon(poi.type) }} {{ poi.localized }}: {{poi.count}}
  • {{ getIcon(poi.type) }} {{ poi.localized }}: {{poi.count}}
Dati non disponibili