Astegiudiziarie.it è parte di Rete Aste Network

Accedi o registrati

Non sei ancora registrato?

Oppure

Accedi

Abitazione di tipo civile

Via Tolmino, 1, 06036 Foligno PG, Italia, Foligno (PG)

€ 75.092,40

Offerta minima € 56.319,30


Codice A4313371

Lotto Lotto unico

Data udienza 06/03/2026 ore 15:00

Termine presentazione offerte 05/03/2026 ore 12:00

Abitazione di tipo civile

Via Tolmino, 1, 06036 Foligno PG, Italia, Foligno (PG)

€ 75.092,40

Offerta minima € 56.319,30


Codice A4313371

Lotto Lotto unico

Data udienza 06/03/2026 ore 15:00

Termine presentazione offerte 05/03/2026 ore 12:00

Ti interessa questa vendita?

Documentazione

Visualizza su mappa

Mappa geografica del bene

Punti di interesse

Fonte dati

Nel raggio di {{range}}Km

Loading...
  • {{ getIcon(poi.type) }} {{ poi.localized }}: {{poi.count}}
  • {{ getIcon(poi.type) }} {{ poi.localized }}: {{poi.count}}
Dati non disponibili

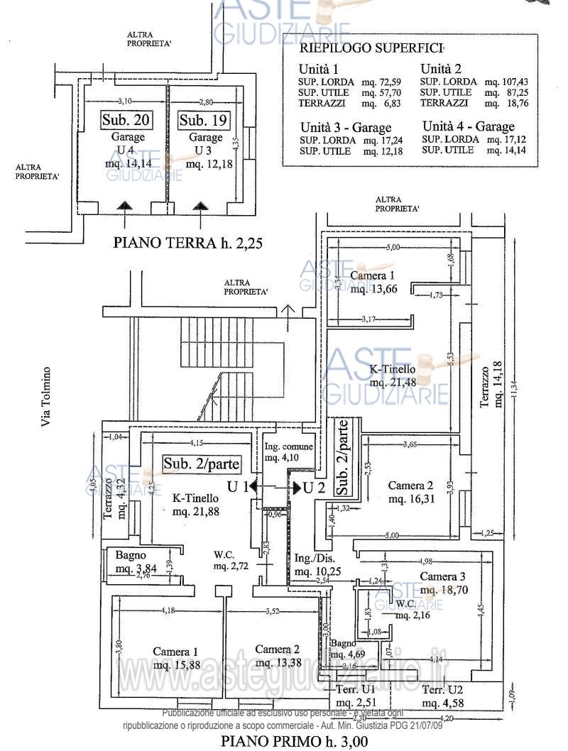
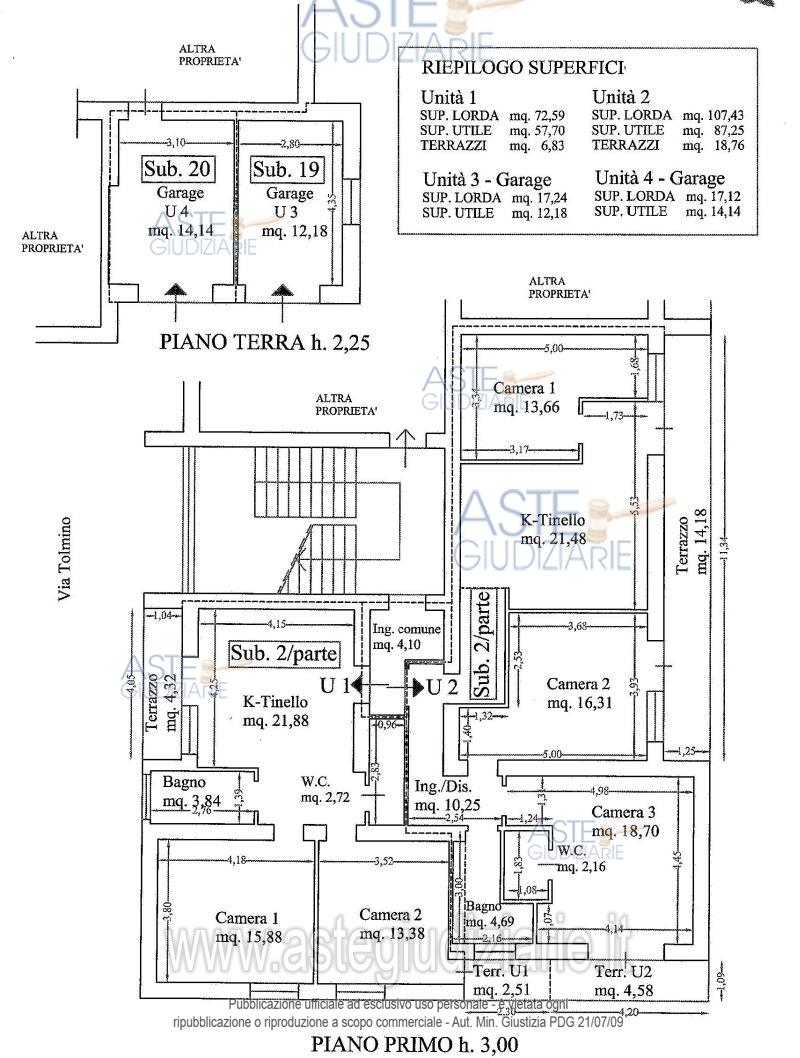
FOLIGNO (PG) VIA TOLMINO N. 1 - Unità immobiliare ad uso abitativo, posta al piano primo di un edificio elevato su cinque piani fuori terra, con due garages ubicati al piano terra.

Indirizzo
Via Tolmino, 1, 06036 Foligno PG, Italia, Foligno (PG)


Codice asta
4313371


Lotto
Lotto unico


Numero beni
1


Genere
Immobili


Categoria
Immobile residenziale


Valore di stima
-


Abitazione di tipo civile

Unità immobiliare ad uso abitativo, posta al piano primo di un edificio elevato su cinque piani fuori terra, con due garages ubicati al piano terra, siti nel Comune di Foligno alla via Tolmino n. 1.L’Esperto stimatore ha precisato che il valore complessivo degli immobili è pari ad €. 122.700,00; inoltre ha precisato che l’unità abitativa è di fatto divisa in due distinti appartamenti. Stato di occupazione del lotto: Si precisa che attualmente l’immobile è libero. PROFESSIONISTA DELEGATO: AVV. ELENA GALLI (Tel. 0743 224335).GIUDICE ESECUZIONE: DOTT. ALBERTO CAPPELLINICUSTODE GIUDIZIARIO: ISTITUTO VENDITE GIUDIZIARIE PERUGIA (075 5913525 – 0473 45107).

Indirizzo
Via Tolmino, 1, 06036 Foligno PG, Italia, Foligno (PG)


Piano
-


Disponibilità
-


Vani
7,00


Bagni
-


Metri quadri
140,00


Certificazione energetica
-


Dati catastali

Foglio:180, Sezione:CF, Particella:100, Subalterno:2
Foglio:180, Sezione:CF, Particella:100, Subalterno:19
Foglio:180, Sezione:CF, Particella:100, Subalterno:20


Data udienza
06/03/2026 ore 15:00


Tipo di vendita
Senza incanto


Modalità di vendita
Sincrona mista


Luogo
Via XXV Aprile, 52, 06049 Spoleto PG, Italia - Spoleto 06049


Luogo presentazione offerte
-


Termine presentazione offerte
05/03/2026 ore 12:00


Prezzo base
€ 75.092,40


Offerta minima
€ 56.319,30


Rialzo minimo in caso di gara
€ 800,00


Deposito cauzionale
20% del prezzo offerto


Deposito in conto spese
-


Tribunale
Spoleto

Tipo di procedura
Esecuzione immobiliare post legge 80

Ruolo
109/2016

Giudice
Cappellini Alberto

Recapiti
-

Email
-

Delegato alla vendita
Galli Elena
(Procede alle operazioni di vendita)

Recapiti
Tel. 0743224335

Email
elena.galli@gmail.com

Custode giudiziario
Ivg perugia 
(Gestisce la visita del bene)

Recapiti
Tel. 0755913525

Scheda COD. 4313371 - Pubblicata dal 19/12/2025

La presente scheda di vendita riporta integralmente informazioni e documenti pervenuti ufficialmente dal Ministero e dal professionista incaricato.

Pubblicazione notarizzata su Blockchain


Pubblicazione autorizzata dall’Autorità competente, è vietata ogni ripubblicazione o riproduzione anche parziale


Ti interessa questa vendita?

Documentazione

Visualizza su mappa

Mappa geografica del bene

Storico delle vendite

Data venditaPrezzo base
18/12/2024€ 75.092,40
06/03/2026€ 75.092,40

Punti di interesse

Fonte dati

Nel raggio di {{range}}Km

Loading...
  • {{ getIcon(poi.type) }} {{ poi.localized }}: {{poi.count}}
  • {{ getIcon(poi.type) }} {{ poi.localized }}: {{poi.count}}
Dati non disponibili