Astegiudiziarie.it è parte di Rete Aste Network

Accedi o registrati

Non sei ancora registrato?

Oppure

Accedi

Appartamento

Via Case Gioacchino, Fiuggi (FR)

€ 34.989,00

Offerta minima € 26.242,00


Codice A4269741

Lotto 1

Data udienza 26/11/2025 ore 11:00

Termine presentazione offerte 25/11/2025 ore 12:00

Appartamento

Via Case Gioacchino, Fiuggi (FR)

€ 34.989,00

Offerta minima € 26.242,00


Codice A4269741

Lotto 1

Data udienza 26/11/2025 ore 11:00

Termine presentazione offerte 25/11/2025 ore 12:00

Ti interessa questa vendita?

Documentazione

Visualizza su mappa

Mappa geografica del bene

Punti di interesse

Fonte dati

Nel raggio di {{range}}Km

Loading...
  • {{ getIcon(poi.type) }} {{ poi.localized }}: {{poi.count}}
  • {{ getIcon(poi.type) }} {{ poi.localized }}: {{poi.count}}
Dati non disponibili

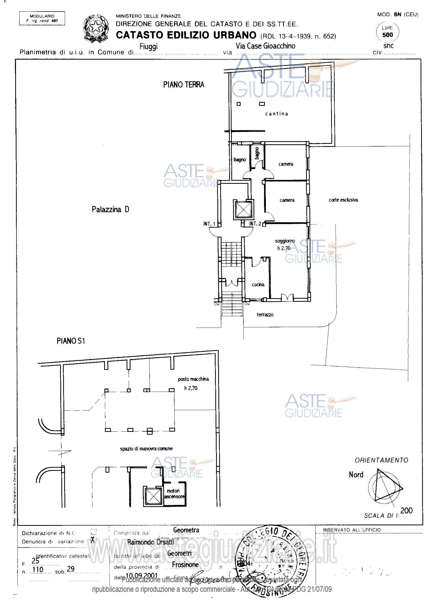
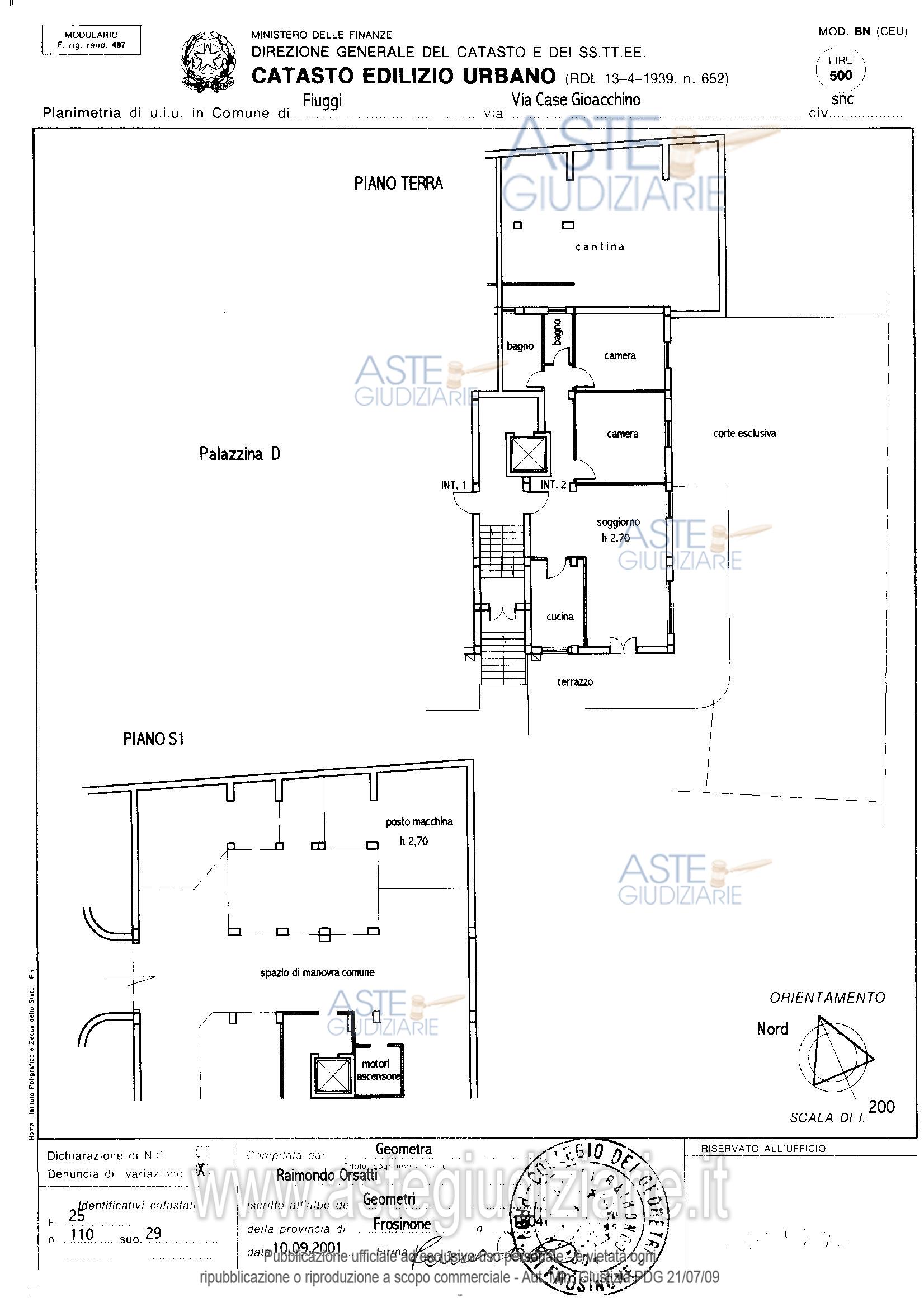
Appartamento al piano seminterrato e terra.

Indirizzo
Via Case Gioacchino, Fiuggi (FR)


Codice asta
4269741


Lotto
1


Numero beni
1


Genere
Immobili


Categoria
Immobile residenziale


Valore di stima
-


Appartamento

Appartamento al piano seminterrato e terra.

Indirizzo
Via Case Gioacchino, Fiuggi (FR)


Piano
-


Disponibilità
-


Vani
6,00


Bagni
1


Metri quadri
148,10


Certificazione energetica
-


Data udienza
26/11/2025 ore 11:00


Tipo di vendita
Senza incanto


Modalità di vendita
Asincrona telematica


Luogo
N.A. -


Luogo presentazione offerte
-


Termine presentazione offerte
25/11/2025 ore 12:00


Prezzo base
€ 34.989,00


Offerta minima
€ 26.242,00


Rialzo minimo in caso di gara
€ 4.000,00


Deposito cauzionale
10% del prezzo offerto


Deposito in conto spese
-


Tribunale
Frosinone

Tipo di procedura
Esecuzione immobiliare post legge 80

Ruolo
92/2020

Giudice
Di nicola Simona

Recapiti
-

Email
-

Delegato alla vendita
Vinciguerra Giuseppe
(Procede alle operazioni di vendita)

Recapiti
Tel. 07751860572

Email
pinovinciguerra@gmail.com

Custode giudiziario
Vinciguerra Giuseppe
(Gestisce la visita del bene)

Recapiti
Tel. 07751860572

Scheda COD. 4269741 - Pubblicata dal 03/10/2025

La presente scheda di vendita riporta integralmente informazioni e documenti pervenuti ufficialmente dal Ministero e dal professionista incaricato.

Pubblicazione notarizzata su Blockchain


Pubblicazione autorizzata dall’Autorità competente, è vietata ogni ripubblicazione o riproduzione anche parziale


Ti interessa questa vendita?

Documentazione

Visualizza su mappa

Mappa geografica del bene

Storico delle vendite

Data venditaPrezzo base
25/05/2023€ 62.202,00
06/09/2023€ 46.652,00
28/11/2023€ 34.989,00
27/05/2025€ 62.202,00
08/09/2025€ 46.652,00
26/11/2025€ 34.989,00

Punti di interesse

Fonte dati

Nel raggio di {{range}}Km

Loading...
  • {{ getIcon(poi.type) }} {{ poi.localized }}: {{poi.count}}
  • {{ getIcon(poi.type) }} {{ poi.localized }}: {{poi.count}}
Dati non disponibili