Astegiudiziarie.it è parte di Rete Aste Network

Accedi o registrati

Non sei ancora registrato?

Oppure

Accedi

Abitazione di tipo civile

Via Aretina, 266, 50136 Firenze FI, Italia, Firenze (FI)

€ 310.000,00

Offerta minima € 232.500,00


Codice A4349835

Lotto Lotto unico

Data udienza 01/07/2026 ore 14:00

Termine presentazione offerte 30/06/2026 ore 23:59

Abitazione di tipo civile

Via Aretina, 266, 50136 Firenze FI, Italia, Firenze (FI)

€ 310.000,00

Offerta minima € 232.500,00


Codice A4349835

Lotto Lotto unico

Data udienza 01/07/2026 ore 14:00

Termine presentazione offerte 30/06/2026 ore 23:59

Ti interessa questa vendita?

Documentazione

Visualizza su mappa

Mappa geografica del bene

Punti di interesse

Fonte dati

Nel raggio di {{range}}Km

Loading...
  • {{ getIcon(poi.type) }} {{ poi.localized }}: {{poi.count}}
  • {{ getIcon(poi.type) }} {{ poi.localized }}: {{poi.count}}
Dati non disponibili

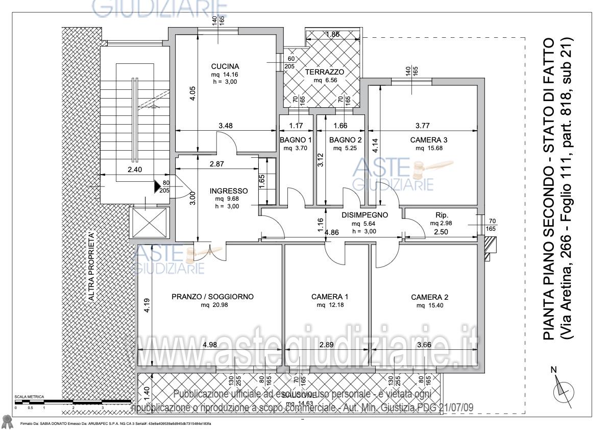
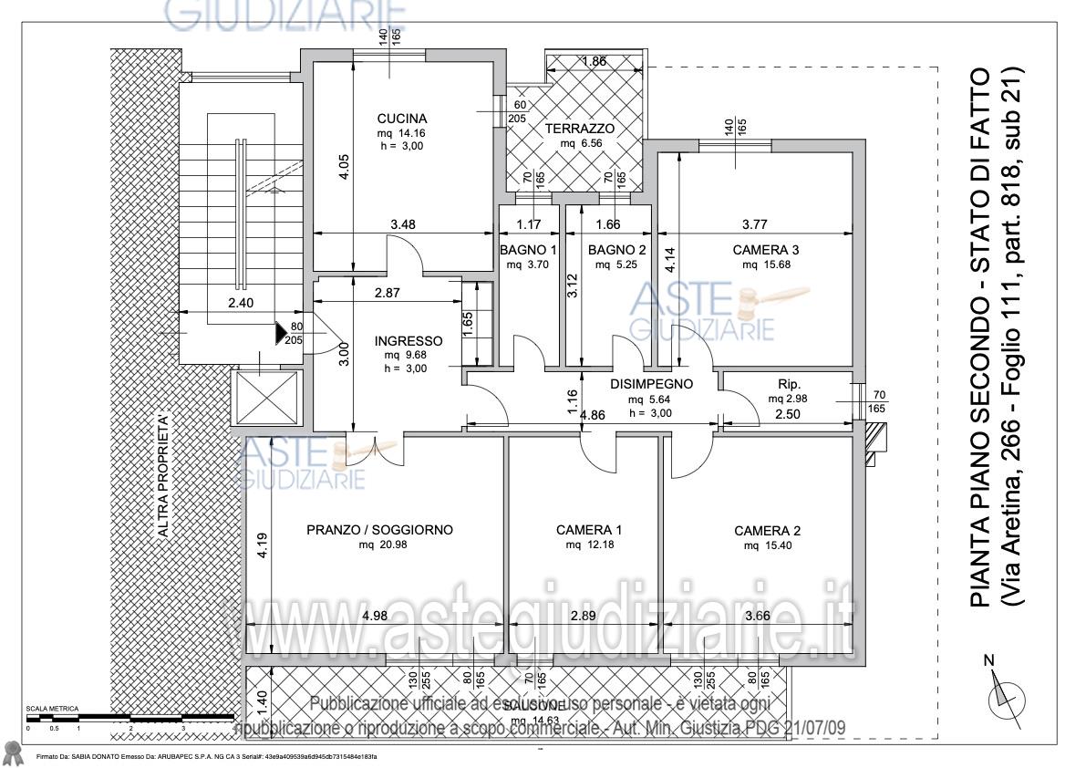
Piena proprietà di porzione di un più ampio fabbricato condominiale con accesso da Via Aretina a mezzo di piazzale condominiale e più precisamente appartamento ad uso civile abitazione ubicato al piano secondo e composto da ampio ingresso, cucina con terrazza, vano adibito a pranzo/soggiorno, disimpegno, due camere matrimoniali, una camera singola, due bagni, ripostiglio e balcone nella parte tergale.

Indirizzo
Via Aretina, 266, 50136 Firenze FI, Italia, Firenze (FI)


Codice asta
4349835


Lotto
Lotto unico


Numero beni
1


Genere
Immobili


Categoria
Immobile residenziale


Valore di stima
-


Abitazione di tipo civile

Piena proprietà di porzione di un più ampio fabbricato condominiale con accesso da Via Aretina a mezzo di piazzale condominiale e più precisamente appartamento ad uso civile abitazione ubicato al piano secondo e composto da ampio ingresso, cucina con terrazza, vano adibito a pranzo/soggiorno, disimpegno, due camere matrimoniali, una camera singola, due bagni, ripostiglio e balcone nella parte tergale.

Indirizzo
Via Aretina, 266, 50136 Firenze FI, Italia, Firenze (FI)


Piano
-


Disponibilità
LIBERO


Vani
-


Bagni
-


Metri quadri
-


Certificazione energetica
-


Dati catastali

Foglio:111, Particella:818, Subalterno:21


Data udienza
01/07/2026 ore 14:00


Tipo di vendita
Senza incanto


Modalità di vendita
Sincrona telematica


Luogo
N.A. -


Luogo presentazione offerte
-


Termine presentazione offerte
30/06/2026 ore 23:59


Prezzo base
€ 310.000,00


Offerta minima
€ 232.500,00


Rialzo minimo in caso di gara
€ 6.200,00


Deposito cauzionale
10% del prezzo offerto


Deposito in conto spese
-


Tribunale
Firenze

Tipo di procedura
Contenzioso civile

Ruolo
12189/2025

Delegato alla vendita
Guarnieri Elisabetta
(Procede alle operazioni di vendita)

Recapiti
Tel. 055473590

Email
guarnieri.elisabetta@gmail.com

Custode giudiziario
Istituto vendite giudiziarie di firenze 
(Gestisce la visita del bene)

Recapiti
Tel. 0552340830

Scheda COD. 4349835 - Pubblicata dal 23/04/2026

La presente scheda di vendita riporta integralmente informazioni e documenti pervenuti ufficialmente dal Ministero e dal professionista incaricato.

Pubblicazione notarizzata su Blockchain


Pubblicazione autorizzata dall’Autorità competente, è vietata ogni ripubblicazione o riproduzione anche parziale


Ti interessa questa vendita?

Documentazione

Visualizza su mappa

Mappa geografica del bene

Punti di interesse

Fonte dati

Nel raggio di {{range}}Km

Loading...
  • {{ getIcon(poi.type) }} {{ poi.localized }}: {{poi.count}}
  • {{ getIcon(poi.type) }} {{ poi.localized }}: {{poi.count}}
Dati non disponibili