Astegiudiziarie.it è parte di Rete Aste Network

Accedi o registrati

Non sei ancora registrato?

Oppure

Accedi

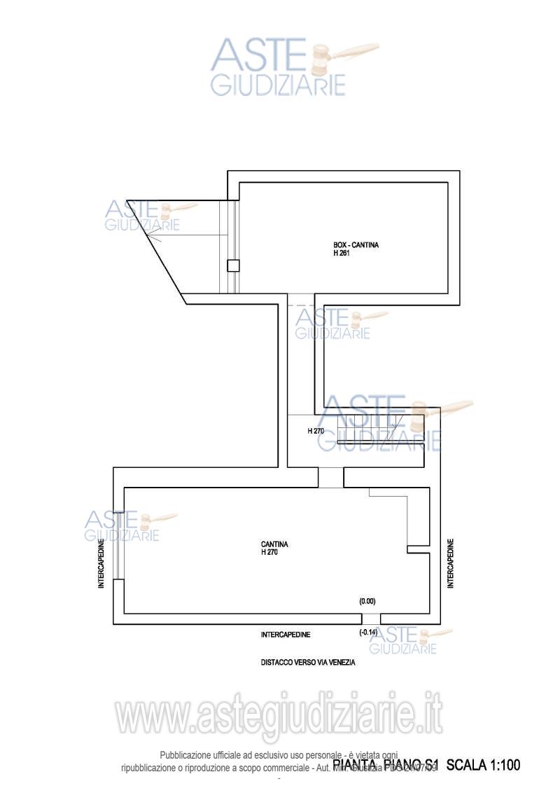
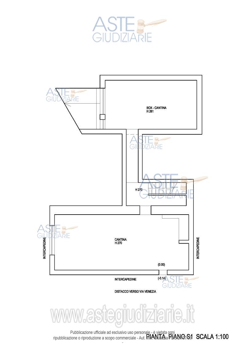
giudiziariagiudiziariaTribunale di ROMAESECUZIONI CIVILI IMMOBILIARIESECUZIONE IMMOBILIARE POST LEGGE 801054231999Delegato alla venditaMarikaChristopulosCHRMRK77S55C352TtruefalseCustodeIvg di roma srlPRCFNC50L27A241Tpvp@visiteivgroma.it0689569801falsetrueGiudiceRomoloCiufolinifalsefalse2307158LOTTO UNICOIMMOBILIIMMOBILE RESIDENZIALEVIA VENEZIA 6A00065Fiano RomanoRomaLazioItaliaQuota pari a 1/1 del diritto di proprietà su villetta ubicata a Fiano Romano (RM) - Via Venezia 6/A, piano S1/T/1, su due livelli fuori terra più seminterrato. L'edificio è circondato da giardino nel quale insistono una tettoia in legno adibita a parcheggio di n. 4 autoveicoli. Il tutto per complessivi 343 mq. di superficie convenzionale.2984041IMMOBILE RESIDENZIALEABITAZIONE DI TIPO POPOLAREVIA VENEZIA 6/A00065Fiano RomanoRomaLazioItaliaQuota pari a 1/1 del diritto di proprietà su villetta ubicata a Fiano Romano (RM) - Via Venezia 6A, piano S1/T/1, su due livelli fuori terra più seminterrato costituita dai seguenti vani: soggiorno,cucina, bagno, disimpegno, vano scala, ripostiglio nel sottoscala, portico lato ingresso tamponato etrasformato in abitazione, portico con tettoia in legno realizzato senza autorizzazione nella terrazza a livello adiacente alla cucina (al piano terra); sottotetto trasformato in abitazione con tre camere, bagno, disimpegno, terrazza tamponata (al piano primo); cantina usata come taverna e box auto, disimpegno, ripostiglio nel sottoscala (al piano seminterrato). L'edificio è circondato da giardino con essenze arboree da frutta, nel quale insistono una tettoia in legno adibita a parcheggio di n. 4 autoveicoli di circa mq 87, un manufatto in legno di circa m3,5x3,5 adibito a deposito e altra tettoia in metallo e policarbonato ubicata nella part. 54 di circa mq 40.Il tutto per complessivi 343 mq. di superficie convenzionale.Identificato al catasto Fabbricati del Comune di Fiano Romano (RM) al Fg. 22, Part. 53, Categoria A/4 e al Catasto Terreni del medesimo Comune al Fg. 22, Part. 54, Qualità Seminativo, cl. 2, ha are ca 00/05/50 mq.Il compendio confina con 1) catasto urbano part. 53 (villetta + terreno circostante): part. 54 stessa proprietà, part. 355, part 379, via Venezia, salvo altri.2) catasto terreni part. 54 (terreno seminativo adiacente alla part. 53): part 53 (stessa proprietà), part. 355, part 1035, via Venezia, salvo altri.Il villino è stato costruito in virtù di: concessione edilizia n. 30 del 5.10.1985 prot. 5685 e successiva variante n.35 del 23.7.1986 prot. 4258. Non risulta essere stata rilasciata certificazione di agibilità.Non vi è corrispondenza tra lo stato dei luoghi e il progetto allegato all’ultima autorizzazione amministrativa. Le difformità riscontrate sono: diversa distribuzione degli spazi interni al piano terra e l’abuso è regolarizzabile con CILA in sanatoria; realizzazione al piano terra esterno di una copertura porticata nella terrazza adiacente al prospetto sud e chiusura del portico sul prospetto nord con aumento di cubatura (entrambi abusi non sanabili); chiusura al piano primo di un balcone con una veranda per ricavarvi una camera e l’abuso è sanabile; mutamento di destinazione d’uso, insanabile, delle camere nel sottotetto, con destinazione a soffitta ed utilizzate ad abitazione; realizzazione nell’area esterna senza titolo edilizio di una tettoia in c.a. mq. 15,00, accesso carrabile da Via Venezia, di altra tettoia di c.a. 87,00 mq. adibita a parcheggio (non sanabile), di altra tettoia di c.a. 40,00 mq. realizzata con struttura metallica non conforme alla normativa vigente e di un manufatto in legno 3,5x3,5, difforme a quanto previsto con deliberazione del Consiglio Comunale 55/2011I costi di ripristino degli abusi sanabili sono meglio indicati con calcolo forfettario nella perizia di stima.Parimenti indicati nella perizia sono i costi di modifica della categoria catastale del fabbricato, erroneamente indicata come A/4 (abitazione popolare) in luogo di A/7(abitazioni in villini).La particella 54 presenta lungo l’intero confine ovest una servitù perpetua di passaggio pedonale e carrabile (cfr. nota di trascrizione atto notaio Felicetti del 7.3.1985, rep. 4928, allegato 4) larga metri cinque che partendo da via Venezia raggiunge altre proprietà. Detta striscia di terreno è stata chiusa da altri proprietari con un cancello verso via Venezia. Fra detto cancello e via Venezia vi è un secondo accesso a uso dell'immobile. La superficie della servitù è di circa mq 150.Formalità pregiudizievoli non cancellabili: Domanda giudiziale trascritta in data 07.08.1995, form. 18948 , non rinnovata ex art. 2668 bis cc. Occupato dall’esecutato che vi abita (non potrà essere disposta la liberazione prima del decreto di trasferimento)Il tutto come meglio descritto nell’elaborato peritale depositato in atti2025-12-04T10:00:00SENZA INCANTOASINCRONA TELEMATICAN.A.468.000,00351.000,005.000,002025-12-03T23:59:00sito pubblicitahttps://www.asteannunci.ithttps://www.asteannunci.itgestore delle venditehttps://www.fallcoaste.ithttps://www.fallcoaste.itsito pubblicitahttps://www.astegiudiziarie.ithttps://www.astegiudiziarie.itsito pubblicitahttps://www.fallcoaste.ithttps://www.fallcoaste.it2025-07-28

Abitazione di tipo popolare

VIA VENEZIA 6A, Fiano Romano (RM)

€ 468.000,00

Offerta minima € 351.000,00


Codice A4333591

Lotto Lotto unico

Data udienza 04/12/2025 ore 10:00

Termine presentazione offerte 03/12/2025 ore 23:59

Abitazione di tipo popolare

VIA VENEZIA 6A, Fiano Romano (RM)

€ 468.000,00

Offerta minima € 351.000,00


Codice A4333591

Lotto Lotto unico

Data udienza 04/12/2025 ore 10:00

Termine presentazione offerte 03/12/2025 ore 23:59

Ti interessa questa vendita?

Documentazione

Visualizza su mappa

Mappa geografica del bene

Punti di interesse

Fonte dati

Nel raggio di {{range}}Km

Loading...
  • {{ getIcon(poi.type) }} {{ poi.localized }}: {{poi.count}}
  • {{ getIcon(poi.type) }} {{ poi.localized }}: {{poi.count}}
Dati non disponibili

Quota pari a 1/1 del diritto di proprietà su villetta ubicata a Fiano Romano (RM) - Via Venezia 6/A, piano S1/T/1, su due livelli fuori terra più seminterrato. L'edificio è circondato da giardino nel quale insistono una tettoia in legno adibita a parcheggio di n. 4 autoveicoli. Il tutto per complessivi 343 mq. di superficie convenzionale.

Indirizzo
VIA VENEZIA 6A, Fiano Romano (RM)


Codice asta
4333591


Lotto
Lotto unico


Numero beni
1


Genere
Immobili


Categoria
Immobile residenziale


Valore di stima
-


Abitazione di tipo popolare

Quota pari a 1/1 del diritto di proprietà su villetta ubicata a Fiano Romano (RM) - Via Venezia 6A, piano S1/T/1, su due livelli fuori terra più seminterrato costituita dai seguenti vani: soggiorno,cucina, bagno, disimpegno, vano scala, ripostiglio nel sottoscala, portico lato ingresso tamponato etrasformato in abitazione, portico con tettoia in legno realizzato senza autorizzazione nella terrazza a livello adiacente alla cucina (al piano terra); sottotetto trasformato in abitazione con tre camere, bagno, disimpegno, terrazza tamponata (al piano primo); cantina usata come taverna e box auto, disimpegno, ripostiglio nel sottoscala (al piano seminterrato). L'edificio è circondato da giardino con essenze arboree da frutta, nel quale insistono una tettoia in legno adibita a parcheggio di n. 4 autoveicoli di circa mq 87, un manufatto in legno di circa m3,5x3,5 adibito a deposito e altra tettoia in metallo e policarbonato ubicata nella part. 54 di circa mq 40.Il tutto per complessivi 343 mq. di superficie convenzionale.Identificato al catasto Fabbricati del Comune di Fiano Romano (RM) al Fg. 22, Part. 53, Categoria A/4 e al Catasto Terreni del medesimo Comune al Fg. 22, Part. 54, Qualità Seminativo, cl. 2, ha are ca 00/05/50 mq.Il compendio confina con 1) catasto urbano part. 53 (villetta + terreno circostante): part. 54 stessa proprietà, part. 355, part 379, via Venezia, salvo altri.2) catasto terreni part. 54 (terreno seminativo adiacente alla part. 53): part 53 (stessa proprietà), part. 355, part 1035, via Venezia, salvo altri.Il villino è stato costruito in virtù di: concessione edilizia n. 30 del 5.10.1985 prot. 5685 e successiva variante n.35 del 23.7.1986 prot. 4258. Non risulta essere stata rilasciata certificazione di agibilità.Non vi è corrispondenza tra lo stato dei luoghi e il progetto allegato all’ultima autorizzazione amministrativa. Le difformità riscontrate sono: diversa distribuzione degli spazi interni al piano terra e l’abuso è regolarizzabile con CILA in sanatoria; realizzazione al piano terra esterno di una copertura porticata nella terrazza adiacente al prospetto sud e chiusura del portico sul prospetto nord con aumento di cubatura (entrambi abusi non sanabili); chiusura al piano primo di un balcone con una veranda per ricavarvi una camera e l’abuso è sanabile; mutamento di destinazione d’uso, insanabile, delle camere nel sottotetto, con destinazione a soffitta ed utilizzate ad abitazione; realizzazione nell’area esterna senza titolo edilizio di una tettoia in c.a. mq. 15,00, accesso carrabile da Via Venezia, di altra tettoia di c.a. 87,00 mq. adibita a parcheggio (non sanabile), di altra tettoia di c.a. 40,00 mq. realizzata con struttura metallica non conforme alla normativa vigente e di un manufatto in legno 3,5x3,5, difforme a quanto previsto con deliberazione del Consiglio Comunale 55/2011I costi di ripristino degli abusi sanabili sono meglio indicati con calcolo forfettario nella perizia di stima.Parimenti indicati nella perizia sono i costi di modifica della categoria catastale del fabbricato, erroneamente indicata come A/4 (abitazione popolare) in luogo di A/7(abitazioni in villini).La particella 54 presenta lungo l’intero confine ovest una servitù perpetua di passaggio pedonale e carrabile (cfr. nota di trascrizione atto notaio Felicetti del 7.3.1985, rep. 4928, allegato 4) larga metri cinque che partendo da via Venezia raggiunge altre proprietà. Detta striscia di terreno è stata chiusa da altri proprietari con un cancello verso via Venezia. Fra detto cancello e via Venezia vi è un secondo accesso a uso dell'immobile. La superficie della servitù è di circa mq 150.Formalità pregiudizievoli non cancellabili: Domanda giudiziale trascritta in data 07.08.1995, form. 18948 , non rinnovata ex art. 2668 bis cc. Occupato dall’esecutato che vi abita (non potrà essere disposta la liberazione prima del decreto di trasferimento)Il tutto come meglio descritto nell’elaborato peritale depositato in atti

Indirizzo
VIA VENEZIA 6/A, Fiano Romano (RM)


Piano
S1-T-1


Disponibilità
-


Vani
5,50


Bagni
2


Metri quadri
343,00


Certificazione energetica
-


Data udienza
04/12/2025 ore 10:00


Tipo di vendita
Senza incanto


Modalità di vendita
Asincrona telematica


Luogo
N.A. -


Luogo presentazione offerte
-


Termine presentazione offerte
03/12/2025 ore 23:59


Prezzo base
€ 468.000,00


Offerta minima
€ 351.000,00


Rialzo minimo in caso di gara
€ 5.000,00


Deposito cauzionale
-


Deposito in conto spese
-


Tribunale
Roma

Tipo di procedura
Esecuzione immobiliare post legge 80

Ruolo
105423/1999

Giudice
Ciufolini Romolo

Recapiti
-

Email
-

Delegato alla vendita
Christopulos Marika
(Procede alle operazioni di vendita)

Recapiti
-

Email
-

Custode giudiziario
Ivg di roma srl 
(Gestisce la visita del bene)

Recapiti
Tel. 0689569801

Scheda COD. 4333591 - Pubblicata dal 29/09/2025

La presente scheda di vendita riporta integralmente informazioni e documenti pervenuti ufficialmente dal Ministero e dal professionista incaricato.

Pubblicazione notarizzata su Blockchain


Pubblicazione autorizzata dall’Autorità competente, è vietata ogni ripubblicazione o riproduzione anche parziale


Ti interessa questa vendita?

Documentazione

Visualizza su mappa

Mappa geografica del bene

Punti di interesse

Fonte dati

Nel raggio di {{range}}Km

Loading...
  • {{ getIcon(poi.type) }} {{ poi.localized }}: {{poi.count}}
  • {{ getIcon(poi.type) }} {{ poi.localized }}: {{poi.count}}
Dati non disponibili