Astegiudiziarie.it è parte di Rete Aste Network

Accedi o registrati

Non sei ancora registrato?

Oppure

Accedi

Abitazione di tipo popolare

Via Direttissima n.09, Falciano del Massico (CE)

€ 21.306,00

Offerta minima € 15.980,00


Codice A4329515

Lotto Lotto unico

Data vendita 07/07/2026 ore 09:30

Termine presentazione offerte 06/07/2026 ore 12:00

Abitazione di tipo popolare

Via Direttissima n.09, Falciano del Massico (CE)

€ 21.306,00

Offerta minima € 15.980,00


Codice A4329515

Lotto Lotto unico

Data Vendita 07/07/2026 ore 09:30

Termine presentazione offerte 06/07/2026 ore 12:00

Ti interessa questa vendita?

Documentazione

Visualizza su mappa

Mappa geografica del bene

Punti di interesse

Fonte dati

Nel raggio di {{range}}Km

Loading...
  • {{ getIcon(poi.type) }} {{ poi.localized }}: {{poi.count}}
  • {{ getIcon(poi.type) }} {{ poi.localized }}: {{poi.count}}
Dati non disponibili

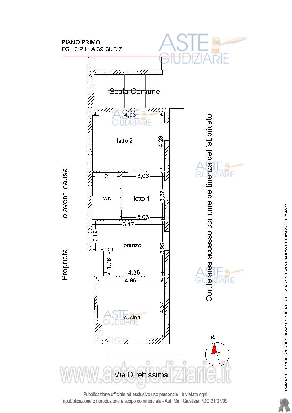
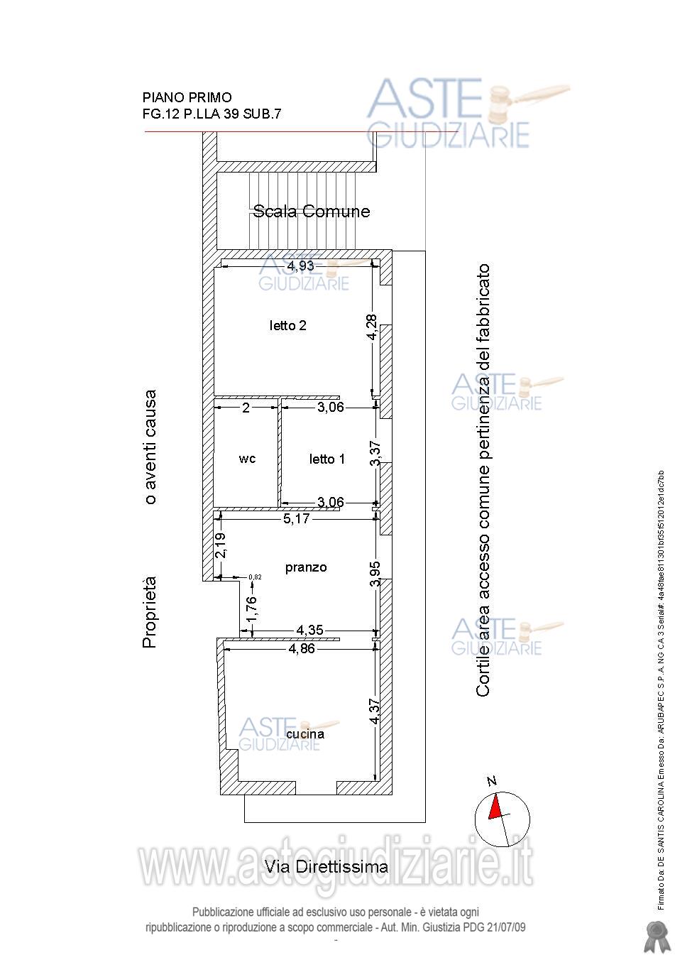
Piena e Intera proprietà n.02 appartamenti facenti parte fabbricato in Falciano del Massico (CE), via Direttissima n.09. 1) appartamento al PT: ingresso, zona pranzo, cucina, due camere da letto, corridoio, un bagno; 2) appartamento P1: cucina, zona pranzo, due camere da letto, corridoio, un bagno. Immobili in pessimo stato di manutenzione, disabitati. Si invita attenta lettura perizia di stima, pubblicata unitamente avviso di vendita, in particolare stato dei luoghi e conformità urbanistica e catastale

Indirizzo
Via Direttissima n.09, Falciano del Massico (CE)


Codice asta
4329515


Lotto
Lotto unico


Numero beni
1


Genere
Immobili


Categoria
Immobile residenziale


Valore di stima
-


Abitazione di tipo popolare

Piena e Intera proprietà n.02 appartamenti facenti parte fabbricato in Falciano del Massico (CE), via Direttissima n.09. 1) appartamento al PT: ingresso, zona pranzo, cucina, due camere da letto, corridoio, un bagno; 2) appartamento P1: cucina, zona pranzo, due camere da letto, corridoio, un bagno. Immobili in pessimo stato di manutenzione, disabitati. Si invita attenta lettura perizia di stima, pubblicata unitamente avviso di vendita, in particolare stato dei luoghi e conformità urbanistica e catastale

Indirizzo
Via Direttissima n.09, Falciano del Massico (CE)


Piano
T 1


Disponibilità
LIBERO


Vani
4,00


Bagni
-


Metri quadri
198,72


Certificazione energetica
-


Dati catastali

Foglio:12, Particella:39, Subalterno:6
Foglio:12, Particella:39, Subalterno:7


Data vendita
07/07/2026 ore 09:30


Tipo di vendita
Senza incanto


Modalità di vendita
Presso il venditore


Luogo
Via Albana n.73 - Santa Maria Capua Vetere 81055


Luogo presentazione offerte
-


Termine presentazione offerte
06/07/2026 ore 12:00


Prezzo base
€ 21.306,00


Offerta minima
€ 15.980,00


Rialzo minimo in caso di gara
€ 0,00


Deposito cauzionale
10% del prezzo offerto


Deposito in conto spese
-


Tipo di procedura
Esecuzione immobiliare post legge 80

Ruolo
36/2024

Giudice
Mercurio Elmelinda

Recapiti
-

Email
-

Delegato alla vendita
Cesaro Claudio
(Procede alle operazioni di vendita)

Recapiti
Cell. 3356874141
Tel. 3356874141

Email
claudiocesaro@cesarorossellico...

Custode giudiziario
Cesaro Claudio
(Gestisce la visita del bene)

Recapiti
Cell. 3356874141
Tel. 3356874141

Scheda COD. 4329515 - Pubblicata dal 23/04/2026

La presente scheda di vendita riporta integralmente informazioni e documenti pervenuti ufficialmente dal Ministero e dal professionista incaricato.

Pubblicazione notarizzata su Blockchain


Pubblicazione autorizzata dall’Autorità competente, è vietata ogni ripubblicazione o riproduzione anche parziale


Ti interessa questa vendita?

Documentazione

Visualizza su mappa

Mappa geografica del bene

Storico delle vendite

Data venditaPrezzo base
02/09/2025€ 50.500,00
02/12/2025€ 37.875,00
03/03/2026€ 28.407,00
07/07/2026€ 21.306,00

Punti di interesse

Fonte dati

Nel raggio di {{range}}Km

Loading...
  • {{ getIcon(poi.type) }} {{ poi.localized }}: {{poi.count}}
  • {{ getIcon(poi.type) }} {{ poi.localized }}: {{poi.count}}
Dati non disponibili