Astegiudiziarie.it è parte di Rete Aste Network

Accedi o registrati

Non sei ancora registrato?

Oppure

Accedi

Abitazione di tipo civile

Via Sacerdote Benedetto Cozzolino, 140, Ercolano (NA)

€ 323.943,00

Offerta minima € 242.958,00


Codice A4273064

Lotto Lotto unico

Data udienza 26/05/2026 ore 15:30

Termine presentazione offerte 25/05/2026 ore 23:59

Abitazione di tipo civile

Via Sacerdote Benedetto Cozzolino, 140, Ercolano (NA)

€ 323.943,00

Offerta minima € 242.958,00


Codice A4273064

Lotto Lotto unico

Data udienza 26/05/2026 ore 15:30

Termine presentazione offerte 25/05/2026 ore 23:59

Ti interessa questa vendita?

Documentazione

Visualizza su mappa

Mappa geografica del bene

Punti di interesse

Fonte dati

Nel raggio di {{range}}Km

Loading...
  • {{ getIcon(poi.type) }} {{ poi.localized }}: {{poi.count}}
  • {{ getIcon(poi.type) }} {{ poi.localized }}: {{poi.count}}
Dati non disponibili

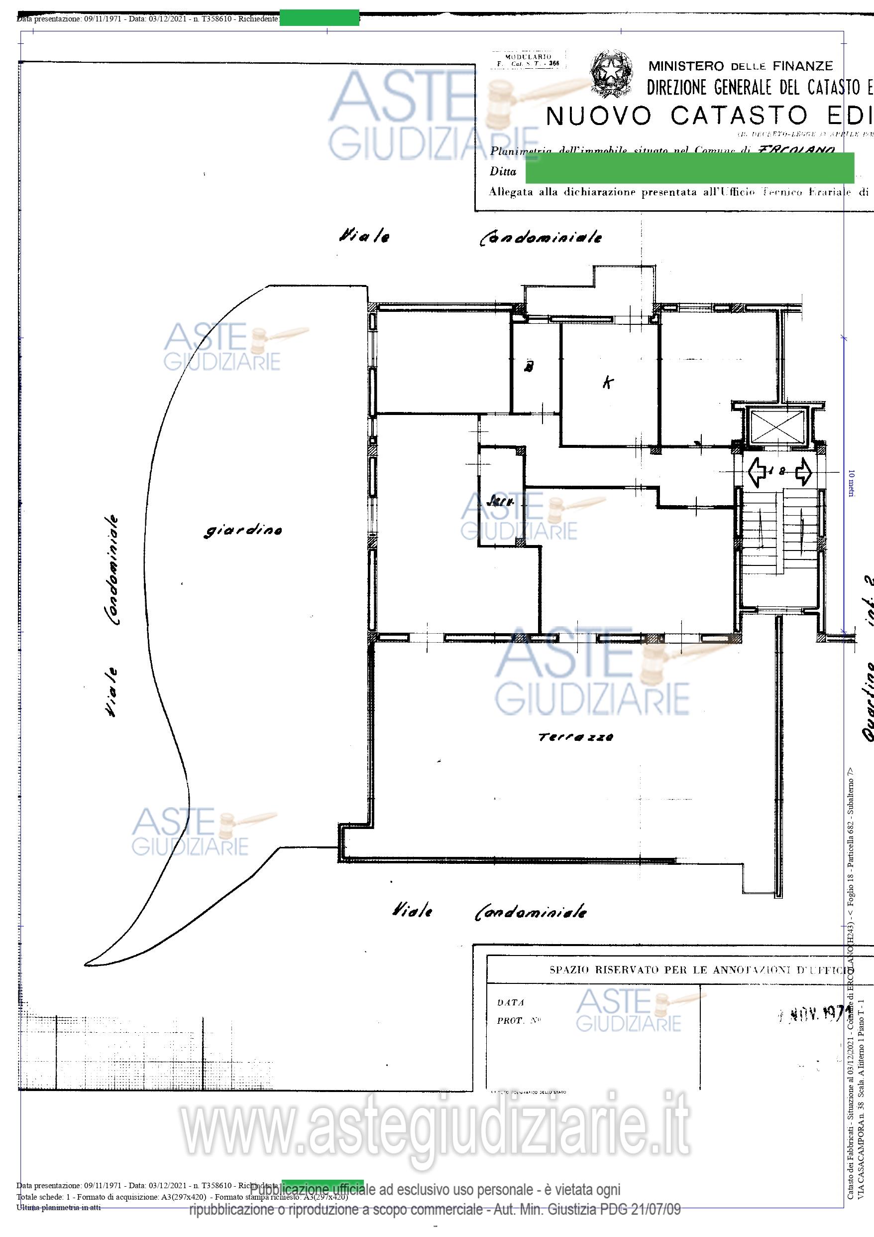
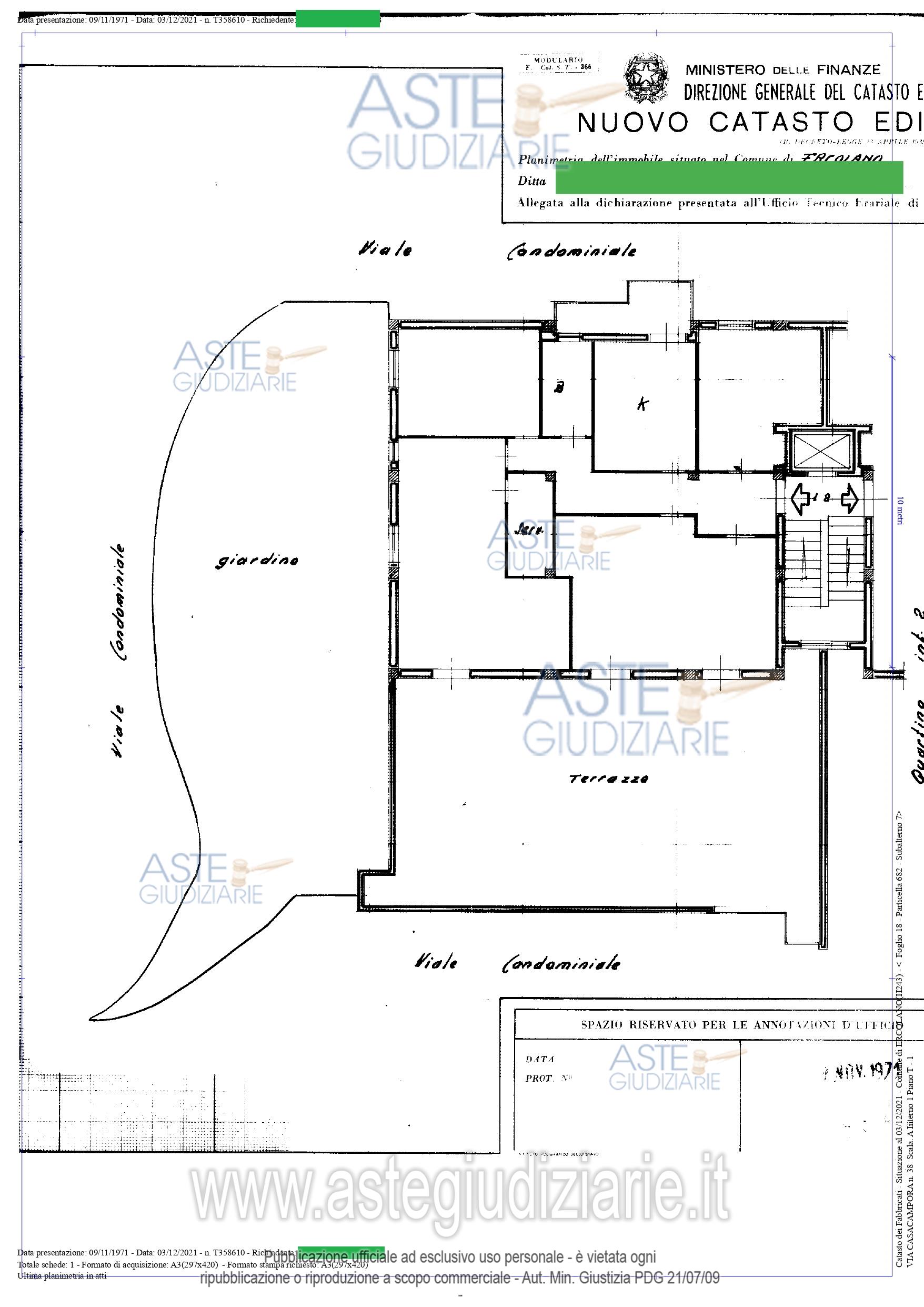
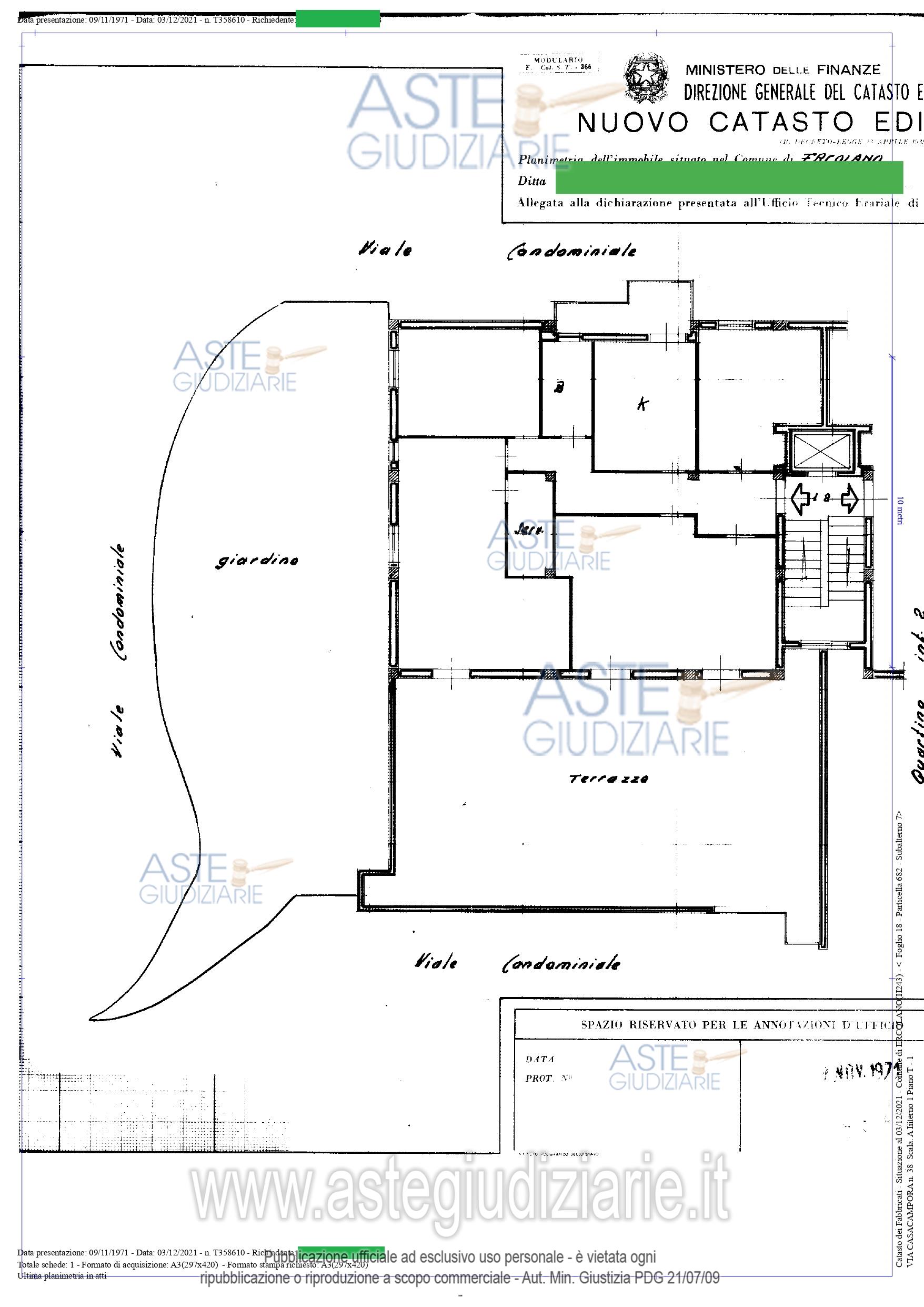
Lotto unico composto da appartamento al piano primo, della superficie utile di mq 128,15, composto da ingresso, cucina/soggiorno, cucinino, tre camere da letto, tre bagni, disimpegno, ripostiglio e due cabine armadio, oltre terrazzo e giardino e box al piano seminterrato, composto da un locale con retrostante cantina e della superficie commerciale di mq 68,90.

Indirizzo
Via Sacerdote Benedetto Cozzolino, 140, Ercolano (NA)


Codice asta
4273064


Lotto
Lotto unico


Numero beni
1


Genere
Immobili


Categoria
Immobile residenziale


Valore di stima
-


Abitazione di tipo civile

Lotto unico composto da appartamento al piano primo, della superficie utile di mq 128,15, composto da ingresso, cucina/soggiorno, cucinino, tre camere da letto, tre bagni, disimpegno, ripostiglio e due cabine armadio, oltre terrazzo e giardino e box al piano seminterrato, composto da un locale con retrostante cantina e della superficie commerciale di mq 68,90.

Indirizzo
Via Sacerdote Benedetto Cozzolino, 140, Ercolano (NA)


Piano
-


Disponibilità
-


Vani
9,00


Bagni
-


Metri quadri
128,15


Certificazione energetica
-


Dati catastali

Foglio:18, Particella:682, Subalterno:7-1


Data udienza
26/05/2026 ore 15:30


Tipo di vendita
Senza incanto


Modalità di vendita
Asincrona telematica


Luogo
N.A. -


Luogo presentazione offerte
-


Termine presentazione offerte
25/05/2026 ore 23:59


Prezzo base
€ 323.943,00


Offerta minima
€ 242.958,00


Rialzo minimo in caso di gara
€ 3.000,00


Deposito cauzionale
20% del prezzo offerto


Deposito in conto spese
-


Tribunale
Napoli

Tipo di procedura
Esecuzione immobiliare post legge 80

Ruolo
142/2021

Giudice
D'auria Federica

Recapiti
-

Email
-

Delegato alla vendita
Perone pacifico Camilla
(Procede alle operazioni di vendita)
(Gestisce la visita del bene)

Recapiti
Tel. 08118858628

Scheda COD. 4273064 - Pubblicata dal 27/03/2026

La presente scheda di vendita riporta integralmente informazioni e documenti pervenuti ufficialmente dal Ministero e dal professionista incaricato.

Pubblicazione notarizzata su Blockchain


Pubblicazione autorizzata dall’Autorità competente, è vietata ogni ripubblicazione o riproduzione anche parziale


Ti interessa questa vendita?

Documentazione

Visualizza su mappa

Mappa geografica del bene

Storico delle vendite

Data venditaPrezzo base
08/04/2025€ 431.923,00
23/09/2025€ 323.943,00
26/05/2026€ 323.943,00

Punti di interesse

Fonte dati

Nel raggio di {{range}}Km

Loading...
  • {{ getIcon(poi.type) }} {{ poi.localized }}: {{poi.count}}
  • {{ getIcon(poi.type) }} {{ poi.localized }}: {{poi.count}}
Dati non disponibili