Astegiudiziarie.it è parte di Rete Aste Network

Accedi o registrati

Non sei ancora registrato?

Oppure

Accedi

Abitazione di tipo civile

Via Beppe Fenoglio, 14a, 12100 Cuneo CN, Italia, Cuneo (CN)

€ 117.200,00

Offerta minima € 87.900,00


Codice A4334563

Lotto 3

Data udienza 22/01/2026 ore 17:30

Termine presentazione offerte 21/01/2026 ore 12:00

Abitazione di tipo civile

Via Beppe Fenoglio, 14a, 12100 Cuneo CN, Italia, Cuneo (CN)

€ 117.200,00

Offerta minima € 87.900,00


Codice A4334563

Lotto 3

Data udienza 22/01/2026 ore 17:30

Termine presentazione offerte 21/01/2026 ore 12:00

Ti interessa questa vendita?

Documentazione

Visualizza su mappa

Mappa geografica del bene

Punti di interesse

Fonte dati

Nel raggio di {{range}}Km

Loading...
  • {{ getIcon(poi.type) }} {{ poi.localized }}: {{poi.count}}
  • {{ getIcon(poi.type) }} {{ poi.localized }}: {{poi.count}}
Dati non disponibili

Appartamento e garage a Cuneo (CN) - Via Beppe Fenoglio n. 14/A

Indirizzo
Via Beppe Fenoglio, 14a, 12100 Cuneo CN, Italia, Cuneo (CN)


Codice asta
4334563


Lotto
3


Numero beni
1


Genere
Immobili


Categoria
Immobile residenziale


Valore di stima
-


Abitazione di tipo civile

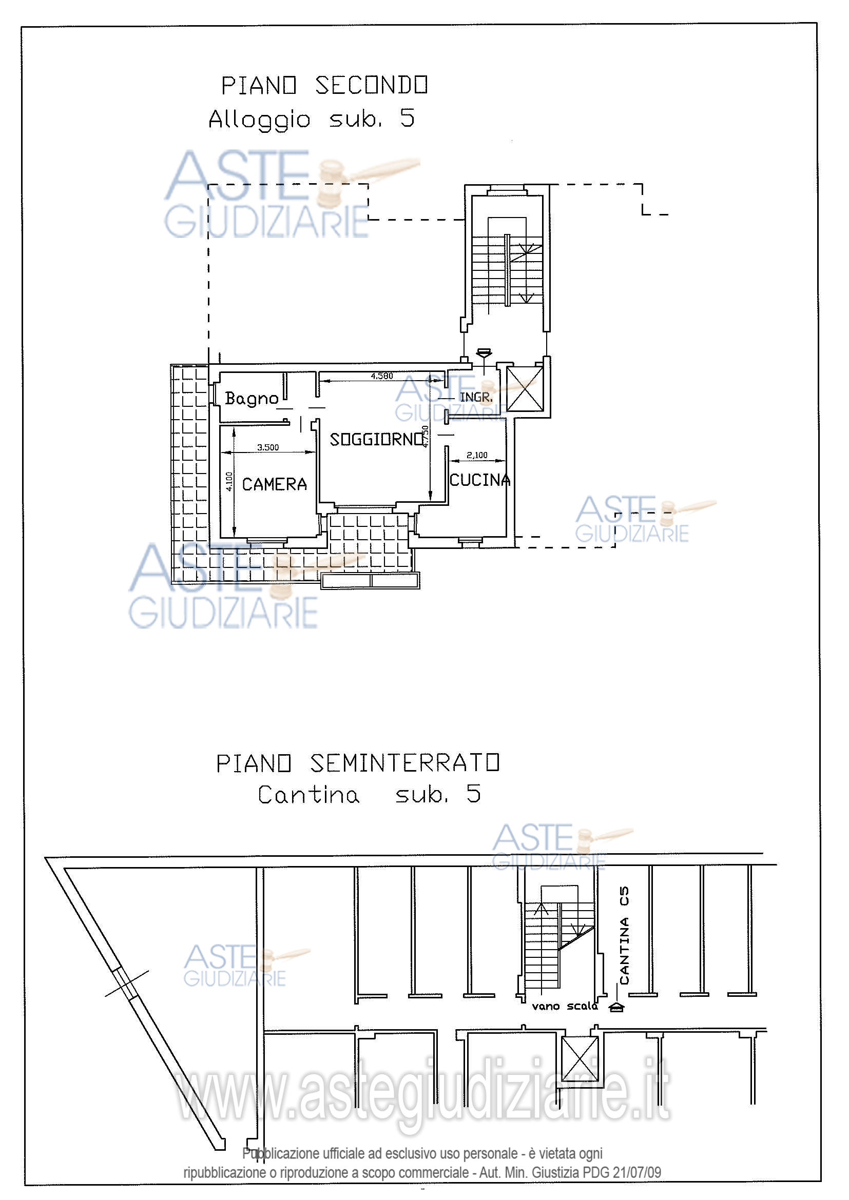
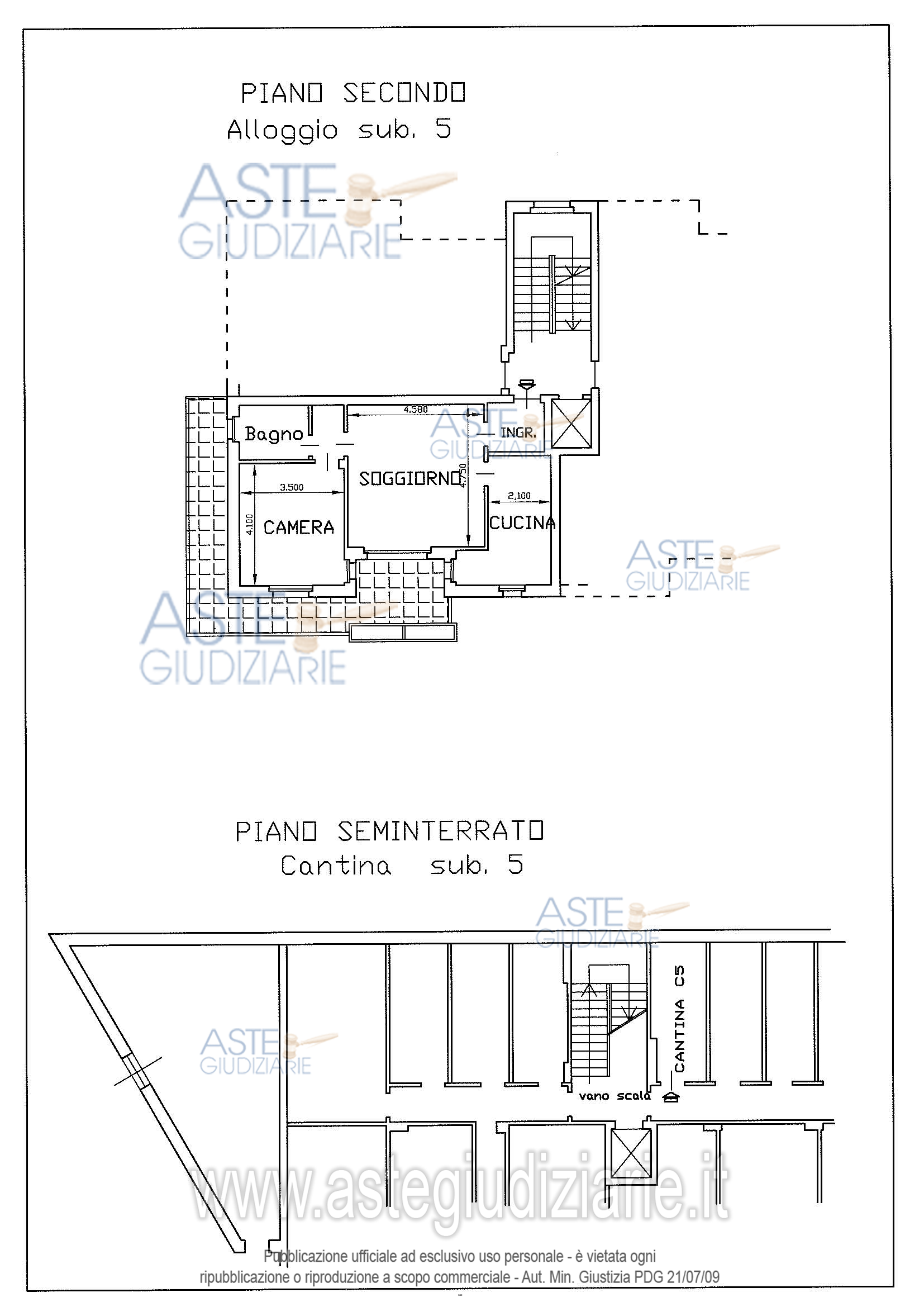
piena proprietà (per la quota di 1/1) di •Bene N° 5 - Appartamento ubicato a Cuneo (CN) - Via Beppe Fenoglio n. 14/A, scala A, piano 2-S1, facente parte di un complesso residenziale denominato "I LARICI", composto da ingresso, soggiorno, cucina, un piccolo disimpegno da cui si accede al bagno ed alla camera da letto, ampio terrazzo, cantina pertinenziale al piano interrato;•Bene N° 6 - Garage ubicato a Cuneo (CN) - Via Beppe Fenoglio n. 14/A, piano S1, facente parte di un complesso residenziale denominato "I LARICI".Il trasferimento comprende la proporzionale quota di comproprietà sulle parti comuni dell’edificio

Indirizzo
Via Beppe Fenoglio, 14a, 12100 Cuneo CN, Italia, Cuneo (CN)


Piano
-


Disponibilità
-


Vani
-


Bagni
-


Metri quadri
-


Certificazione energetica
-


Dati catastali

Foglio:78, Particella:132, Subalterno:5
Foglio:78, Particella:132, Subalterno:29


Denuncia catastale


Data udienza
22/01/2026 ore 17:30


Tipo di vendita
Senza incanto


Modalità di vendita
Asincrona telematica


Luogo
-


Luogo presentazione offerte
-


Termine presentazione offerte
21/01/2026 ore 12:00


Prezzo base
€ 117.200,00


Offerta minima
€ 87.900,00


Rialzo minimo in caso di gara
€ 2.000,00


Deposito cauzionale
10% del prezzo offerto


Deposito in conto spese
-


Tribunale
Cuneo

Tipo di procedura
Esecuzione immobiliare post legge 80

Ruolo
140/2022

Giudice
Bonaudi Roberta

Recapiti
-

Email
-

Delegato alla vendita
Mondino Daniela
(Procede alle operazioni di vendita)

Recapiti
Tel. 017441342

Email
mondino.tesio@multiwire.net

Custode giudiziario
Ifir piemonte ivg srl 
(Gestisce la visita del bene)

Recapiti
Tel. 01711873923

Scheda COD. 4334563 - Pubblicata dal 26/11/2025

La presente scheda di vendita riporta integralmente informazioni e documenti pervenuti ufficialmente dal Ministero e dal professionista incaricato.

Pubblicazione notarizzata su Blockchain


Pubblicazione autorizzata dall’Autorità competente, è vietata ogni ripubblicazione o riproduzione anche parziale


Ti interessa questa vendita?

Documentazione

Visualizza su mappa

Mappa geografica del bene

Storico delle vendite

Data venditaPrezzo base
06/11/2025€ 146.500,00
22/01/2026€ 117.200,00

Punti di interesse

Fonte dati

Nel raggio di {{range}}Km

Loading...
  • {{ getIcon(poi.type) }} {{ poi.localized }}: {{poi.count}}
  • {{ getIcon(poi.type) }} {{ poi.localized }}: {{poi.count}}
Dati non disponibili