Astegiudiziarie.it è parte di Rete Aste Network

Accedi o registrati

Non sei ancora registrato?

Oppure

Accedi

Abitazione di tipo civile

S.da Torino, 5, 13044 Crescentino VC, Italia, Crescentino (VC)

€ 33.750,00

Offerta minima € 25.312,50


Codice A4334153

Lotto Lotto unico

Data udienza 30/04/2026 ore 16:00

Termine presentazione offerte 29/04/2026 ore 12:00

Abitazione di tipo civile

S.da Torino, 5, 13044 Crescentino VC, Italia, Crescentino (VC)

€ 33.750,00

Offerta minima € 25.312,50


Codice A4334153

Lotto Lotto unico

Data udienza 30/04/2026 ore 16:00

Termine presentazione offerte 29/04/2026 ore 12:00

Ti interessa questa vendita?

Documentazione

Visualizza su mappa

Mappa geografica del bene

Punti di interesse

Fonte dati

Nel raggio di {{range}}Km

Loading...
  • {{ getIcon(poi.type) }} {{ poi.localized }}: {{poi.count}}
  • {{ getIcon(poi.type) }} {{ poi.localized }}: {{poi.count}}
Dati non disponibili

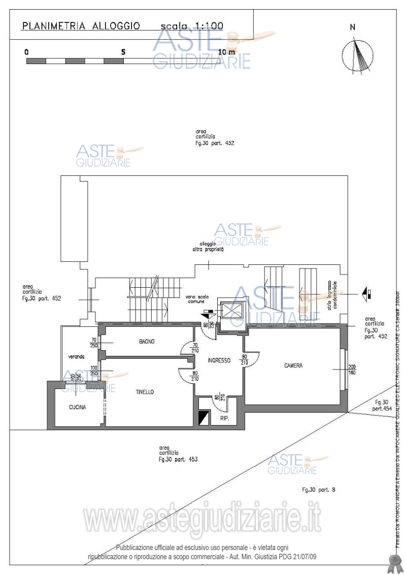
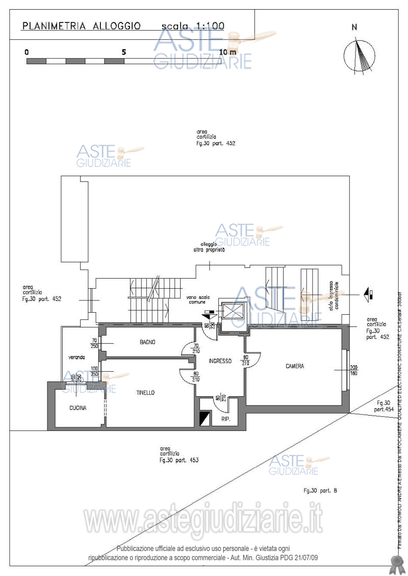
Alloggio al piano terreno ( rialzato) con cantina al piano seminterrato in fabbricato di civile abitazione, accessibile da spazi comuni (vano scala, corridoio, cantine); oltre ad autorimessa a piano terreno in basso fabbricato nelle immediate vicinanze del fabbricato condominiale.

Indirizzo
S.da Torino, 5, 13044 Crescentino VC, Italia, Crescentino (VC)


Codice asta
4334153


Lotto
Lotto unico


Numero beni
1


Genere
Immobili


Categoria
Immobile residenziale


Valore di stima
-


Abitazione di tipo civile

Alloggio a piano terreno (rialzato) con cantina al piano seminterrato in fabbricato di civile abitazione, accessibile da spazi comuni (vano scala, corridoi, cantine ); oltre ad autorimessa a piano terreno in basso fabbricato nelle immediate vicinanze del fabbricato condominiale.

Indirizzo
S.da Torino, 5, 13044 Crescentino VC, Italia, Crescentino (VC)


Piano
-


Disponibilità
-


Vani
4,50


Bagni
-


Metri quadri
74,74


Certificazione energetica
-


Dati catastali

Foglio:30, Particella:374, Subalterno:13
Foglio:30, Particella:374, Subalterno:14


Data udienza
30/04/2026 ore 16:00


Tipo di vendita
Senza incanto


Modalità di vendita
Asincrona telematica


Luogo
N.A. -


Luogo presentazione offerte
-


Termine presentazione offerte
29/04/2026 ore 12:00


Prezzo base
€ 33.750,00


Offerta minima
€ 25.312,50


Rialzo minimo in caso di gara
€ 1.000,00


Deposito cauzionale
10% del prezzo offerto


Deposito in conto spese
-


Tribunale
Vercelli

Tipo di procedura
Espropriazione immobiliare (cartabia)

Ruolo
178/2024

Delegato alla vendita
Barresi Loredana
(Procede alle operazioni di vendita)
(Gestisce la visita del bene)

Recapiti
Tel. 0142452307

Scheda COD. 4334153 - Pubblicata dal 06/03/2026

La presente scheda di vendita riporta integralmente informazioni e documenti pervenuti ufficialmente dal Ministero e dal professionista incaricato.


Pubblicazione autorizzata dall’Autorità competente, è vietata ogni ripubblicazione o riproduzione anche parziale


Ti interessa questa vendita?

Documentazione

Visualizza su mappa

Mappa geografica del bene

Storico delle vendite

Data venditaPrezzo base
07/11/2025€ 60.000,00
25/02/2026€ 45.000,00
30/04/2026€ 33.750,00

Punti di interesse

Fonte dati

Nel raggio di {{range}}Km

Loading...
  • {{ getIcon(poi.type) }} {{ poi.localized }}: {{poi.count}}
  • {{ getIcon(poi.type) }} {{ poi.localized }}: {{poi.count}}
Dati non disponibili