Astegiudiziarie.it è parte di Rete Aste Network

Accedi o registrati

Non sei ancora registrato?

Oppure

Accedi

Abitazione di tipo popolare

Via dei Partigiani, 3, 13836 Cossato BI, Italia, Cossato (BI)

€ 36.106,58

Offerta minima € 27.079,94


Codice A4298924

Lotto Lotto unico

Data udienza 25/11/2025 ore 15:15

Termine presentazione offerte 24/11/2025 ore 13:00

Abitazione di tipo popolare

Via dei Partigiani, 3, 13836 Cossato BI, Italia, Cossato (BI)

€ 36.106,58

Offerta minima € 27.079,94


Codice A4298924

Lotto Lotto unico

Data udienza 25/11/2025 ore 15:15

Termine presentazione offerte 24/11/2025 ore 13:00

Vendita deserta

Ti interessa questa vendita?

Documentazione

Visualizza su mappa

Mappa geografica del bene

Punti di interesse

Fonte dati

Nel raggio di {{range}}Km

Loading...
  • {{ getIcon(poi.type) }} {{ poi.localized }}: {{poi.count}}
  • {{ getIcon(poi.type) }} {{ poi.localized }}: {{poi.count}}
Dati non disponibili

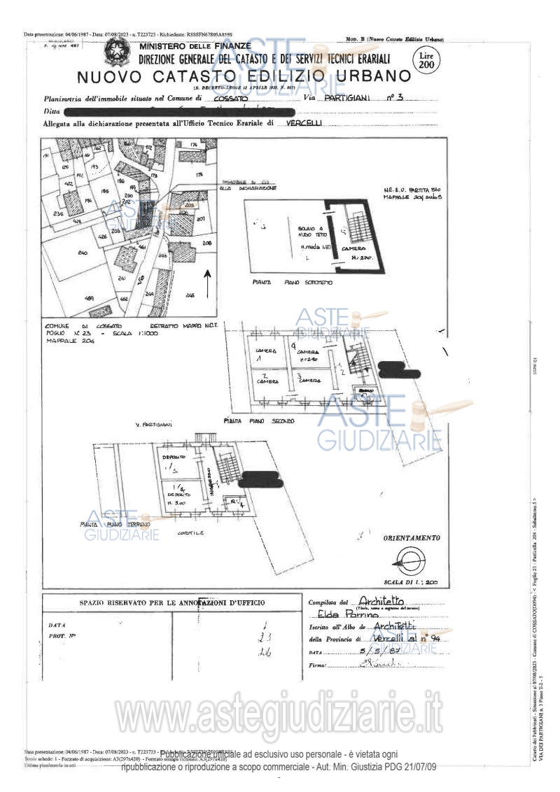
Due abitazioni civili e deposito in fabbricato inserito in schiera di formazione risalente

Indirizzo
Via dei Partigiani, 3, 13836 Cossato BI, Italia, Cossato (BI)


Codice asta
4298924


Lotto
Lotto unico


Numero beni
3


Genere
Immobili


Categoria
Immobile residenziale


Valore di stima
-


Abitazione di tipo popolare

In fabbricato inserito in schiera di formazione risalente agli anni 40/50, elevato a tre piani fuori terra oltre a sottotetto, entrostante all’area distinta al Catasto dei Terreni del Comune di Cossato al foglio n. 23 con la particella n. 204 (ente urbano, coerenti: particelle 198, 606, 200, 535 e 203 dello stesso foglio di mappa), le seguenti unità immobiliari:- Deposito (Rif. 2) al piano terreno, diviso in più locali adiacenti ma non comunicanti tra loro: locale adibito ad unità abitativa (ingresso su cucina-pranzo con zona notte divisa da divisorio in legno) e locale deposito a nudo tetto con piccolo ripostiglio, altri due locali deposito/cantina al piano terreno, accessibili dal comune corridoio di accesso alla scala; - Abitazione civile (Rif. 1) al piano primo, composta da corridoio, bagno, cucina, due camere da letto, ampio soggiorno oltre a due balconi;- Abitazione civile (Rif. 3) al piano secondo, composto da: corridoio di ingresso, camera, bagno, cucina, soggiorno, camera da letto, due balconi oltre a locale mansardato e locale sottotetto a nudo tetto adibito a soffitta, al piano sottotetto.

Indirizzo
Via dei Partigiani, 3, 13836 Cossato BI, Italia, Cossato (BI)


Piano
t 1 2 3


Disponibilità
OCCUPATO


Vani
12,00


Bagni
2


Metri quadri
350,00


Certificazione energetica
-


Dati catastali

Foglio:23, Particella:204, Subalterno:6
Foglio:23, Particella:204, Subalterno:7
Foglio:23, Particella:204, Subalterno:5


Abitazione di tipo popolare

In fabbricato inserito in schiera di formazione risalente agli anni 40/50, elevato a tre piani fuori terra oltre a sottotetto, entrostante all’area distinta al Catasto dei Terreni del Comune di Cossato al foglio n. 23 con la particella n. 204 (ente urbano, coerenti: particelle 198, 606, 200, 535 e 203 dello stesso foglio di mappa), le seguenti unità immobiliari:- Deposito (Rif. 2) al piano terreno, diviso in più locali adiacenti ma non comunicanti tra loro: locale adibito ad unità abitativa (ingresso su cucina-pranzo con zona notte divisa da divisorio in legno) e locale deposito a nudo tetto con piccolo ripostiglio, altri due locali deposito/cantina al piano terreno, accessibili dal comune corridoio di accesso alla scala; - Abitazione civile (Rif. 1) al piano primo, composta da corridoio, bagno, cucina, due camere da letto, ampio soggiorno oltre a due balconi;- Abitazione civile (Rif. 3) al piano secondo, composto da: corridoio di ingresso, camera, bagno, cucina, soggiorno, camera da letto, due balconi oltre a locale mansardato e locale sottotetto a nudo tetto adibito a soffitta, al piano sottotetto.

Indirizzo
Via dei Partigiani, 3, 13836 Cossato BI, Italia, Cossato (BI)


Piano
t 1 2 3


Disponibilità
OCCUPATO


Vani
12,00


Bagni
-


Metri quadri
187,00


Certificazione energetica
-


Dati catastali

Foglio:23, Particella:204, Subalterno:6
Foglio:23, Particella:204, Subalterno:7
Foglio:23, Particella:204, Subalterno:5


Abitazione di tipo popolare

In fabbricato inserito in schiera di formazione risalente agli anni 40/50, elevato a tre piani fuori terra oltre a sottotetto, entrostante all’area distinta al Catasto dei Terreni del Comune di Cossato al foglio n. 23 con la particella n. 204 (ente urbano, coerenti: particelle 198, 606, 200, 535 e 203 dello stesso foglio di mappa), le seguenti unità immobiliari:- Deposito (Rif. 2) al piano terreno, diviso in più locali adiacenti ma non comunicanti tra loro: locale adibito ad unità abitativa (ingresso su cucina-pranzo con zona notte divisa da divisorio in legno) e locale deposito a nudo tetto con piccolo ripostiglio, altri due locali deposito/cantina al piano terreno, accessibili dal comune corridoio di accesso alla scala; - Abitazione civile (Rif. 1) al piano primo, composta da corridoio, bagno, cucina, due camere da letto, ampio soggiorno oltre a due balconi;- Abitazione civile (Rif. 3) al piano secondo, composto da: corridoio di ingresso, camera, bagno, cucina, soggiorno, camera da letto, due balconi oltre a locale mansardato e locale sottotetto a nudo tetto adibito a soffitta, al piano sottotetto.

Indirizzo
Via dei Partigiani, 3, 13836 Cossato BI, Italia, Cossato (BI)


Piano
t 1 2 3


Disponibilità
OCCUPATO


Vani
12,50


Bagni
-


Metri quadri
18700,00


Certificazione energetica
-


Dati catastali

Foglio:23, Particella:204, Subalterno:6
Foglio:23, Particella:204, Subalterno:7
Foglio:23, Particella:204, Subalterno:5


Data udienza
25/11/2025 ore 15:15


Tipo di vendita
Senza incanto


Modalità di vendita
Asincrona telematica


Luogo
N.A. -


Luogo presentazione offerte
-


Termine presentazione offerte
24/11/2025 ore 13:00


Prezzo base
€ 36.106,58


Offerta minima
€ 27.079,94


Rialzo minimo in caso di gara
€ 1.000,00


Deposito cauzionale
10% del prezzo offerto


Deposito in conto spese
-


Tribunale
Biella

Tipo di procedura
Espropriazione immobiliare (cartabia)

Ruolo
41/2023

Giudice
Migliore Emanuele

Recapiti
-

Email
-

Delegato alla vendita
Di manna Alessandro
(Procede alle operazioni di vendita)

Recapiti
Tel. 0150991500

Email
info@centroasteimmobiliari.it

Custode giudiziario
Di manna Alessandro
(Gestisce la visita del bene)

Recapiti
Tel. 0150991500

Email

Scheda COD. 4298924 - Pubblicata dal 29/09/2025

La presente scheda di vendita riporta integralmente informazioni e documenti pervenuti ufficialmente dal Ministero e dal professionista incaricato.


Pubblicazione autorizzata dall’Autorità competente, è vietata ogni ripubblicazione o riproduzione anche parziale


Ti interessa questa vendita?

Documentazione

Visualizza su mappa

Mappa geografica del bene

Storico delle vendite

Data venditaPrezzo base
14/05/2024€ 41.466,00
17/09/2024€ 31.099,50
17/12/2024€ 23.324,62
18/03/2025€ 17.493,46
25/11/2025€ 36.106,58

Punti di interesse

Fonte dati

Nel raggio di {{range}}Km

Loading...
  • {{ getIcon(poi.type) }} {{ poi.localized }}: {{poi.count}}
  • {{ getIcon(poi.type) }} {{ poi.localized }}: {{poi.count}}
Dati non disponibili