Astegiudiziarie.it è parte di Rete Aste Network

Accedi o registrati

Non sei ancora registrato?

Oppure

Accedi

Abitazione di tipo civile, appartamento, posto auto

Viale Adriatico 94, Corropoli (TE)

€ 170.250,00

Offerta minima € 127.687,50


Codice A4333942

Lotto 1

Data udienza 14/01/2026 ore 15:00

Termine presentazione offerte 13/01/2026 ore 23:59

Abitazione di tipo civile, appartamento, posto auto

Viale Adriatico 94, Corropoli (TE)

€ 170.250,00

Offerta minima € 127.687,50


Codice A4333942

Lotto 1

Data udienza 14/01/2026 ore 15:00

Termine presentazione offerte 13/01/2026 ore 23:59

Ti interessa questa vendita?

Documentazione

Visualizza su mappa

Mappa geografica del bene

Punti di interesse

Fonte dati

Nel raggio di {{range}}Km

Loading...
  • {{ getIcon(poi.type) }} {{ poi.localized }}: {{poi.count}}
  • {{ getIcon(poi.type) }} {{ poi.localized }}: {{poi.count}}
Dati non disponibili

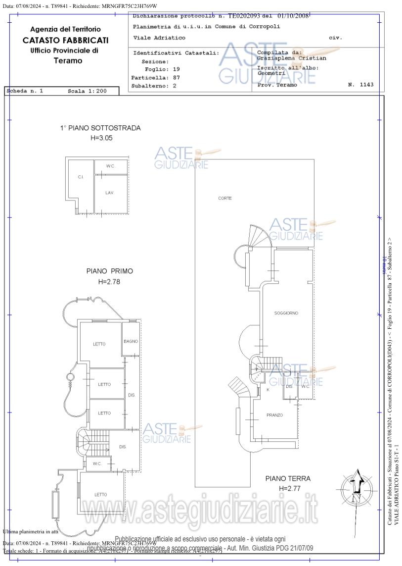
Diritti pari a 1/1 di p.p. su fabbricato di civile abitazione della consistenza di 11 vani catastali, P.S1-T-1; diritti pari a 1/1 p.p. su appartamento posto al piano secondo (sottotetto) di 5 vani catastali; diritti pari a 1/1 di p.p. su locale uso garage posto al piano primo sottostrada

Indirizzo
Viale Adriatico 94, Corropoli (TE)


Codice asta
4333942


Lotto
1


Numero beni
3


Genere
Immobili


Categoria
Immobile residenziale


Valore di stima
-


Abitazione di tipo civile

porzione di fabbricato di civile abitazione della consistenza di 11 vani catastali, mq. 276, P. S1-T-1

Indirizzo
Viale Adriatico 94, Corropoli (TE)


Piano
P S1 T 1


Disponibilità
OCCUP


Vani
11,00


Bagni
-


Metri quadri
276,00


Certificazione energetica
-


Dati catastali

Foglio:19, Sezione:F, Particella:87, Subalterno:2


Appartamento

appartamento di civile abitazione posto al piano secondo (sottotetto), mq. 119, 5 vani

Indirizzo
Viale Adriatico 94, Corropoli (TE)


Piano
secondo sottotetto


Disponibilità
OCCUP


Vani
5,00


Bagni
-


Metri quadri
119,00


Certificazione energetica
-


Dati catastali

Foglio:19, Sezione:F, Particella:87, Subalterno:4


Posto auto

diritti pari a 1/1 della p.p. su locale ad uso garage di circa 75 mq. posto al piano primo sottostrada

Indirizzo
Viale Adriatico 94, Corropoli (TE)


Piano
Piano primo sottostrada


Disponibilità
OCCUP


Vani
-


Bagni
-


Metri quadri
75,00


Certificazione energetica
-


Dati catastali

Foglio:19, Sezione:F, Particella:87, Subalterno:6


Data udienza
14/01/2026 ore 15:00


Tipo di vendita
Senza incanto


Modalità di vendita
Asincrona telematica


Luogo
N.A. -


Luogo presentazione offerte
-


Termine presentazione offerte
13/01/2026 ore 23:59


Prezzo base
€ 170.250,00


Offerta minima
€ 127.687,50


Rialzo minimo in caso di gara
€ 2.500,00


Deposito cauzionale
10% del prezzo offerto


Deposito in conto spese
-


Tribunale
Teramo

Tipo di procedura
Esecuzione immobiliare post legge 80

Ruolo
340/2017

Delegato alla vendita
Valente Simona
(Procede alle operazioni di vendita)
(Gestisce la visita del bene)

Recapiti
Cell. 337342934
Tel. 0861250303

Scheda COD. 4333942 - Pubblicata dal 17/11/2025

La presente scheda di vendita riporta integralmente informazioni e documenti pervenuti ufficialmente dal Ministero e dal professionista incaricato.

Pubblicazione notarizzata su Blockchain


Pubblicazione autorizzata dall’Autorità competente, è vietata ogni ripubblicazione o riproduzione anche parziale


Ti interessa questa vendita?

Documentazione

Visualizza su mappa

Mappa geografica del bene

Storico delle vendite

Data venditaPrezzo base
08/10/2025€ 227.000,00
14/01/2026€ 170.250,00

Punti di interesse

Fonte dati

Nel raggio di {{range}}Km

Loading...
  • {{ getIcon(poi.type) }} {{ poi.localized }}: {{poi.count}}
  • {{ getIcon(poi.type) }} {{ poi.localized }}: {{poi.count}}
Dati non disponibili